查看完整案例

收藏

下载
项目名称:芬兰Mikonkatu 7办公楼
位置:芬兰
建筑师:Futudesign
Mikonkatu 7 大楼位于赫尔辛基市中心,毗邻国家主要机构:大学、阿黛浓艺术博物馆、国家剧院和火车站。建于 100 年前,被称为 Agros 大楼的大厦是维也纳青年风格和先进建筑的典范。从那时起,它发生了几次变化。Mikonkatu 和 Yliopistonkatu 的拐角处被改造成高端写字楼,六层办公空间 6000 平方米,临街商业空间 2000 平方米。历史保护建筑的改造包括角塔和顶层立面的全面改造。塔楼设有落地窗,可将阿黛浓和火车站的壮丽景色尽收眼底,主入口移至拐角处,使建筑恢复了原有的精致风格。顶层设有拱形窗户,外立面涂有一种颜色,营造出统一、时尚的外观。Futudesign 的概念忠实于 Selim A.Lindqvist 的建筑原始建筑,并模糊了历史和当代建筑的界限,创造了一种风格共生。许多设计细节都受到原始计划的启发,并应用于角塔和顶层拱窗等现代特色。街道层有几个精品空间,带有大窗户和花岗岩外墙,将 Mikonkatu 变成了一个充满活力的高端购物区。在内院建造了一个四层的玻璃屋顶扩建部分,以连接办公空间并提供礼堂、会议室、餐厅和咖啡厅等现代办公服务。富途设计还负责整个建筑的室内设计。
芬兰Mikonkatu 7办公楼外部实景图
芬兰Mikonkatu 7办公楼外部实景图
芬兰Mikonkatu 7办公楼外部实景图
芬兰Mikonkatu 7办公楼外部实景图
芬兰Mikonkatu 7办公楼内部女实景图
芬兰Mikonkatu 7办公楼内部实景图
芬兰Mikonkatu 7办公楼内部实景图
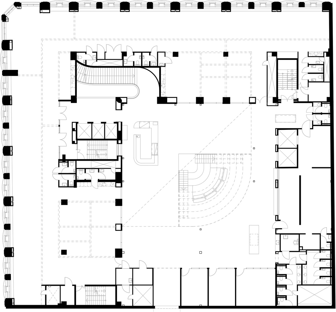
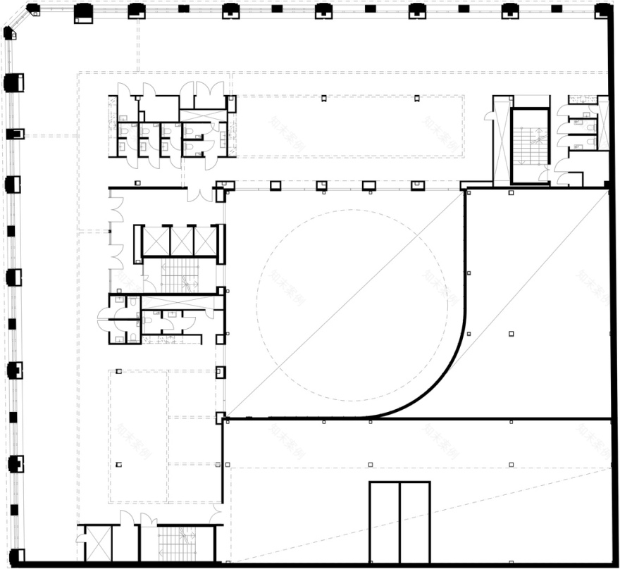
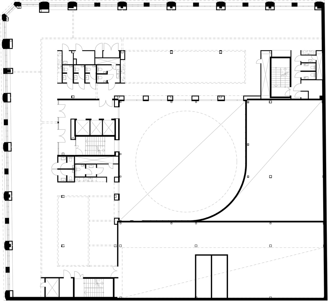
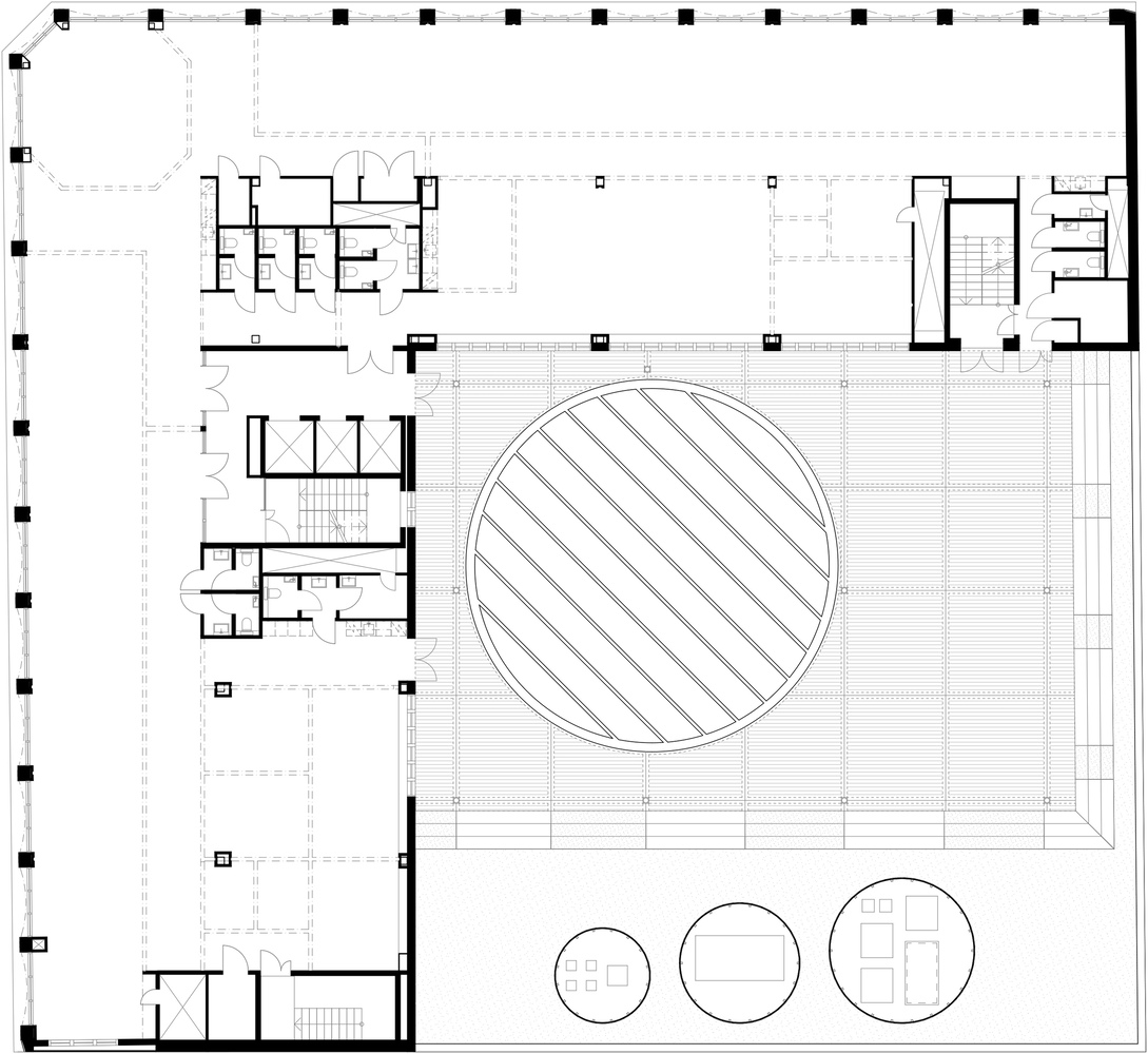
芬兰Mikonkatu 7办公楼平面图
芬兰Mikonkatu 7办公楼平面图
芬兰Mikonkatu 7办公楼平面图
芬兰Mikonkatu 7办公楼平面图
芬兰Mikonkatu 7办公楼平面图
芬兰Mikonkatu 7办公楼平面图
芬兰Mikonkatu 7办公楼剖面图
客服
消息
收藏
下载
最近

















