查看完整案例

收藏

下载
项目名称:上海龙湖蓝海引擎淡水河畔产业园
位置:上海
设计公司:罗昂设计
logon.design罗昂设计团队与龙湖紧密配合,完成创新改造设计解决方案———上海龙湖蓝海引擎淡水河畔科创园。该项目也成为南虹桥的代表性城市更新项目。上海龙湖蓝海引擎淡水河畔科创园,是政企合作的代表性城市更新项目。位于闵行南部科创中心核心区,总建筑面积约4.5万平方米,东西两区共46栋。项目定位智造型2.5产业园,聚焦高新技术、航空航天、生物医药等智能制造产业领域。园区内原始建筑多为一至三层的独栋厂房,建成于90年代,空间结构无法满足现代产学研需求。46栋建筑原始结构和既有状况差距较大,罗昂团队梳理评估每栋建筑条件,并将建筑分为六个等级,给出不同的解决方案。同时兼顾项目整体性,各等级建筑在风格、材料以及建筑元素等方面,都遵循了同样的标准。秉持工业文脉,设计原则上尊重保留原始建筑形态,翻新外立面和屋顶。建筑内部增加垂直交通核,优化布局。在遵循节能环保的大前提下,选择科技感较强的建筑材料,如波纹铝板,塑造高科技感,来匹配园区调性。淡水河畔产业园东西地块之间有一公园相连,并向剑川路有两公里多的敞开面。
设计引入“开放式园区”以及“研发公园”的概念,模糊建筑跟景观的界限,延伸绿植,也打造了园区的地标“悬浮建筑”。园区内构建3个公共空间,并融入社交属性:油管公园、植物墙主题园、展示中心片区。围绕这三个公共空间配置商业服务设施,打造年轻化大社交园区场景。悬浮建筑,是园区的超级符号。建筑平面布局灵活,既能满足厂房的生产使用需求,同时也可以用做多功能发布厅或展示厅。外立面选取轻便、环保、保温性好、易施工的聚碳酸酯板,配合灯光设计,呈现建筑科技感。油罐,是具有标志性的工业遗迹,位于园区主入口处的油罐广场。我们将其保留下来,作为园区精神堡垒,也成为南虹桥工业精神的延伸。油罐代表着过去,而它背后的建筑群代表着新生的园区。罗昂设计在蓝海引擎淡水河畔产业园的设计过程中,从建筑痛点改造、历史文脉传承和城市空间重塑三个视角去探索城市更新路径,使之成为上海城市更新中的成功样本。
上海龙湖蓝海引擎淡水河畔产业园外部实景图
上海龙湖蓝海引擎淡水河畔产业园外部实景图
上海龙湖蓝海引擎淡水河畔产业园外部实景图
上海龙湖蓝海引擎淡水河畔产业园外部实景图
上海龙湖蓝海引擎淡水河畔产业园外部实景图
上海龙湖蓝海引擎淡水河畔产业园外部实景图
上海龙湖蓝海引擎淡水河畔产业园外部实景图
上海龙湖蓝海引擎淡水河畔产业园外部实景图
上海龙湖蓝海引擎淡水河畔产业园外部实景图
上海龙湖蓝海引擎淡水河畔产业园外部实景图
上海龙湖蓝海引擎淡水河畔产业园外部实景图
上海龙湖蓝海引擎淡水河畔产业园外部实景图
上海龙湖蓝海引擎淡水河畔产业园外部实景图
上海龙湖蓝海引擎淡水河畔产业园外部实景图
上海龙湖蓝海引擎淡水河畔产业园外部实景图
上海龙湖蓝海引擎淡水河畔产业园外部实景图
上海龙湖蓝海引擎淡水河畔产业园外部实景图
上海龙湖蓝海引擎淡水河畔产业园内部实景图
上海龙湖蓝海引擎淡水河畔产业园内部实景图
上海龙湖蓝海引擎淡水河畔产业园内部实景图
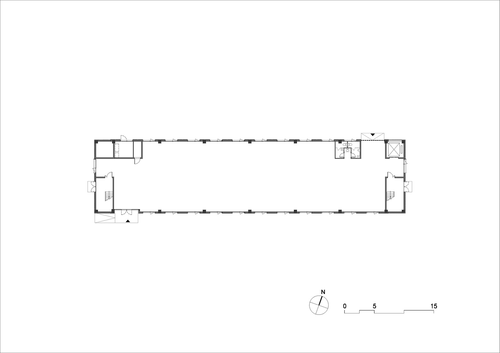
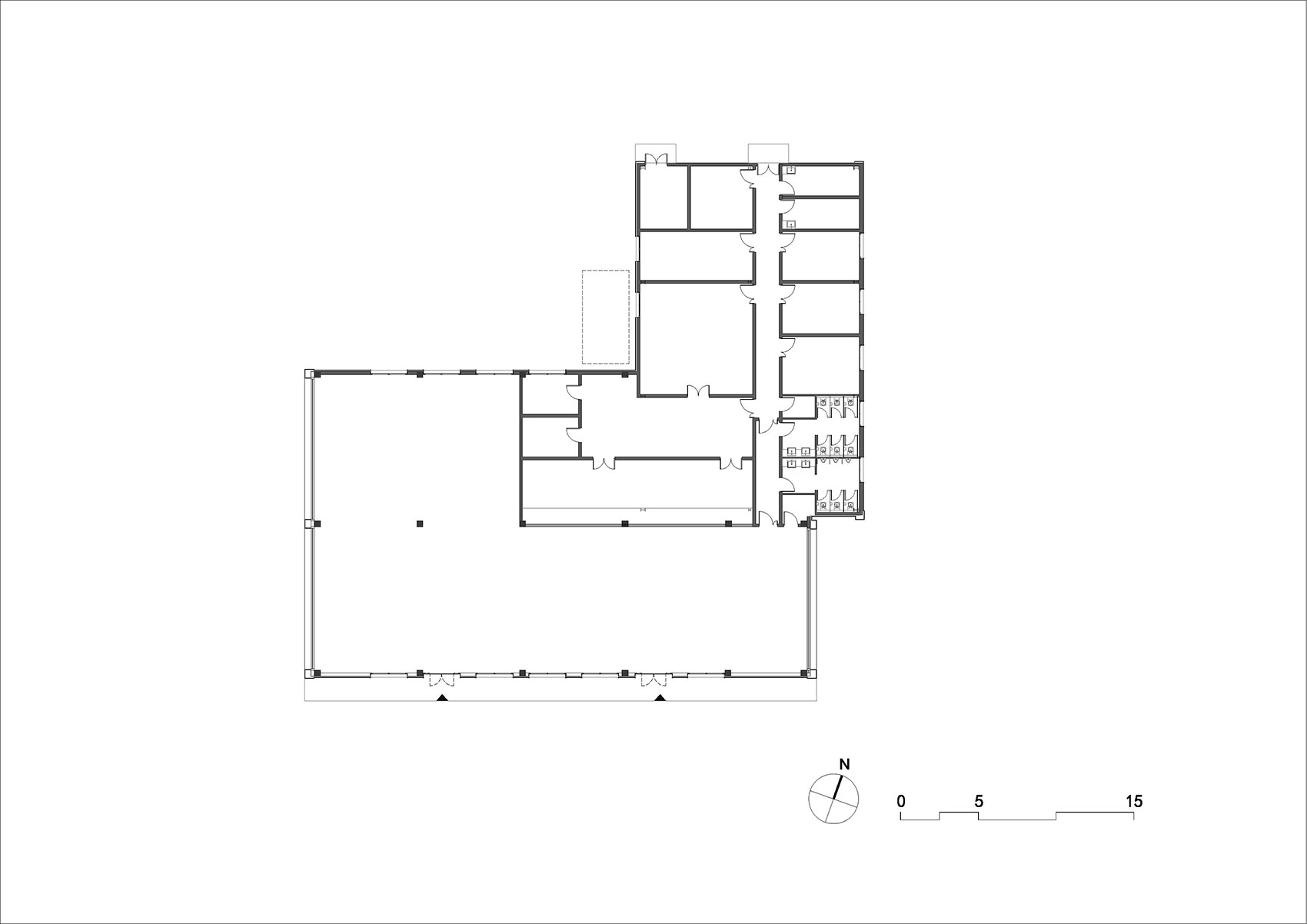
上海龙湖蓝海引擎淡水河畔产业园平面图
上海龙湖蓝海引擎淡水河畔产业园平面图
上海龙湖蓝海引擎淡水河畔产业园平面图
上海龙湖蓝海引擎淡水河畔产业园平面图
上海龙湖蓝海引擎淡水河畔产业园平面图
上海龙湖蓝海引擎淡水河畔产业园平面图
上海龙湖蓝海引擎淡水河畔产业园平面图
上海龙湖蓝海引擎淡水河畔产业园平面图
上海龙湖蓝海引擎淡水河畔产业园平面图
客服
消息
收藏
下载
最近
































