查看完整案例

收藏

下载

翻译
Firm: PK Arkitektar
Type: Residential › Private House
STATUS: Built
YEAR: 2010
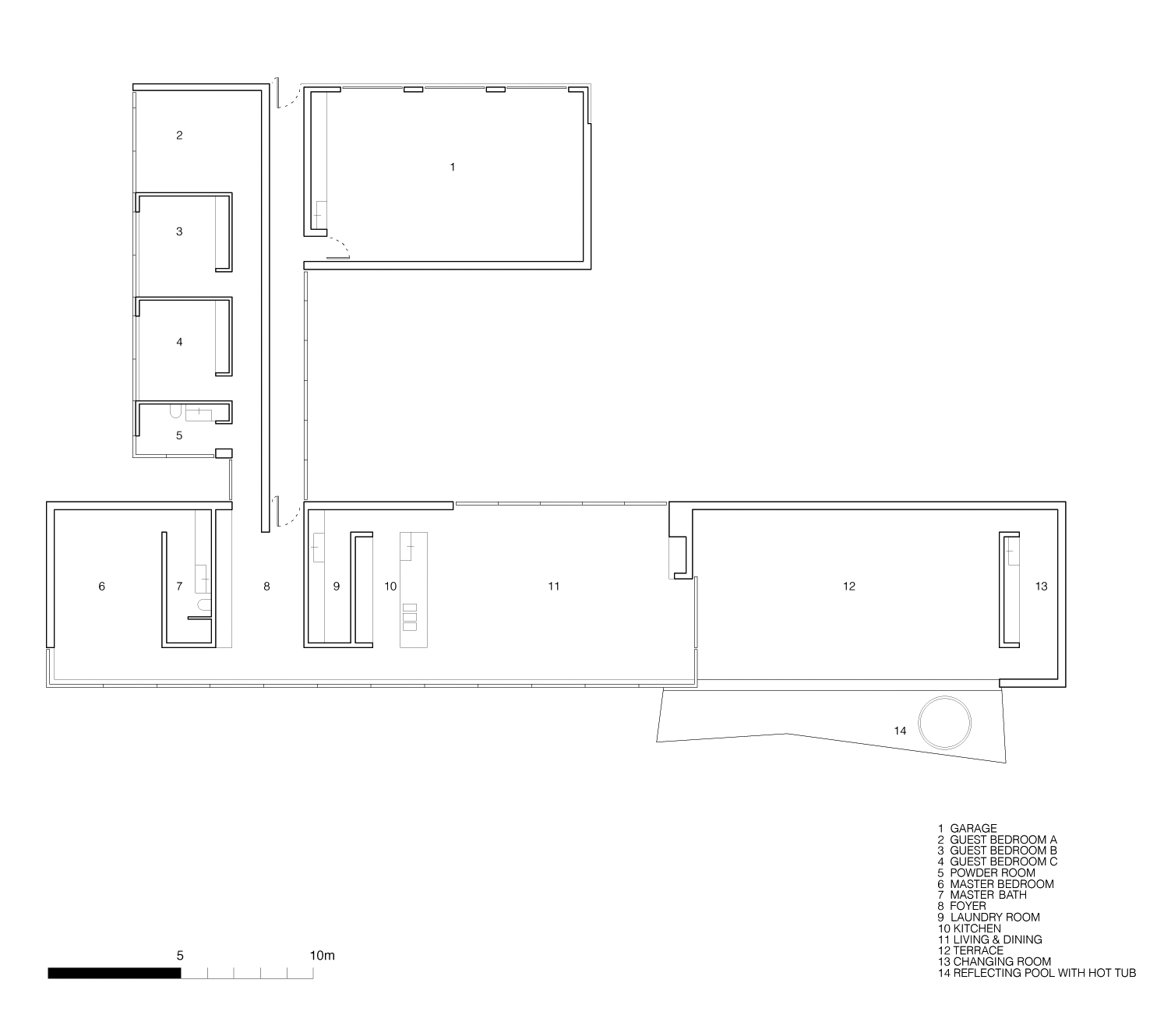
This vacation house is located on the banks of the Hvita river, a two-hour drive East of Reykjavik. The site is a moss-covered hill with a view over a quiet bend in the glacier-formed river. In the spring, the river carries the icebergs from the glacier towards the sea some 100km away.
客服
消息
收藏
下载
最近













