查看完整案例

收藏

下载
项目名称:北京融新科技中心
位置:北京
设计公司:传奇建筑
融新科技中心总建筑面积约18万平方米,包括六座办公楼和两座商业附属建筑。该综合体位于望京的中心,这是北京市繁忙的城市副中心,是金融,研究和科技领域的成熟企业以及创业网络公司的聚集地。在过去几十年中,该地区有大量的外籍人士和年轻专业人士涌入。该项目被视为当地重要的办公楼开发项目之一,其瞩目的城市位置可与扎哈·哈迪德建筑事务所设计的位于附近的望京SOHO以及SOM设计的保利国际广场相媲美。望京SOHO是中小型民营企业的理想选择,而保利国际广场是一个高端办公楼,适合高端的国际公司。与这两个地标建筑相临,融新技术中心的设计旨在提供各种不同尺度的、灵活模块化的LOFT办公单元,从而适应更多种不同公司的需求,为用户定制自己的空间留出最大的余地。尽管内部的LOFT单元有多种不同的形式,但融新科技中心的外立面设计运用了精简的幕墙系统,从而获得简洁、干净和统一的外观。
这种幕墙细节经过精心设计,以实现多种目的。玻璃面板之间呈锥形的垂直金属构件集成了幕墙结构,自然通风和夜间立面照明。因此,玻璃面板作为一个完整固定扇,可开启扇则位于锥形截面的幕墙通风百叶后面。融新技术中心的总体规划构建了一个具有围合感的城市空间。每座塔楼都有两层通高的由大玻璃和柱廊形成的基底,主入口退后于柱廊,使得入口层的景观花园被最大化并延伸至廊下,为人们工作间歇时提供开放花园和廊下长庭的休息空间。每栋建筑的功能核心筒都是高效的,其平面位置可以将最优化的采光和视野留给办公空间。融新科技中心采用适度和极简的设计,使得成本低于周边其他标志性开发项目,空间使用率非常高,是被公认的性价比最高的城市中心办公空间之一。
融新科技中心是具有可持续发展和节能技术的高标准绿色建筑。设计充分利用了自然采光和自然通风。变电站位于功能核心附近,可减少低压电缆中的能量损失。低损耗和低噪音变压器产品被选用于所有电气设备,包括升降机,泵,照明等。建筑内所有照明功率密度均小于国家标准GB50034规定的目标值。楼宇自动化系统采用直指控制系统,对供水、排水、冷却水、热水、公共照明、空调、供电系统及设施的节能进行监测和控制。独立的电能计量装置安装在照明、电梯、冷却站、热力站、空调、中水回用、排水、景观照明和厨房设施中。冷却塔在冬季提供自然冷却空气。采用PM2.5空气净化系统,有效去除雾霾,营造健康的办公环境。
北京融新科技中心外部实景图
北京融新科技中心外部实景图
北京融新科技中心外部实景图
北京融新科技中心外部实景图
北京融新科技中心外部实景图
北京融新科技中心外部实景图
北京融新科技中心外部实景图
北京融新科技中心外部实景图
北京融新科技中心外部实景图
北京融新科技中心外部实景图
北京融新科技中心外部实景图
北京融新科技中心外部实景图
北京融新科技中心外部实景图
北京融新科技中心外部实景图
北京融新科技中心外部实景图
北京融新科技中心外部实景图
北京融新科技中心外部实景图
北京融新科技中心外部实景图
北京融新科技中心外部实景图
北京融新科技中心外部实景图
北京融新科技中心外部实景图
北京融新科技中心外部实景图
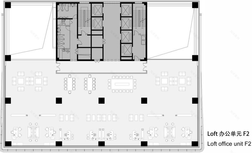
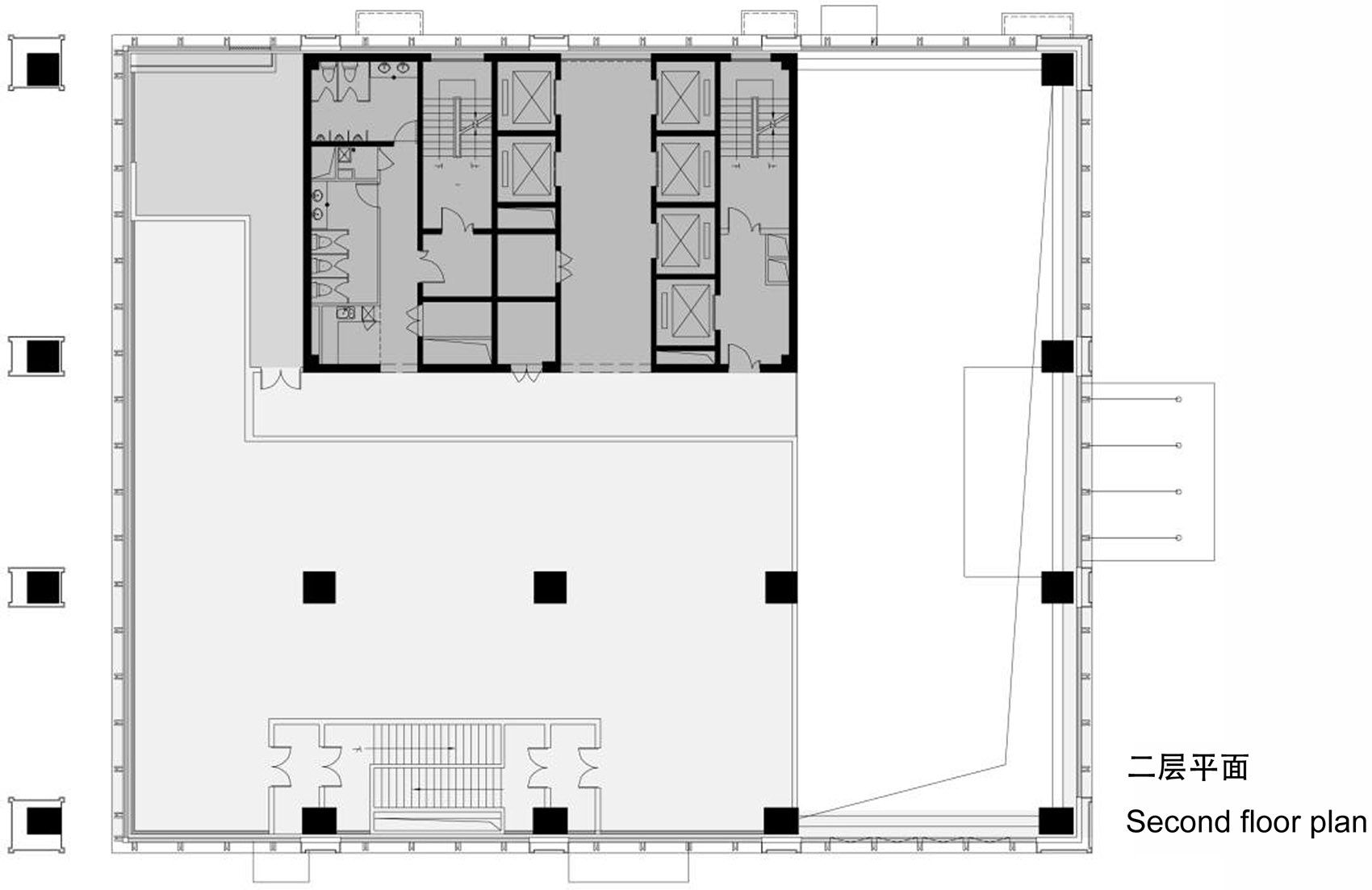
北京融新科技中心平面图
北京融新科技中心平面图
北京融新科技中心平面图
北京融新科技中心平面图
北京融新科技中心平面图
客服
消息
收藏
下载
最近






























