查看完整案例

收藏

下载
项目名称:德国奥斯塔芬区的办公大楼
位置:德国
设计公司:Meixner Schlüter Wendt
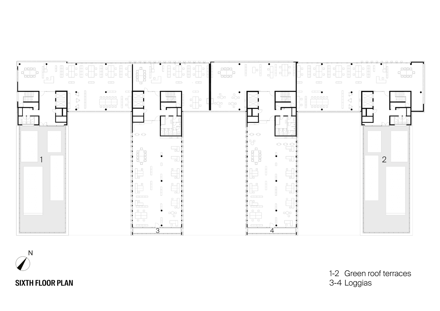
就在法兰克福奥斯塔芬区的海滨,新的办公大楼 The Docks 与 Dock 2.0(一种板状的现有结构)结合在一起,形成了一个同质的整体。这座新办公楼周围的区域散布着工业综合体和仓库设施,具有集装箱港口独特的特殊氛围。立即想到的是与“存储”、“堆叠”、“移动”和“移动”等术语的关联。除了对各种“可附加”元素的使用要求外,这些术语也是建筑的起点,其结构、形状和外观本能地符合 Osthafen 的外观和感觉。面向 Lindleystrasse 的立面分为三个部分,外观平静,而湿码头的一侧则受到明亮的集装箱堆叠的启发,多种色调的立面将建筑物与港口环境融为一体。这些特点导致了面向海港的立面结构,它使用预制的折叠梯形板形成一个简单、实用的办公室立面。它发展了一种关联的存在,从而增强了网站。与外观一样,室内空间的设计也反映了建筑任务和位置的矛盾性。当员工和访客进入大楼时,临街的高大、引人入胜的门厅迎接他们。最先进的办公场所,中央超宽走廊和落地窗,以及迷人的绿化阳光甲板,是这些办公室在其独特的海滨位置的最显着特点。通往湿码头和大型屋顶露台的凉廊可欣赏到欧洲央行和天际线的景色,充分利用了环境的优势。
德国奥斯塔芬区的办公大楼外部实景图
德国奥斯塔芬区的办公大楼外部实景图
德国奥斯塔芬区的办公大楼外部实景图
德国奥斯塔芬区的办公大楼外部实景图
德国奥斯塔芬区的办公大楼外部实景图
德国奥斯塔芬区的办公大楼外部实景图
德国奥斯塔芬区的办公大楼外部实景图
德国奥斯塔芬区的办公大楼外部实景图
德国奥斯塔芬区的办公大楼外部实景图
德国奥斯塔芬区的办公大楼内部实景图
德国奥斯塔芬区的办公大楼内部实景图
德国奥斯塔芬区的办公大楼内部实景图
德国奥斯塔芬区的办公大楼内部实景图
德国奥斯塔芬区的办公大楼平面图
德国奥斯塔芬区的办公大楼平面图
德国奥斯塔芬区的办公大楼平面图
德国奥斯塔芬区的办公大楼平面图
德国奥斯塔芬区的办公大楼剖面图
客服
消息
收藏
下载
最近





















