查看完整案例

收藏

下载
项目名称:德国Cuvry园区
位置:德国
设计公司:TCHOBAN VOSS Architekten
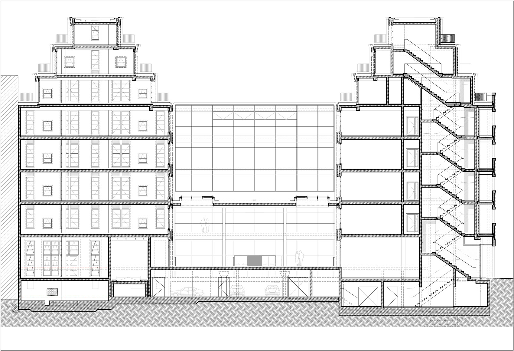
项目位于柏林Kreuzberg区Cuvry街50-51号,占地约9800平方米,建筑体量从Schlesische街一直延伸至施普雷河岸,距离Oberbaum桥和东侧画廊只有几分钟的步行路程。根据TCHOBAN VOSS Architekten与Reinhard Mueller的设计与规划,方案构想了一个将办公空间、美食和零售融为一体的多功能办公园区,面向公众开放的内部景观庭院可让人饱览河畔风光。建筑结构和立面设计根据建筑在城市海港区的位置而量身打造,浅色的熟料外墙顺应Osthafen地区工业建筑的风格,延续了场地中原有仓库的物质性。综合体由两个七层高的体量组成,体量呈锥形向水面打开,形成了三个部分。大楼最上方的三层以阶梯状退台排列,留出了细长的天台。朝Schlesische街的方向上,一个略微内陷的玻璃体量填补了两栋大楼间的空隙。通过入口,游客将进入一个明亮、光线充足的大厅。大楼内部,中央楼梯和两部电梯构成了和两个体量间的竖向联系,地下室则需通过Schlesische街和Cuvry街地下停车场的两个独立入口进入。延伸至码头的建筑物可通过下方拱廊与外部连通。白天,面向公众开放的绿色庭院和宽阔的公共河岸也将提升当地社区的居住品质。该建筑已获DGNB金级认证。
德国Cuvry园区外部实景图
德国Cuvry园区外部实景图
德国Cuvry园区外部实景图
德国Cuvry园区外部实景图
德国Cuvry园区外部实景图
德国Cuvry园区外部实景图
德国Cuvry园区外部实景图
德国Cuvry园区外部实景图
德国Cuvry园区外部实景图
德国Cuvry园区外部实景图
德国Cuvry园区外部实景图
德国Cuvry园区外部实景图
德国Cuvry园区外部实景图
德国Cuvry园区外部实景图
德国Cuvry园区外部实景图
德国Cuvry园区外部实景图
德国Cuvry园区外部实景图
德国Cuvry园区外部实景图
德国Cuvry园区外部实景图
德国Cuvry园区外部实景图
德国Cuvry园区外部实景图
德国Cuvry园区外部实景图
德国Cuvry园区外部实景图
德国Cuvry园区外部实景图
德国Cuvry园区外部实景图
德国Cuvry园区外部实景图
德国Cuvry园区内部实景图
德国Cuvry园区内部实景图
德国Cuvry园区平面图
德国Cuvry园区平面图
德国Cuvry园区平面图
德国Cuvry园区平面图
德国Cuvry园区剖面图
德国Cuvry园区剖面图
德国Cuvry园区立面图
客服
消息
收藏
下载
最近






































