查看完整案例

收藏

下载
项目名称:四川智慧高速新基建科研基地项目
位置:四川
设计公司:山间建筑
项目地位于四川省都江堰龙池镇,场地周围风景优美,因境内绝美的高山湖泊龙池而得名。项目建成后将成为西南首个开展“车路协同(自动驾驶)”的试验基地,也是国内首例研究西南山区5G智能网联自动驾驶关键技术的测试场。建筑师基于项目实际场景需求出发,提取现代元素在建筑立面抽象表达,自动驾驶代表科技与未来,场地环境如同中国传统泼墨山水画般诗意盎然,传统与未来的冲突感或许成为了本项目的加分项。项目地东与紫坪铺镇毗连,东南与紫坪铺水库为邻,西与阿坝州汶川县映秀镇接壤,北与虹口乡相连,距都江堰市区18公里。基地紧邻高速路试验场,山峦环绕、溪水围抱自然条件优美。
为突出建筑流线型的外轮廓,建筑师从川流不息的车流以及城市纵横交错的道路交通线获得设计灵感,通过对道路车流的抽象提炼,精简出富有动态的设计线条,进而从流线中推敲出建筑形态,在立面效果表达上呈现出更极致的 “速度与激情”之感,代表人类未来自动驾驶的新时代。建筑共两层,通过立面弧线演绎纵横交错的道路交通。设计将整个建筑用白色铝板围合,将抽象的“速度与激情”的动态感在视觉上做最大化的呈现,结合项目场地依山而建的特性,流动线条的运动感在正立视角做最主要的效果呈现,“刻意”但必要的呼应自动驾驶的顺畅流动的主题。
四川智慧高速新基建科研基地项目外部实景图
四川智慧高速新基建科研基地项目外部实景图
四川智慧高速新基建科研基地项目外部实景图
四川智慧高速新基建科研基地项目外部实景图
四川智慧高速新基建科研基地项目外部实景图
四川智慧高速新基建科研基地项目外部实景图
四川智慧高速新基建科研基地项目外部实景图
四川智慧高速新基建科研基地项目外部实景图
四川智慧高速新基建科研基地项目外部实景图
四川智慧高速新基建科研基地项目外部实景图
四川智慧高速新基建科研基地项目外部实景图
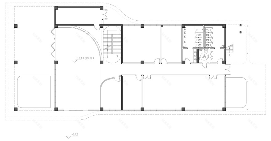
四川智慧高速新基建科研基地项目平面图
四川智慧高速新基建科研基地项目平面图
四川智慧高速新基建科研基地项目立面图
客服
消息
收藏
下载
最近

















