查看完整案例

收藏

下载
项目名称:韩国11 露台办公楼
位置:韩国
设计公司:OA-Lab
“11 Terrace”是一个写字楼项目,位于首尔三星洞一个拥有办公室、住宅和零售店的拥挤社区。在这个以发展为导向的社区,在快速的城市化进程中,自然常常被推到了优先位置。自然与公共空间被疏远,建筑物的底层以停车位为主,不关心公众和行人。在这种情况下,随着开发商试图最大化他们的建筑面积,商业办公楼变成了没有户外互动的高大的盒子。“11露台”项目建议将办公楼恢复为办公人员工作和休息的生活场所,作为他们日常生活的一部分。在这项工作中,我们试图重新评估城市社区中自发绿化的建筑潜力,我们旨在通过它在密集的城市中心提供一个与自然相呼应的空间。它提出了三维立面,通过水平和垂直体积不规则的动态节奏与道路和行人互动,每层的露台成为与公众互动的平台。它提供了一个种植、坐下和休息的空间,通过共享的地方连接人们的生活体验,为行人的日常生活提供绿色风景。尽管其发达的基础设施和公共交通系统在步行距离内创建了各种设施集群,但首尔的城市环境仍然对行人来说是沉闷和不友好的。在这座以发展为导向的城市中,“11 Terrace”为普通办公楼与周围环境的互动以及私人建筑如何为公共景观和公共体验带来好处提供了一些可能的替代方案。
韩国11 露台办公楼外部实景图
韩国11 露台办公楼外部实景图
韩国11 露台办公楼外部实景图
韩国11 露台办公楼外部实景图
韩国11 露台办公楼外部实景图
韩国11 露台办公楼外部实景图
韩国11 露台办公楼外部实景图
韩国11 露台办公楼外部实景图
韩国11 露台办公楼外部实景图
韩国11 露台办公楼内部实景图
韩国11 露台办公楼内部实景图
韩国11 露台办公楼内部实景图
韩国11 露台办公楼内部实景图
韩国11 露台办公楼内部实景图
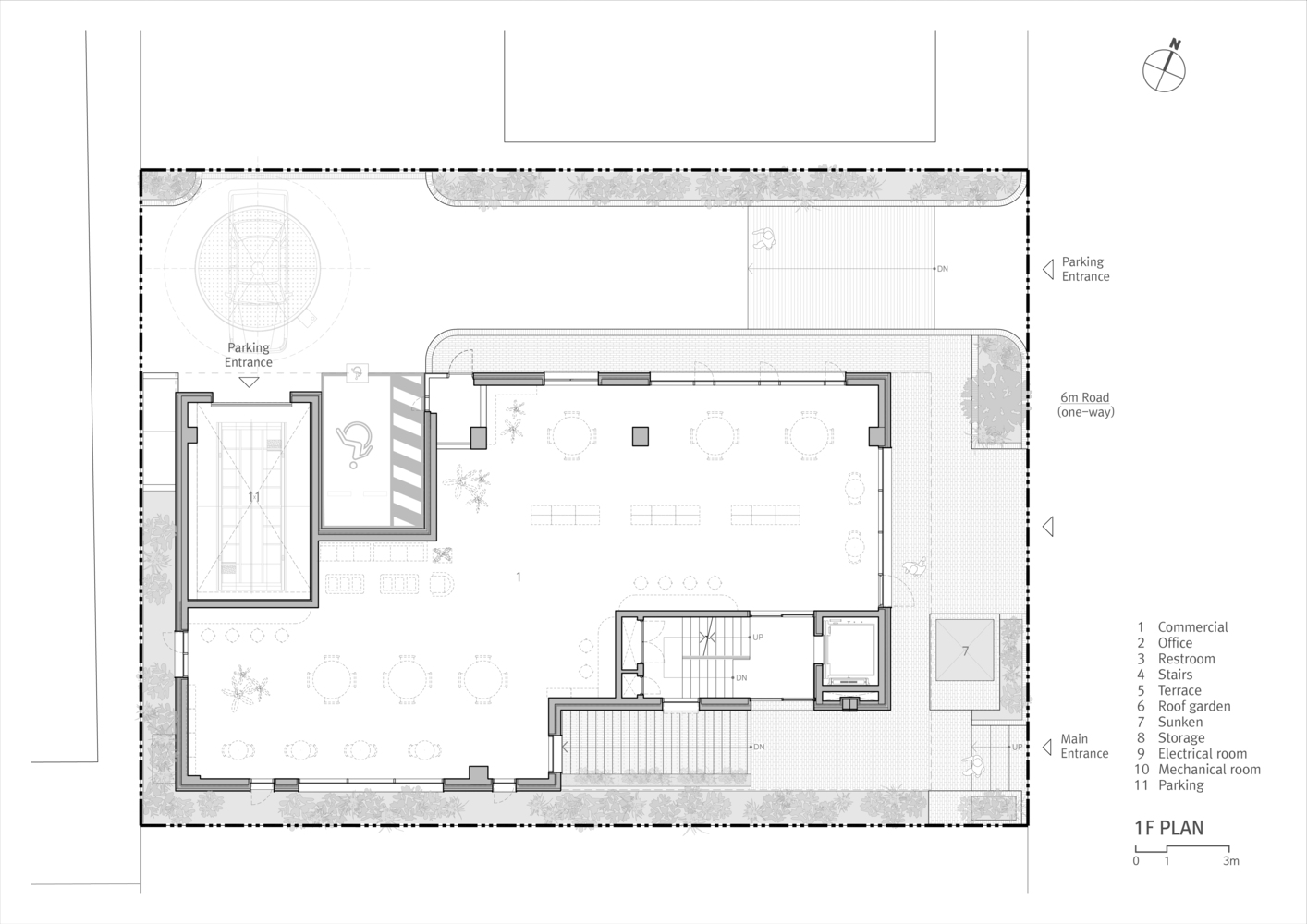
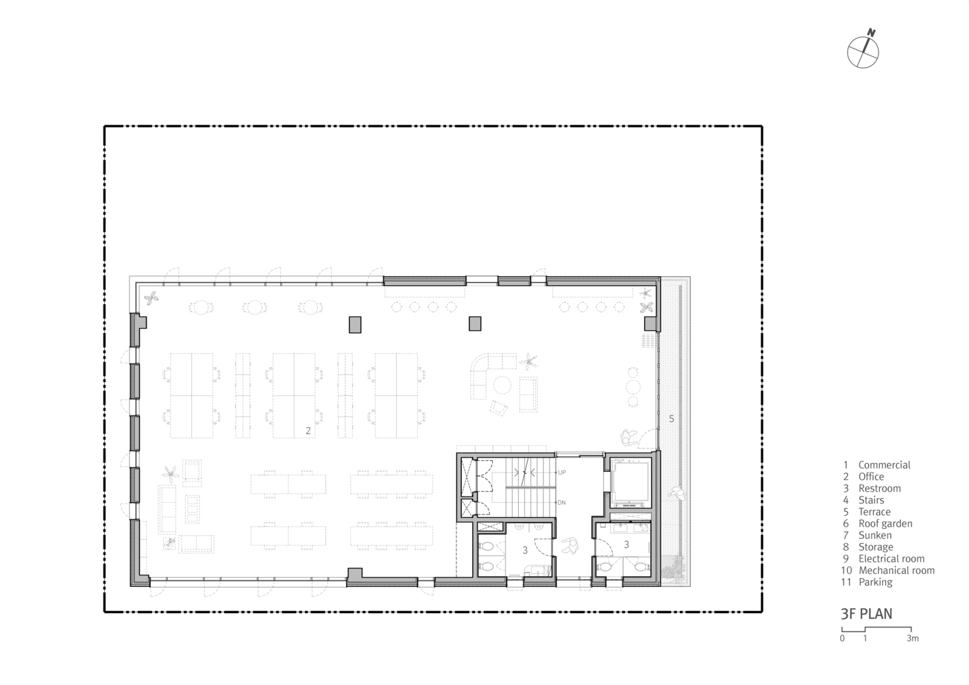
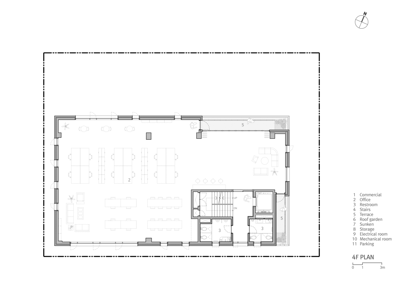
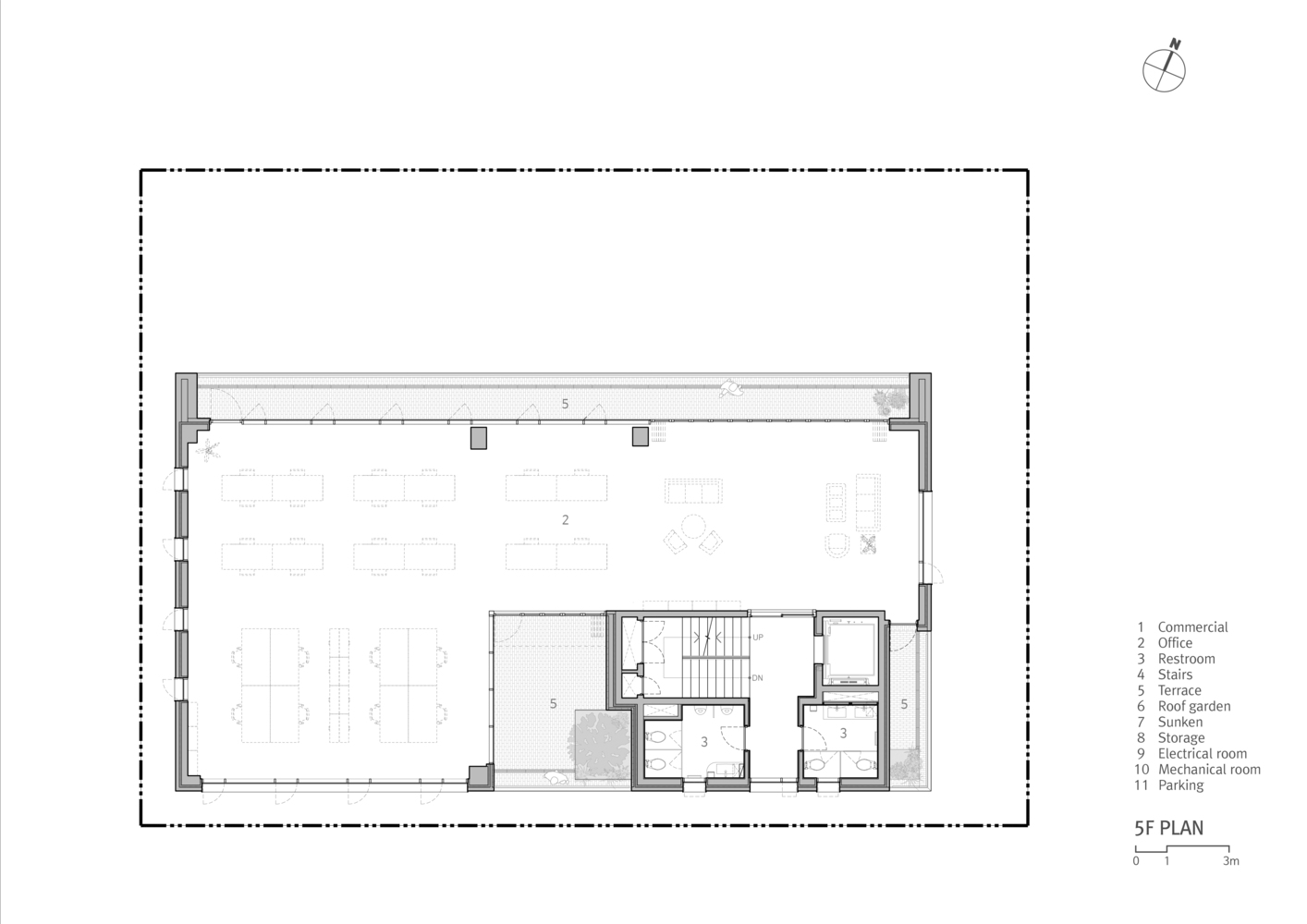
韩国11 露台办公楼平面图
韩国11 露台办公楼平面图
韩国11 露台办公楼平面图
韩国11 露台办公楼平面图
韩国11 露台办公楼平面图
韩国11 露台办公楼平面图
韩国11 露台办公楼平面图
韩国11 露台办公楼平面图
韩国11 露台办公楼平面图
韩国11 露台办公楼剖面图
韩国11 露台办公楼剖面图
韩国11 露台办公楼立面图
韩国11 露台办公楼立面图
韩国11 露台办公楼立面图
韩国11 露台办公楼立面图
客服
消息
收藏
下载
最近
































