查看完整案例

收藏

下载
项目名称:意大利Furla总部
位置:意大利
设计公司:GEZA Architettura
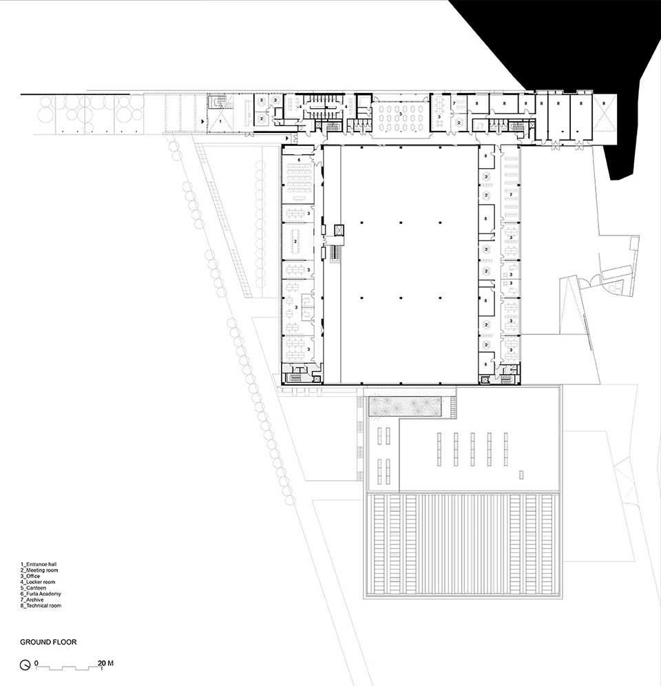
新Furla总部位于意大利佛罗伦萨省Tavarnelle Val di Pesa的著名葡萄酒产区 —— 基安帝(Chianti)。设计的核心理念旨在将工业建筑与意大利本土景观融为一体,引起人们对于工作空间质量的反思。建筑与自然的完美融合,创造出独一无二的Furla总部,并使其与基安帝地区广袤的丘陵、工业遗产以及农业景观产生出和谐的对话。Furla工厂占地42000平方米,建筑面积18300平方米,由办公、实验室,以及后勤部门三个主要体量组成。建筑外观的设计旨在与周围景观和谐相融,以没有太多对比的谦逊姿态使建筑与自然形成共生关系与有效的平衡。场地的自然地貌是设计的重要依据之一,并通过三种基本元素得到了增强,这三种元素分别为:车道、露台,以及Furla广场,它们定义了建筑体量,并在建筑周围界定出清晰的边界。丰富的露台和绿色屋顶系统,模糊了室内外的界限,将自然渗透到建筑之中,同时为人们提供了俯瞰周围森林景观的理想场所。项目的主入口让人联想起典型的托斯卡纳别墅:笔直排列的柏树欢迎着来访者,并营造出强烈的方向感与仪式感。
在本项目中,这种节奏被复刻在建筑的立面上,根据朝向与季节设置的遮阳百叶能够调节进入工作空间的光线,营造出舒适的工作环境。建筑的主要空间序列沿街排布,不同功能交错布置在不同楼层上以满足不同活动的需求;停车场与自然地形融为一体;而Furla广场则成为整条场地轴线的焦点,标志着园区与建筑的主要入口。Furla广场不仅是场地的焦点,更是整个总部的核心,人们可以从这里直接进入管理和生产部门。尽管位于不同的建筑中,但是合理的内部交通流线将两个部分有机地连接在一起,从而完美地整合了通常相互独立的工作区域。办公室入口、双层通高的接待大厅,以及大型露天大厅成为建筑和景观之间的边界。室内布局灵活有序,办公室的空间序列被丰富的绿色露台与过渡空间打断,将休闲空间、会议室以及陈列室有机地插入到办公空间之中。
自然景观是本项目中最为突出的元素之一,这不仅是因为基安蒂山脉的壮美景色,还因为它为总部营造出宜人的工作环境;天井、绿色屋顶以及经立面百叶过滤的自然光线将建筑与自然相互渗透,同时创造出高可持续性的工作空间,拉近了人与自然的联系,放松了人们的身心。可持续发展在这个符合绿色能源最佳实践的项目中扮演着关键角色,生产部门的建筑上装备了太阳能光伏系统,同时太阳能集热板能够保证建筑内用于卫生和供暖的热水供应,此外,基于led的照明系统能够在尽可能的情况下优先使用可再生能源。为了进一步践行可持续发展的原则,工厂建筑的外观采用了无机矿物粉末涂层,这种材料能够与光发生反应,以减少空气污染物。此外,创新技术保证了涂层的高反射指数,因此立面不会因太阳辐射而过热。最后,本项目中的雨水循环系统也得到了优化,以支持花园和绿地的灌溉系统。
意大利Furla总部外部实景图
意大利Furla总部外部实景图
意大利Furla总部外部实景图
意大利Furla总部外部实景图
意大利Furla总部外部实景图
意大利Furla总部外部实景图
意大利Furla总部外部实景图
意大利Furla总部外部实景图
意大利Furla总部外部实景图
意大利Furla总部外部实景图
意大利Furla总部外部实景图
意大利Furla总部外部实景图
意大利Furla总部外部实景图
意大利Furla总部外部实景图
意大利Furla总部外部实景图
意大利Furla总部外部实景图
意大利Furla总部外部实景图
意大利Furla总部外部实景图
意大利Furla总部内部实景图
意大利Furla总部内部实景图
意大利Furla总部内部实景图
意大利Furla总部内部实景图
意大利Furla总部平面图
意大利Furla总部平面图
意大利Furla总部平面图
意大利Furla总部平面图
意大利Furla总部平面图
意大利Furla总部剖面图
意大利Furla总部立面图
意大利Furla总部立面图
客服
消息
收藏
下载
最近

































