查看完整案例

收藏

下载
项目名称:德国IHK商务中心
位置:德国
设计公司:Behles & Jochimsen
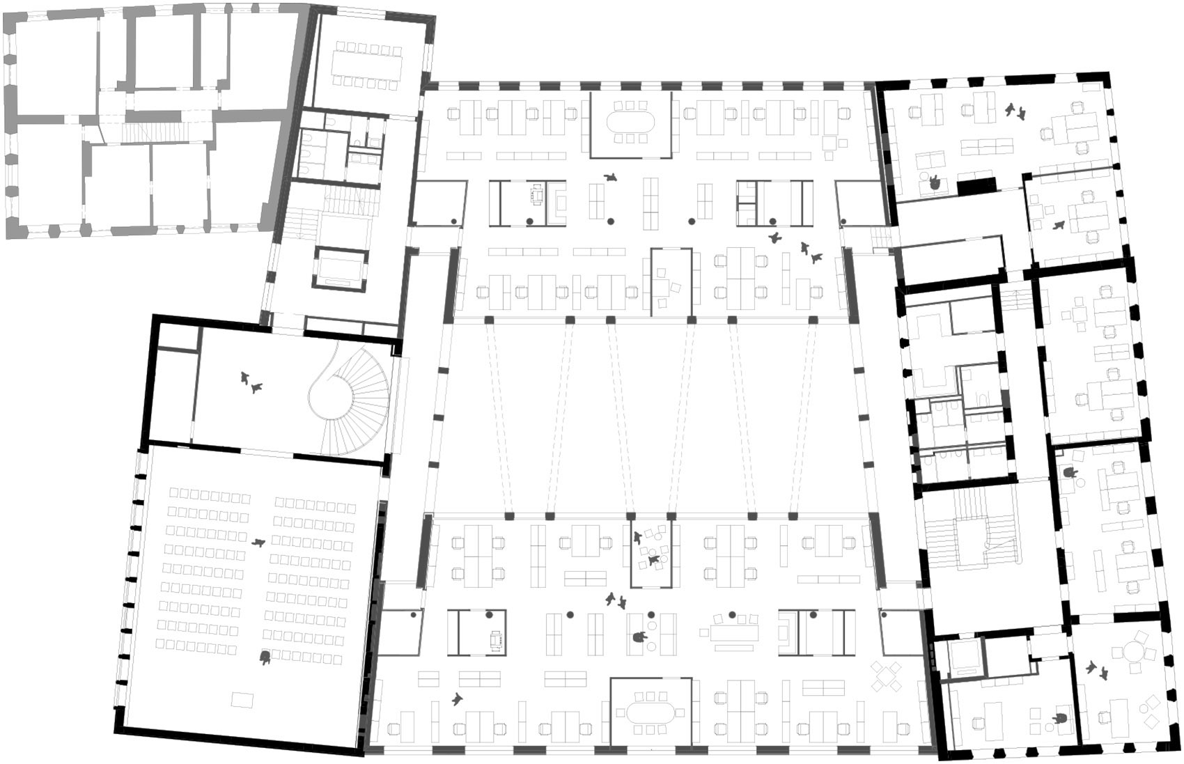
本项目坐落于纽伦堡主要集市广场与Sebald街道之间,之前曾是一系列略显分散的建筑群,经过Behles & Jochimsen事务所的改造与整合后变身为多功能办公综合体。尚未被列为文化保护遗产的一系列单体建筑通过解构和重建,创造出连贯而灵活的办公空间。六栋办公楼围绕中央庭院组织,改造前的庭院空间向西侧开放,如今则被封闭了起来,这种设置整合了分散的建筑布局,仅需两部楼梯就可以进入所有内部空间。根据当地规范,Behles & Jochimsen事务所对原建筑进行了整体翻修。这些建筑的历史可以追溯到20世纪50年代至60年代,由于结构缺陷,在翻修过程中,大部分建筑都需要复原为最初的状态。
被列入文化遗产名单的建筑立面被保护了起来,部分立面则经过拆除、修复并归回原位。新建部分的设计结合了旧城区的历史环境,继承了具有当地特色的砂岩立面与平瓦坡屋顶,彰显出设计对战后重建城市风貌的致敬。折叠的檐窗高度则依据了其他历史建筑的建造标准。从前的街区内院如今变身为玻璃覆盖的中庭,作为接待大厅,同时也可以作为展览与活动空间使用。通透的连廊沿立面排布,这使得走廊后的历史建筑立面依旧清晰可见,这些连廊作为建筑群组之间的无障碍通道,紧密地维系起不同功能区域,同时让人联想到纽伦堡传统住宅庭院中的木制拱廊。中庭屋顶周围的室外露台则构成了休息与社交的理想场所。在室内,原建筑所采用的高品质材料也得到了进一步优化与凸显,反应出具有时代精神的改造策略。
德国IHK商务中心外部实景图
德国IHK商务中心外部实景图
德国IHK商务中心外部实景图
德国IHK商务中心外部实景图
德国IHK商务中心外部实景图
德国IHK商务中心外部实景图
德国IHK商务中心外部实景图
德国IHK商务中心外部实景图
德国IHK商务中心外部实景图
德国IHK商务中心外部实景图
德国IHK商务中心外部实景图
德国IHK商务中心外部实景图
德国IHK商务中心外部实景图
德国IHK商务中心外部实景图
德国IHK商务中心外部实景图
德国IHK商务中心外部实景图
德国IHK商务中心外部实景图
德国IHK商务中心内部实景图
德国IHK商务中心内部实景图
德国IHK商务中心内部实景图
德国IHK商务中心内部实景图
德国IHK商务中心内部实景图
德国IHK商务中心内部实景图
德国IHK商务中心内部实景图
德国IHK商务中心内部实景图
德国IHK商务中心内部实景图
德国IHK商务中心内部实景图
德国IHK商务中心内部实景图
德国IHK商务中心内部实景图
德国IHK商务中心内部实景图
德国IHK商务中心内部实景图
德国IHK商务中心内部实景图
德国IHK商务中心内部实景图
德国IHK商务中心内部实景图
德国IHK商务中心内部实景图
德国IHK商务中心内部实景图
德国IHK商务中心内部实景图
德国IHK商务中心内部实景图
德国IHK商务中心内部实景图
德国IHK商务中心内部实景图
德国IHK商务中心平面图
德国IHK商务中心平面图
德国IHK商务中心剖面图
客服
消息
收藏
下载
最近














































