查看完整案例

收藏

下载
项目名称:匈牙利科文科技园
位置:匈牙利
设计公司:3h architects
摄影师:巴拉兹单衣,Futureal
Corvin Promenade 的建设是中欧最大的市中心城市更新投资,是国际公认且屡获殊荣的开发项目。房地产开发概念将区域破旧建筑的特定区域切出,取而代之的是完全更新的城市肌理,其中包括商业、住宅和办公楼。科文科技园(C5)位于这条带的末端,因此它在关闭贯穿该地区的中央长廊方面起着突出的作用。作为对对面建筑的补充,办公楼垂直于轴线放置,在建筑物之间创造了更多空间,同时也是长廊的明确终点。在开发体量的概念时,我们将它们适应了现有的空间情况。C5办公楼和对面的建筑是两个相邻城市街区的一部分,面向办公楼之间空间的立面和墙壁构成了封闭的城市广场的框架。两座办公楼的高度值相似,这对城市空间的形成很重要。这是建筑物下部的两层楼,承载着长廊的商业和服务区。步行通道服务于建筑物和广场之间的过渡,延续了从广场开始的方形花环。 主要的困难是规模的变化。当局允许的建筑物高度对周围环境产生巨大影响。为了平衡这一点,我们逐渐降低了体量的高度,最大限度地减少了将新街区连接到现有城市肌理时出现的问题。
通过将建筑分割成更小的部分,它的大小和比例更接近邻近的住宅建筑。办公楼以体量的相互作用为基础。元素的附加结构显示出一定的自发性,从而产生有趣的空间情况。略微移位的单元似乎减小了它们的尺寸。立面的衔接加强了基于体积的公式化。开口的深度故意比平时更大,每个元素都加强了建筑的整体外观。通过提升建筑物的中间部分,可以确保视线和通道与主要的行人流一起畅通无阻。这个被定义为桥的悬挂部分变得更平坦,表面在这里占主导地位。建筑的立面在每一侧都表现出细微的差异。整体画面中较小的细微差别由开口的大小和深度给出。开口的大小根据给定立面的方向而变化。除北侧外,每一侧都安装了隐藏的外部遮阳板。整体概念基于外墙材料的统一使用。底座的预制混凝土墙饰面、平面的细微变化以及上层灰泥效果的饰面,形成了统一但同时又多变的立面设计。
匈牙利科文科技园外部实景图
匈牙利科文科技园外部实景图
匈牙利科文科技园外部实景图
匈牙利科文科技园外部实景图
匈牙利科文科技园外部实景图
匈牙利科文科技园外部实景图
匈牙利科文科技园内部实景图
匈牙利科文科技园内部实景图
匈牙利科文科技园内部实景图
匈牙利科文科技园内部实景图
匈牙利科文科技园内部实景图
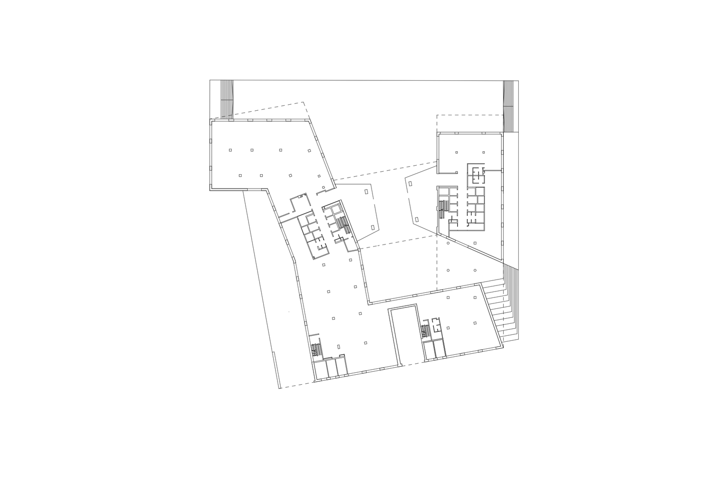
匈牙利科文科技园平面图
匈牙利科文科技园平面图
匈牙利科文科技园平面图
匈牙利科文科技园立面图
客服
消息
收藏
下载
最近


















