查看完整案例

收藏

下载
项目名称:贝宁SÈMÈONE中心
位置:贝宁
设计公司:COBLOC Architecture
该项目需要将现有的未完工结构重组和提升为大型智能建筑。一个新项目,一个新项目,这座建筑成为了 SOMEONE,一个创新和设计相关部门的培育中心和孵化器,由贝宁科托努的 l'Agence de Développement de Sèmè City à Cotonou领导。该项目的建设性挑战在于巧妙地干预这座建筑,该建筑多年来基本上未完成,并且必须进行重大的结构修改。为了确保采用一种微妙而谨慎的方法,采用了城市生态和生物气候概念的精神。在这个破败建筑的具体案例中,处于技术手段和材料难以获得的环境中,我们提出了我们的概念和创新,同时始终注意最大限度地保护和重新利用现有建筑。该结构由柱和梁组成,带有空心楼板。后者由空心刨花板稳定。整体由楼梯肋骨和混凝土电梯井支撑。该项目位于赤道地区,外部温度在 27 至 34°C 之间变化,平均湿度为 80%。主体量相当长,拥有宏伟的线性立面。它是有目的的坚固和封闭的,以保护自己免受当地阳光条件的影响。
因此,更多暴露在阳光下的立面(南、东、西)采用双墙系统,气隙为 40 厘米,以增加墙的惯性,减少热波动并确保昼夜稳定的气候。热舒适。高声学和热学性能的窗户沉入后墙以减少热量增加。另一方面,阳光较少的北立面有一个简单的墙壁,开口周围有大框架,旨在防止强烈的阳光照射并漫射柔和的光线。为了打破超过 100 米的水平线,通过窗户和彩色百叶窗的形式引入了垂直序列,这些百叶窗沿着立面移动时会产生动画效果。在里面,大厅穿过,沐浴在来自庭院上方的大凸窗的光线中。天花板网格通过带有灰色阴影的流通区域的长度突出显示。房间分布在中央循环的每一侧,室内窗户使光线漫射,可以看到建筑物的活动。处理蔓延到天花板和地板的垂直开口,将光线分解到空间中。 两个主要的流线为建筑服务,每层都提供了会议空间,学生/专业人士/年轻企业家可以在那里发展交流关系。地板和墙壁通过绘制会议空间的颜色游戏而恢复活力。
智能建筑 - 该项目旨在接受“智能建筑”援助,允许传输和储存有关建筑使用和状态的输入。通过这种方式,用户可以优化不同参与者的使用:照明、气候、海拔、计算机网络、互联网连接、物理安全等……并根据需求调整它的消耗量。由于每个会议室的数字预订系统,后者是活跃的并有助于衡量服务效率。 景观区 - 景观区的研究目的是提出一个教育花园,它可以同样作为与部级中层建筑的物理和视觉分离。精心设计了植物调色板,以发展支持发现的生物多样性,同时寻找与周围绿色植物的景观连续性。中央路径的每一侧都有各种放松的空间,有日本台阶,作为外部相遇的避难空间。拆除建筑物的一些现有部分,这些部分过于恶化且不适应该计划,以及建造额外的楼层,结果证明是必要的。开口和现有通道经过修改和重新创建,以允许用户的移动符合 PMR 消防规定。
贝宁SÈMÈONE中心外部实景图
贝宁SÈMÈONE中心外部实景图
贝宁SÈMÈONE中心外部实景图
贝宁SÈMÈONE中心外部实景图
贝宁SÈMÈONE中心外部实景图
贝宁SÈMÈONE中心外部实景图
贝宁SÈMÈONE中心外部实景图
贝宁SÈMÈONE中心外部实景图
贝宁SÈMÈONE中心外部实景图
贝宁SÈMÈONE中心外部实景图
贝宁SÈMÈONE中心外部实景图
贝宁SÈMÈONE中心外部实景图
贝宁SÈMÈONE中心轴侧图
贝宁SÈMÈONE中心轴测图
贝宁SÈMÈONE中心轴测图
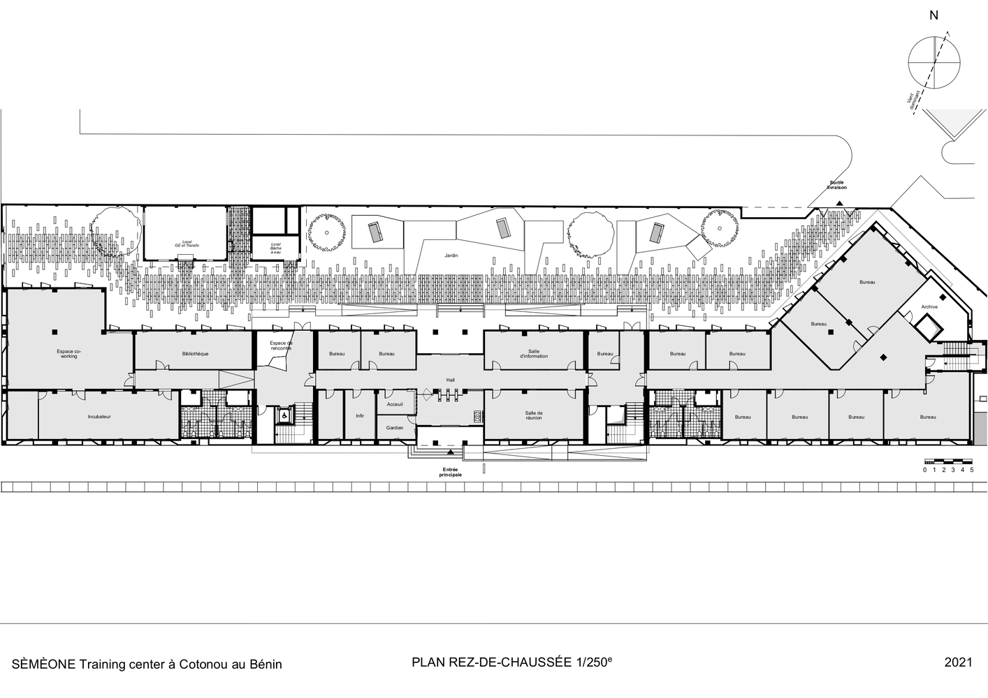
贝宁SÈMÈONE中心平面图
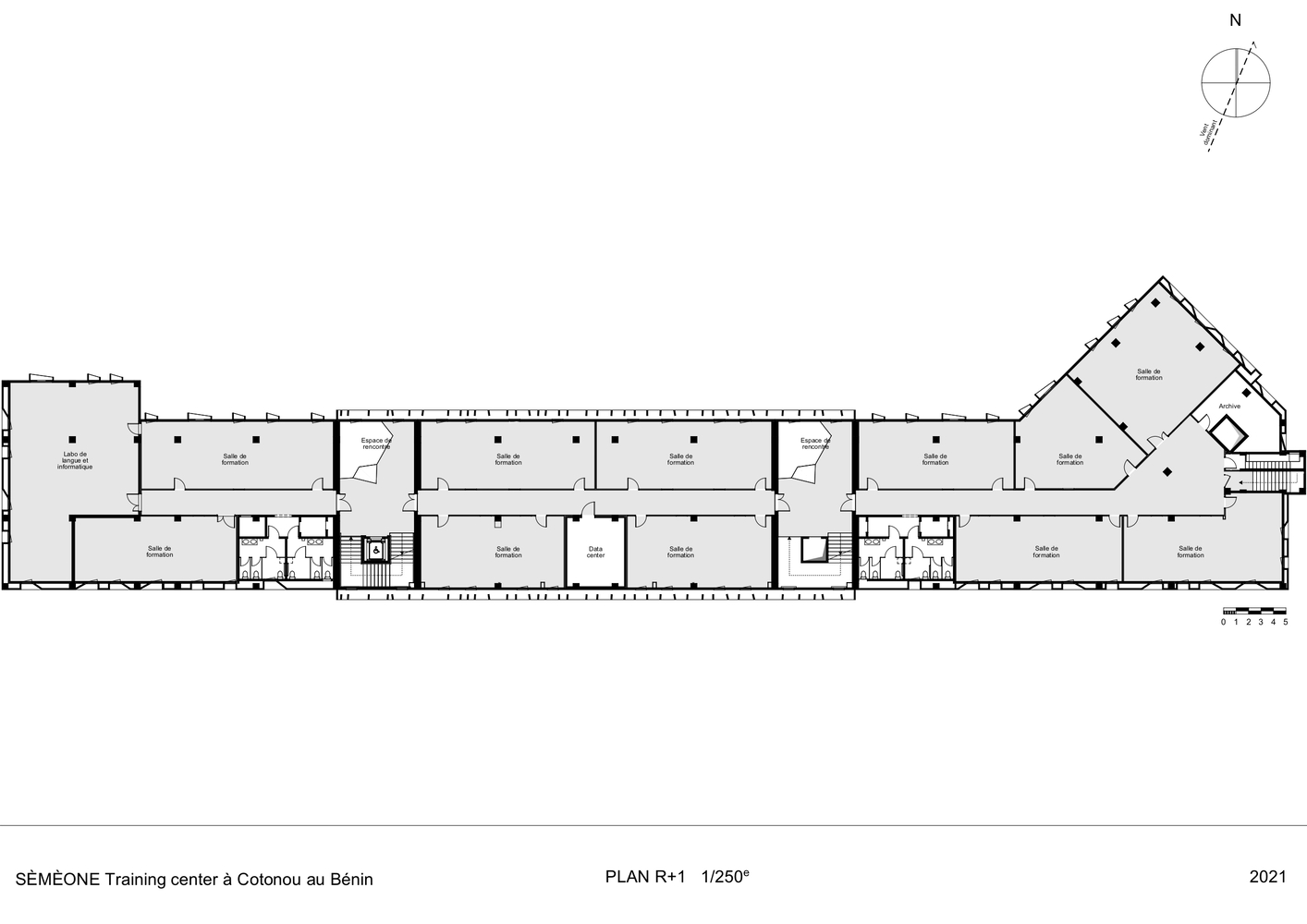
贝宁SÈMÈONE中心平面图
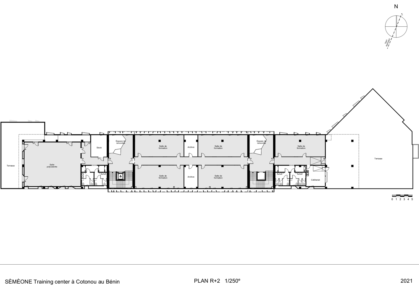
贝宁SÈMÈONE中心平面图
客服
消息
收藏
下载
最近





















