查看完整案例

收藏

下载
项目名称:也门布拉提克新总部及生产车间
位置:也门
设计公司:GEZA
摄影师:Fernando Guerra | FG+SG
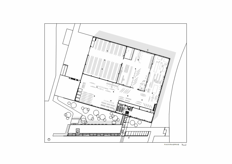
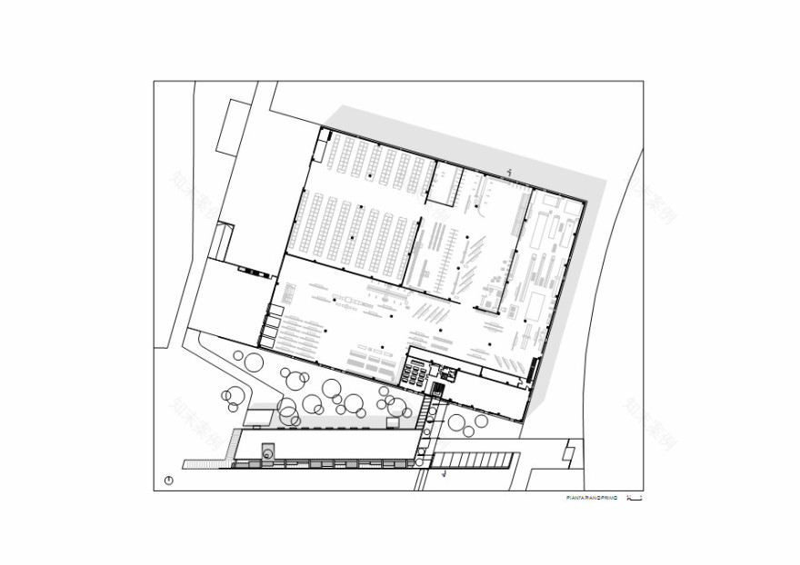
布拉提克公司的新总部及生产综合体最近在意大利北部Udine省的Fagagna落成,这家公司的拥有者为Orioli兄弟,他们致力于幕墙系统的设计和生产。建筑选址靠近Udine通往Spilimbergo的公路,由GEZA设计建造。项目主要组成部分有:主体建筑,平行排列的生产区域总面积约10000平米;1000平米的办公区域,与主体建筑相邻,并旋转15度以与附近的公路平行;一个有100个车位的停车场;一个卸货区及一个2700平米的服务区;一个33000平米的花园。此外,这个空间融入了交流、展示、休息室及开放和私密交流空间用以承载工人们日常的活动。这个建筑综合体设置在镇子工业区域的一角,通过设计与周边的农业景观紧密地联系在一起,最终成为这个区域山地景观的一部分。这个项目充满了对简约风格的强烈追求。建筑的结构、色彩及与周边景观的交流都极为纯粹与元素化,无处不实践着简约的原则。尽管建筑外观宁谧、幽深的,它仍然成为了附近的一个标志。办公楼的体量甚至在附近公路上都十分的突出,它识图在概念上建立一种动与静的交流。生产中心的体量更偏向水平向的延伸,外表由宽度不同高度固定(10米)的玻璃和板材组成的横向条纹装饰。不同尺寸的黑色大理石板材及深色的水泥在光影、环境的变化下形成了立面生动的变化。办公楼的南侧设计了黑色的大尺寸(约80米长)混凝土梁突出了项目的横向元素。与地面平行的横梁伸出了建筑形成了建筑本身与周围景观的交流。玻璃立面的反射形成了“漂浮的遮阴”的效果,为办公区域提供了温度的调节。
普拉提克总部内部的功能组织旨在建立一个均质化的空间及不张扬、与自然融合的建筑环境。从卸货区到办公空间的规划,每个功能空间都十分清楚明确。这种简洁甚至可以理解为项目与周围环境交流,GEZA通过三种不同的元素:经过修整的场地、花园及庭院完成了这种简洁。建筑南部及西部的经过修整的场地与周围的环境很好的融合。两座主楼分立在花园两边,半私密的空间调和了与生产部的关系。在庭院中心种植的橡树界定了设计的自然元素。自然的元素及空间本身打破了办公建筑的连续,因而拉近了人与自然之间的距离。庭院通过引入外部环境丰富了内部空间,并模糊了办公空间与外部景观的界限。为车辆预留的环线略微下沉,屏蔽了外部公路的影响。项目对景观的重视也是基于对环境可持续的一种考量。生产部分的屋顶布置了约2300平米的太阳能电池板,它产生的点亮足够建筑的必要能耗。普拉提克被设计为“A级”认证建筑(相似于LEED铂金认证),能够实现能源自给。太阳能电池板被隐藏在建筑屋顶之中实现不能及的地方。基于一些对于室内健康及节能策略的研究,布拉提克在办公及生产部门安装了阳光遮蔽设施。在这一点上,“漂浮的遮阴”除了是建筑的形象特质之外,也是建筑环境控制不可缺少的配置,因为它遮蔽、调节各个季节直射入办公室的阳光。景观、日照及可持续能源是理解布拉提克总部设计的关键词。它最优化了这栋工业建筑。通过地形、光照以及它前后的地形变化,这栋建筑成功地域周围环境融为一体。
也门布拉提克新总部及生产车间外部实景图
也门布拉提克新总部及生产车间外部实景图
也门布拉提克新总部及生产车间外部实景图
也门布拉提克新总部及生产车间外部实景图
也门布拉提克新总部及生产车间外部实景图
也门布拉提克新总部及生产车间外部实景图
也门布拉提克新总部及生产车间外部实景图
也门布拉提克新总部及生产车间外部实景图
也门布拉提克新总部及生产车间外部实景图
也门布拉提克新总部及生产车间外部实景图
也门布拉提克新总部及生产车间外部实景图
也门布拉提克新总部及生产车间外部实景图
也门布拉提克新总部及生产车间外部实景图
也门布拉提克新总部及生产车间外部实景图
也门布拉提克新总部及生产车间外部实景图
也门布拉提克新总部及生产车间外部实景图
也门布拉提克新总部及生产车间外部实景图
也门布拉提克新总部及生产车间外部实景图
也门布拉提克新总部及生产车间内部实景图
也门布拉提克新总部及生产车间内部实景图
也门布拉提克新总部及生产车间内部实景图
也门布拉提克新总部及生产车间内部实景图
也门布拉提克新总部及生产车间内部实景图
也门布拉提克新总部及生产车间平面图
也门布拉提克新总部及生产车间平面图
也门布拉提克新总部及生产车间平面图
也门布拉提克新总部及生产车间立面图
客服
消息
收藏
下载
最近






























