查看完整案例

收藏

下载
项目名称:捷克POHL总部
位置:捷克
设计公司:Rusina Frei Architekti
摄影师:托马斯·苏切克
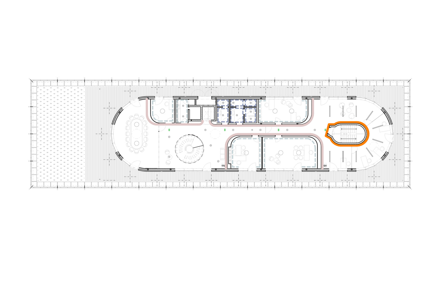
家族企业 POHL cz 是捷克最重要的建筑公司之一。其新总部被视为公司的旗舰,将行政运营的实际需求与自我代表的需求相结合。该建筑的结构不仅受其位于郊区工业区的位置的影响,还受公司传统和其经营所在的建筑部门的影响。空置的底层允许整个大场地的渗透性。上面的两层楼包含大型办公室和蜂窝办公室。这里的条形窗户、混凝土框架和模块化隔断系统允许灵活的平面图。带有连续露台的顶部撤退层专为管理而设计。整个建筑由螺旋楼梯连接。该建筑特意采用了建筑行业的一些工业元素,专注于地下结构。外立面覆盖着波纹耐候板,指的是板桩和收集器的臂。即使是圆形的核心和立面覆层也是技术设备的提醒。内部装置也受到技术的启发,并暴露在外;在狭窄的技术空间中,这些装置被巧妙地编织在一起,就像在潜艇中一样。特别强调了空间和宜人的工作环境之间的平衡。与生锈的外墙形成鲜明对比的是,周围环境的工业特征也得到了选择新植被和种植深女儿墙、露台和带有攀援植物和悬垂植物的屋顶的支持。
捷克POHL总部外部实景图
捷克POHL总部外部实景图
捷克POHL总部外部实景图
捷克POHL总部外部实景图
捷克POHL总部外部实景图
捷克POHL总部外部实景图
捷克POHL总部外部实景图
捷克POHL总部外部实景图
捷克POHL总部外部实景图
捷克POHL总部内部实景图
捷克POHL总部内部实景图
捷克POHL总部内部实景图
捷克POHL总部内部实景图
捷克POHL总部内部实景图
捷克POHL总部内部实景图
捷克POHL总部内部实景图
捷克POHL总部内部实景图
捷克POHL总部内部实景图
捷克POHL总部内部实景图
捷克POHL总部内部实景图
捷克POHL总部平面图
捷克POHL总部平面图
捷克POHL总部平面图
捷克POHL总部平面图
捷克POHL总部平面图
捷克POHL总部立面图
捷克POHL总部立面图
客服
消息
收藏
下载
最近






























