查看完整案例

收藏

下载
项目名称:印度紫罗兰办公楼
位置:印度
设计公司:Nestcraft Architecture
摄影:红兹摄影
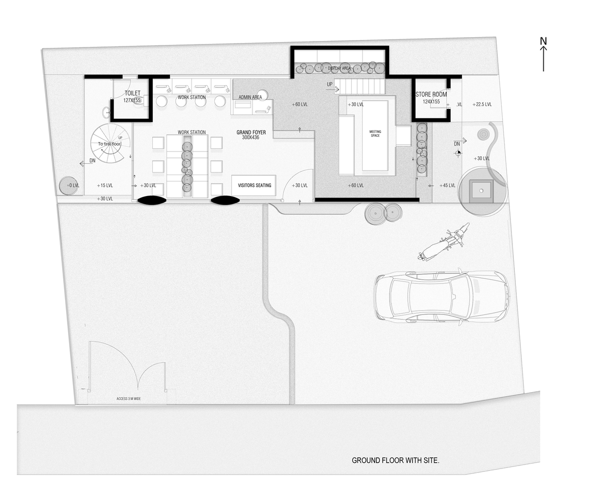
建筑师的“人洞”,体现了他的生活、内心的喜好并放大了他作为一个人的光环。为他的团队、他的家人和朋友以及想要利用他的专业知识的人提供的空间。一个促进思想交流、学习、聚会、休闲、工作和生活的平台。一个完全适合他作为人和建筑师的构建/制作的地方。团队的休闲布置建议了一个温馨但沉思的空间,以保持创造性的心情。我们将在我们的设计中找出独特的开箱即用元素、意识形态和哲学的有益目标或意图比喻为“紫罗兰”。紫罗兰-建筑师办公室。建筑东西向的线性方向,建筑宽度(5 m)两侧的开口允许空间内自然采光和交叉通风的不断变化的气氛。早晨的东光穿过建筑物的整个 15 m 长度,反之亦然,黎明西光。规划有最小的外墙,没有内部隔断。这是一个单层的房间,高5 m,东西两端有2层夹层。虽然底层有 12 个工作站,但它在正门旁边有一个南入口授予门厅,里面有一个等候室和行政台。西边的夹层有一个通过螺旋楼梯进入的迷你食品储藏室,东边的夹层有建筑师空间。
东侧更随意,更像是一个互动空间,而西侧则是一个正式的工作空间。与任何设计方法不同,该项目表现出强烈的渴望,通过响应保持简单、引人入胜以及将材料和调色板与现代底色相融合的草根原则,摆脱立面建筑的教条。室内和室外空间以这样一种方式并置,两个空间相互融合,呈现出一种开放式办公室概念的感觉,为游客创造了一个鼓舞人心的地方。单间开放式办公理念促进互动、透明、团队合作、开放讨论和充满活力的学习氛围,有助于创造一个崇高的项目。大厅内不断变化的空间体积/高度暗示了各种空间体验。大门厅的双高度和两端最低高度的夹层地板暗示了建筑物内外的一系列视觉连接。谈话坑、夹层房间、员工工作站、露台、前院和露台提供了不同排列的互动空间。
印度紫罗兰办公楼外部实景图
印度紫罗兰办公楼外部实景图
印度紫罗兰办公楼外部实景图
印度紫罗兰办公楼外部实景图
印度紫罗兰办公楼外部实景图
印度紫罗兰办公楼外部实景图
印度紫罗兰办公楼外部实景图
印度紫罗兰办公楼内部实景图
印度紫罗兰办公楼内部实景图
印度紫罗兰办公楼内部实景图
印度紫罗兰办公楼内部实景图
印度紫罗兰办公楼内部实景图
印度紫罗兰办公楼内部实景图
印度紫罗兰办公楼内部实景图
印度紫罗兰办公楼平面图
印度紫罗兰办公楼平面图
印度紫罗兰办公楼平面图
印度紫罗兰办公楼剖面图
印度紫罗兰办公楼剖面图
印度紫罗兰办公楼立面图
印度紫罗兰办公楼立面图
印度紫罗兰办公楼立面图
客服
消息
收藏
下载
最近

























