查看完整案例

收藏

下载
项目名称:美国PGA TOUR总部
位置:美国
设计公司:Foster + Partners
项目坐落于佛罗里达州蓬特韦德拉海岸,系职业高尔夫巡回赛(PGA TOUR)的总部办公楼。全新的总部大楼首次将整个组织汇聚于同一屋檐下,为疫情后的世界开创了一个创新式的工作场所范本。低矮的三层建筑坐落在郁郁葱葱的绿色景观之中,建筑周围新开凿的人工湖将这种戏剧性的自然体验推向了高峰。设计注重人们的健康与幸福感,茂盛的绿色景观模糊了室内外的界限,阴凉的室外露台和宽敞的公共空间激发出新的工作模式与合作模式,为人们带来了前所未有的舒适工作体验。“在我们第一次参观Sawgrass基地时,就被这里的景观深深吸引,光、影与水的相互作用成为我们的设计灵感,并引导我们画出了第一张概念草图。巨大的悬挑屋顶能够在最大程度上优化自然采光与景观视野,同时创造出大量的阴凉露台与广场空间。为了进一步强调建筑的景观优势,我们将其布置在“自然”湖与著名的“第十七洞”的景观轴线上。”Foster + Partners事务所负责人Nigel Dancey说道。自然在设计中扮演着关键的角色,彰显出对生命与生活的热爱之情。对人类来说,大自然带有一种无可辩驳的亲和力,这种亲和力能够提高员工的幸福感与工作场所的质量。设计的重点旨在于建筑中营造丰富的空间体验,同时增强建筑与周围景观的联系,使室内空间充满自然光线与新鲜空气。通透的玻璃立面与中庭让建筑实现了这一设计理念,同时也使周围的自然景观尽收眼底。
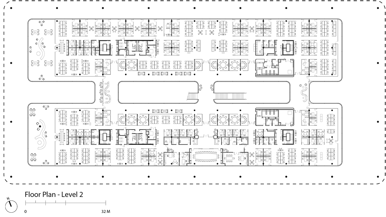
楼板被贯穿整个建筑的中庭一分为二,中庭则是整个建筑的社交中心,可以用于举办各种公司内部活动。大量正式和非正式会议空间灵活地围绕在中庭四周,为员工提供了充足的社交与工作场所,营造出自由开放的工作环境。建筑的两翼由一座20英尺(约6米)宽的桥梁连接,旨在鼓励员工之间的互动交流,同时由于这些交通空间位于功能空间的边缘,因此,在此聚集的人群也不会影响到室内主要交通流线。中央楼梯沿着中庭向下,在连续的楼层之间创造出动态的空间感与流动的视觉效果。宽阔的露台坐落于上部楼层的远端,设有布置灵活的休闲区域,为人们提供了放松的场所,缓解了人们的工作压力。建筑的西端面向高尔夫球场周围郁郁葱葱的自然景观,设有一个全新的员工咖啡厅与底层健身房,堪称全体员工的社交焦点。架空楼板旨在使建筑能够随着时间的推移灵活地改变内部配置。整体设计采用了简单而低调的选材与色彩基调,将建筑变身成充满活力的工作背景。继总部大楼的完美落成后,Foster + Partners事务所与PGA TOUR延续了紧密的合作关系,并开始着手于该项目第二阶段的设计工作,一座全新的数字媒体建筑。该建筑将有助于TPC Sawgrass进阶成为一个更加完备的综合园区。“全新的PGA巡回赛全球总部是一项名副其实的合作产物。通过与PGA TOUR出色的团队紧密合作,我们得以共同打造出这样一座能让巡回赛蓬勃发展并培养人才的建筑。从建筑的整体意向到室内设计,再到细节设计,对我们来说都是一次千载难逢的实践机会。”Foster + Partners高级合伙人James Barnes解释道。
美国PGA TOUR总部外部实景图
美国PGA TOUR总部外部实景图
美国PGA TOUR总部外部实景图
美国PGA TOUR总部外部实景图
美国PGA TOUR总部内部实景图
美国PGA TOUR总部内部实景图
美国PGA TOUR总部内部实景图
美国PGA TOUR总部内部实景图
美国PGA TOUR总部平面图
美国PGA TOUR总部平面图
美国PGA TOUR总部平面图
美国PGA TOUR总部平面图
美国PGA TOUR总部平面图
美国PGA TOUR总部立面图
美国PGA TOUR总部立面图
美国PGA TOUR总部立面图
美国PGA TOUR总部立面图
美国PGA TOUR总部立面图
客服
消息
收藏
下载
最近





















