查看完整案例

收藏

下载

翻译
Architect:rue royale architectes
Location:Vaulx-en-Velin, France; | ;View Map
Project Year:2021
Category:Primary Schools;Secondary Schools
The architects of the Rue Royale Agency have just built the Katherine Johnson School at Vaulx-en-Velin, near Lyon - France.
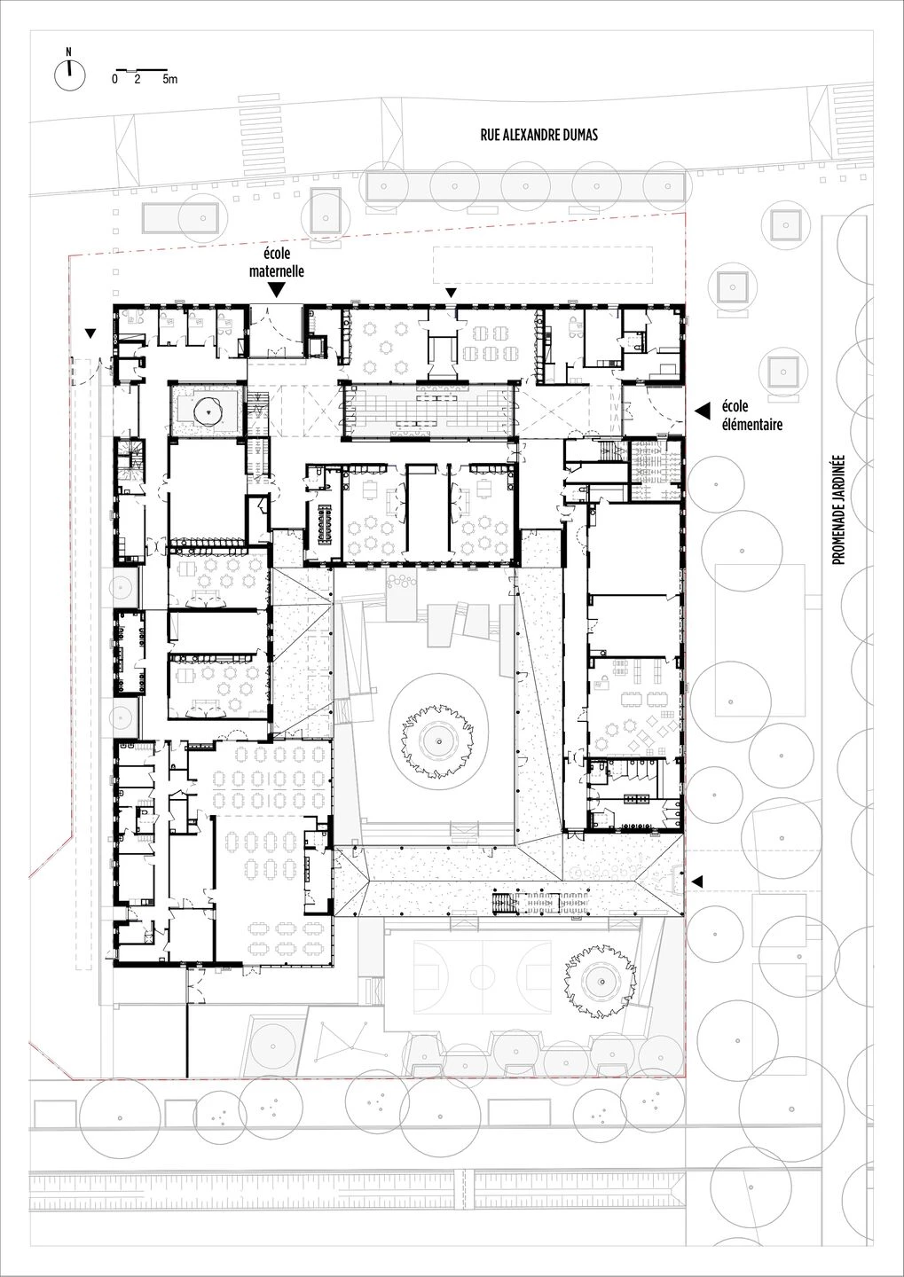
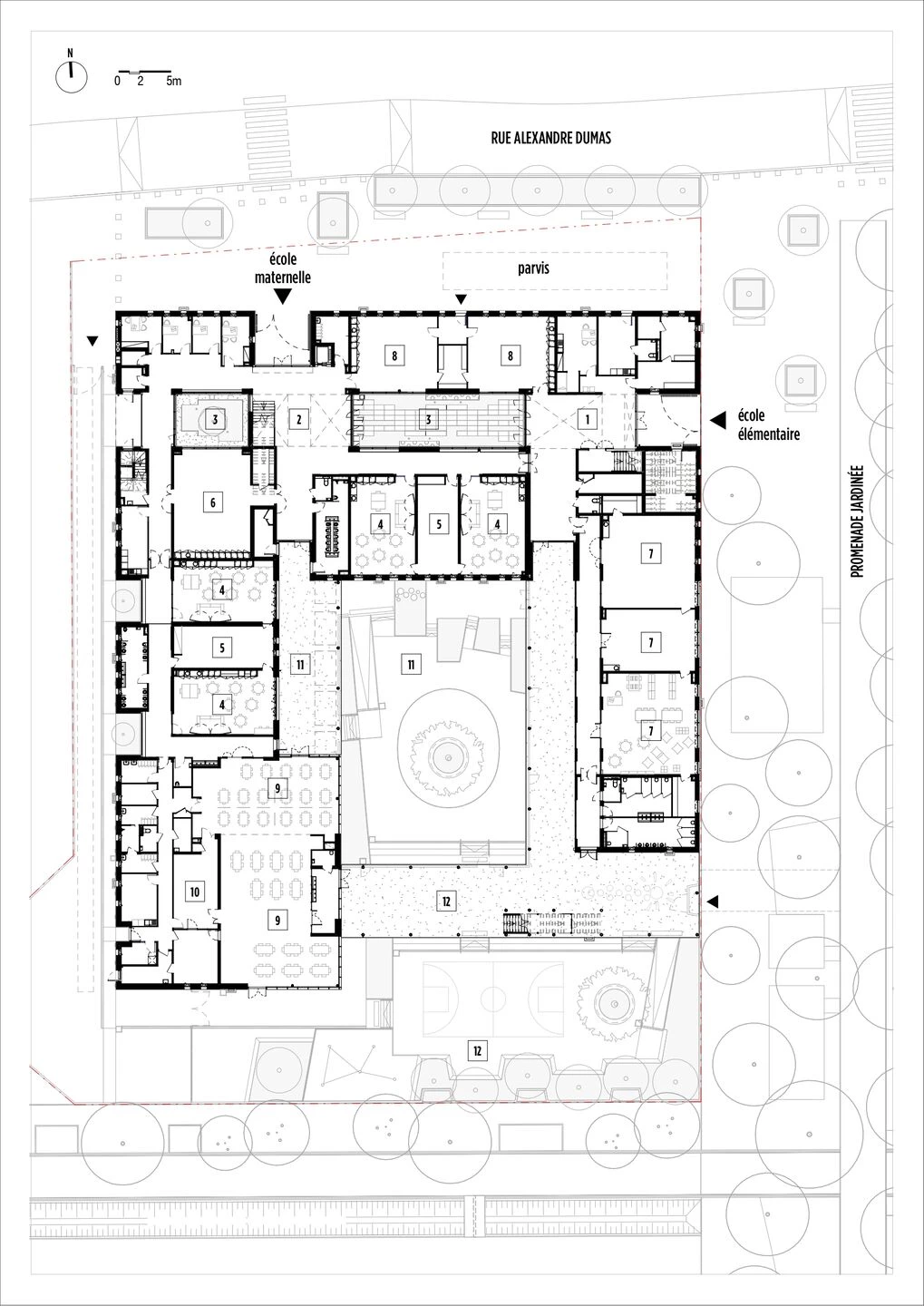
Erected on the former Gimenez quarry, it is part of the large Urban Partnership Project of the same name. It is located along a garden walk created for the project and sits naturally between the houses, with a future sports facility currently in the pipeline, the Brosses cemetery and a 1930s suburban neighbourhood.
Its architecture is structured but not intended to be forthcoming. It’s a school of the Republic that generously reveals its nature without the need to be childish or cute.
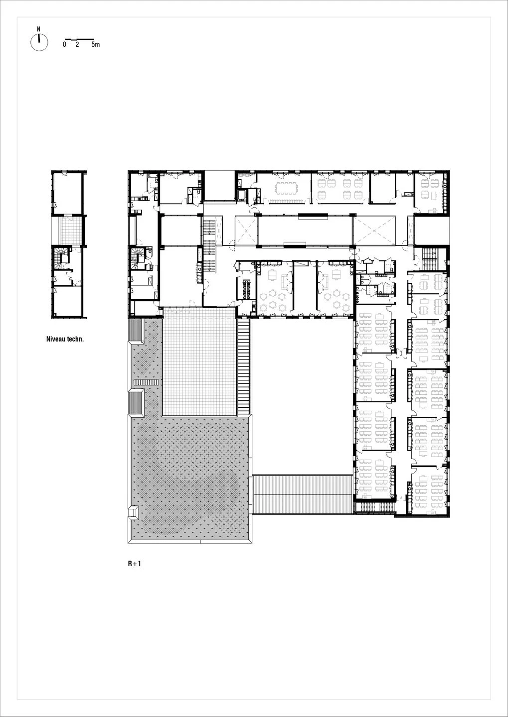
The building marks the corner quite uneventfully, but it is set off to the north by a forecourt. The volumes structure the project. The plan shows them with the shape of two inverted «Ls», interlocked to form a parallelepiped open on its southern side. They are superimposed, with a concrete ground floor and a wooden upper floor.
The third decisive point in the design of the facility was the desire to create a green antenna to cross the building and take the form of a large patio divided into two, the «green room» and «the four seasons». Enclosed by glass volumes, they form a plant-covered link to the garden walkway in an east-west direction.
The school group includes a nursery school and a primary school. There are two entrances and two different ways of operating. The layout offers distinct flows but with ubiquitous and permanent physical and visual similarities between the two.
The materiality of the building is clearly visible. The ground floor forms a GBE® concrete base, with a 16 cm interior concrete, insulation and a 10 cm facing concrete. The latter is light grey and is moulded in horizontal boards without joints. Above, the first floor is composed of woodframe walls, made of three-ply larch.
An original finish completes the design: a polycarbonate fixed to a frame is vertically corrugated and anti-UV treated to protect the wood. The two complement each other harmoniously in their contrast of colours, with their opacity and transparency, their matt and gloss. Wood-aluminium joinery provides a very highquality finish and good energy performance.
The landscaping is important to the project. It is part of teaching children about space and nature, of carefully designed microlandscapes that offer them a new experience. It is designed by Autre Nature, a partner of the Rue Royale Agency. The landscapers are developing designs based on the concepts of sculpted soil and the thickness of boundaries. They are creating boulingrins, a feature and word derived from the classic 17th century English bowling green.
Architects: rue royale architectes
Landscaper: Autre Nature
HEQ Design: Benefficience
HVAC Engineering Consultants: Elithis
Finance & Structural Engineering: Stebat
Urban and external works Engineering: Abest
Acoustic Design: Lasa
Kitchen design: Betr
Authorisation, control and coordination: Procobat
Photographer: Vladimir De Mollerat du Jeu
Concrete Structure Ground Floor
Wooden Frame on the First Floor
Ground Floor Envelope: GBE concrete with matrix
Ground Floor Envelope: Wooden
Façade with tri-ply panel and rain screen finish in corrugated polycarbonate
Vegetated Roof
Double Flow Ventilation
Condensing gas boiler for DHW + kitchen
Renewable energy via photovoltaic roof panels
Environmental characteristics: Effinergie BEPOS (net zero energy building) certified RT 2012
▼项目更多图片
客服
消息
收藏
下载
最近

















































