查看完整案例

收藏

下载

翻译
Architects:Pranala Associates
Area:457m²
Year:2021
Photographs:Mario Wibowo Photography
Manufacturers:Hansgrohe,Neolith,Duravit,YKK Alumunium
Contractors:Bouw Atelier
Interior Designers:Pranala Associates,Mono Intercraft
Landscape Designers:Malaya
Project Architects:Erick Laurentius, Ahmad Zabel, Dian Irawan
City:Bandung
Country:Indonesia
Text description provided by the architects. Located in southern Bandung with a fairly dense residential area, YT House is a residence that emphasizes the owner's desire for privacy. The house, located in the corner of the residential complex, uses trees to maintain the privacy of its owner so that what is visible from the outside is only a fence and trees. On the other hand, from the inside, the outdoor view will immediately focus on the trees, not directly facing the street in the front.
Pranala Associates followed a firm grid to design the house, seamlessly transitioning from outdoor to indoor. YT House, even though it is located in the Bandung area where the temperature is relatively higher, does not require an air conditioner due to good air circulation from its large opening.
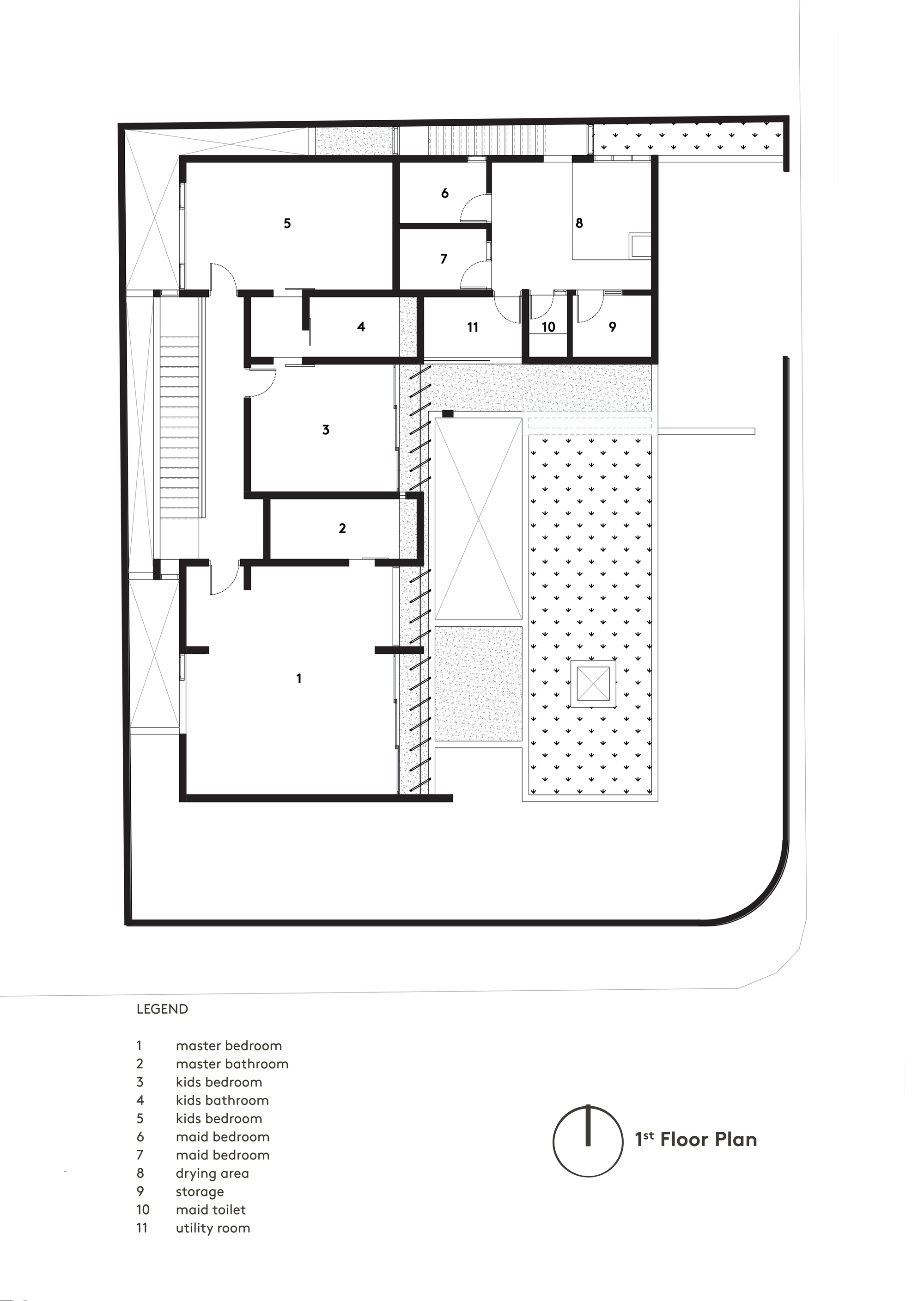
On the ground floor, there is a praying room next to the living & dining area that can be opened or closed according to the owner's needs, thus providing more privacy. Flooring is intentionally installed on the same level because the owner of the house often holds events at his house. This time, Pranala Associates emphasized the experiment in sequences on the ceilings to give an impression of a much larger space and provided large openings so that enough light entered the spaces.
Some details in this house are Inspired by kikkou, a Japanese traditional pattern depicting tortoiseshell which symbolizes longevity. It can be seen on the ceiling in the living room, which is decorated with faux rattan and wooden screens in the bedrooms. To add to the residents’ privacy, a wooden screen is installed on the bedroom window on the second floor which allows sunlight to enter from the gaps. The bedroom window also faces the rooftop garden planted with cogon grass. Residents can also see the green leaves of the trees planted in the inner court on the ground floor.
Project gallery
客服
消息
收藏
下载
最近
































