查看完整案例

收藏

下载
项目名称:荷兰Geldrop-Mierlo市政厅装修
位置:荷兰
设计公司:Reset Architecture
项目团队:Theo Mathijssen,Stephan Kentie,Willemijn Meeusen,MagdalenaObrusníková,Rolf van Boxmeer,Martyna Rajewska
摄影师:斯蒂金·波尔斯特拉(Stijn Poelstra)
借助包括会议厅在内的新内容,Reset建筑重新组织了Geldrop- Mierlo市政厅(艾恩德霍芬旁的荷兰镇)。这个透明的会议中心传达了建筑物的公共性质,并使市民与市政当局互动。在内部,它是访客,议会和公务员聚在一起的建筑群的核心。Geldrop-Mierlo市政厅已经过全面翻新和扩建,设有一个多功能会议中心,其中包括一个会议厅和会议室。此外,还需要对建筑物进行翻新,使其可持续发展并成为合适的工作场所。还要求重置建筑来改善建筑表现力,因为该建筑缺乏公共建筑的外观,并且没有明确传达其作为市政厅的功能。市政厅由两个相连的建筑部分组成;一栋列出的十九世纪别墅和一幢漫不经心的八十年代办公大楼,随意地与之相连。重置建筑使别墅脱颖而出,以强调其历史气息,并为市政厅创建一个清晰的入口。通过这种重新布置,出现了新的空间清晰度,其中别墅和新增加的体积共同形成了公共实体,位于两个办公楼之间的中央位置。这种统一性体现在建筑中。新的扩展以抽象和精致的细节延续了折衷别墅的建筑,它具有对称的顺序和垂直的关节。
新的布置还强调了其功能,位于一楼的会议中心超出了办公室的侧翼。突出的悬臂透明立面清晰地传达了诱人的公共品味。新的明亮会议中心的内部向周围开放,并与绿色景观相连,并享有Geldrop城堡的美丽景色。整个中心具有开放和宽敞的外观,两层楼的会议室和较低,更私密的部分与理事会会议厅相连。 四个立面的柱形连续节奏以及贯穿玻璃立面的全方位光线增强了优雅空间的凝聚力。这种立柱巧妙地将新空间放置在现有办公室机翼外墙之间。从空间上看,它们似乎是承重的,但仅仅是幕墙结构。 轻型上层建筑建在现有的立柱和基础上。重置体系结构提出了一种T形可修复钢结构,具有木地板和钢屋顶。这种清晰的构造方案有助于程序在列网格之间的逻辑嵌入。布线位于立柱的外部,并被立面的立柱围绕。在纵向侧,安装了一条橡木板条立面条,以隐藏与办公室机翼檐槽的连接。橡树也许与外面的树林有一种精神上的联系,但无疑可以为空间带来温暖的氛围,其中还包括淡淡的灰色调。 该项目是可持续改造的最佳实践示例。该建筑为全电气建筑,欧盟能源标签为A +++。
新的体积减少了现有办公室机翼的外墙数量,并使用三层玻璃和完全隔热的屋顶进行了隔热。此外,通过隔离屋顶和墙壁,更换玻璃窗并密封其他缝隙,降低了现有办公室机翼所需的供暖能力。所有这些使所需的加热功率降低了约60%。市政厅由连接到空气-水热泵的低温加热装置加热。附加的VRF系统进一步扩展了加热或冷却建筑物的能力。用于建筑物通风的空气处理单元装有热回收元件。自适应LED照明已被用于进一步减少建筑物的能源消耗,这在很大程度上是由PV面板产生的。 可持续发展不仅仅是节省能源。新结构是在轻巧,可安装的结构中进行的,符合圆形的思维方式。在施工过程中,(拆除)零件会立即重复使用或可供重复使用。该项目对建筑环境中的生物多样性贡献很小。蝙蝠和燕子盒已建在新的山墙末端的北立面上。
幕墙的通用外观,作为建筑群的补充,已被感激地用于清晰地传达公共功能和邀请开放性。然而,幕墙的细节设计不是标准的,该系统已经过完善,以确保通用性也与其环境相匹配。新建筑的设计对折衷别墅中的垂直关节和角柱进行了深远的抽象。 屋顶边缘被镜像为悬臂的底部边缘,是最重要的细节。在别墅里,屋檐十分茂盛,有节节状。在新建筑中,已尽最大努力设计出精致的外观。外立面仅由幕墙框架组成,而屋顶和脚边缘则没有其他线条。屋顶造型和结构(三层玻璃)玻璃的组合显示出优雅的薄纸线条。开放的拐角突出了尖锐的顶部拐角,并显示出与别墅异型檐口的亲和力。幕墙系统在各处都被用作轻量级空间,也用于空间的正式划分。四个立面中柱廊的连续节奏体现了空间的独特性和统一性。在长边上,采用了橡木板条的外墙板条,与现有办公室机翼及其檐槽的结构连接被隐藏起来。木制板条以二楼夹层楼梯的栏杆的声学变体形式出现。
荷兰Geldrop-Mierlo市政厅装修外部实景图
荷兰Geldrop-Mierlo市政厅装修外部实景图
荷兰Geldrop-Mierlo市政厅装修外部实景图
荷兰Geldrop-Mierlo市政厅装修外部实景图
荷兰Geldrop-Mierlo市政厅装修内部实景图
荷兰Geldrop-Mierlo市政厅装修内部实景图
荷兰Geldrop-Mierlo市政厅装修内部实景图
荷兰Geldrop-Mierlo市政厅装修内部实景图
荷兰Geldrop-Mierlo市政厅装修内部实景图
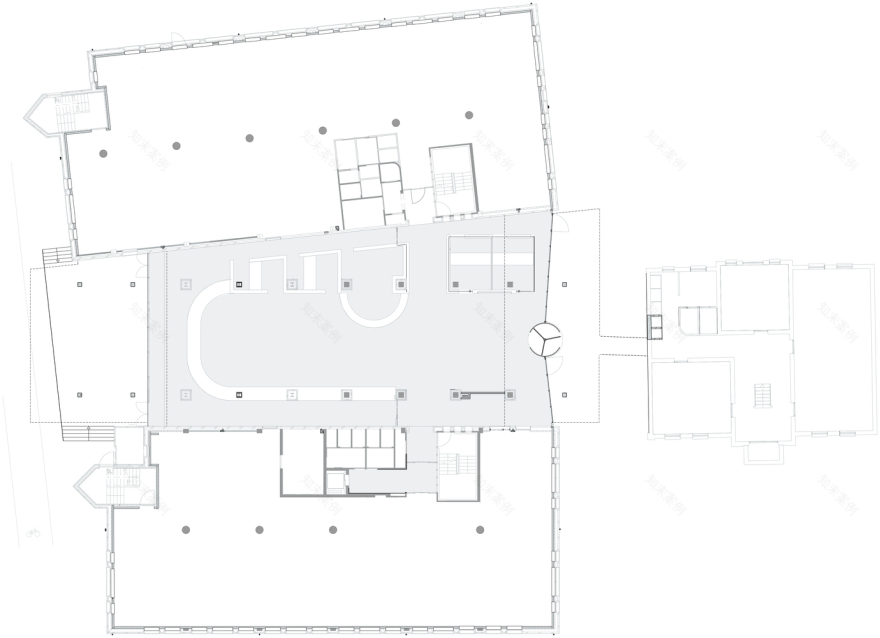
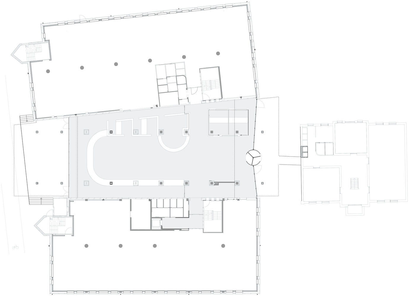
荷兰Geldrop-Mierlo市政厅装修平面图
荷兰Geldrop-Mierlo市政厅装修平面图
荷兰Geldrop-Mierlo市政厅装修平面图
荷兰Geldrop-Mierlo市政厅装修平面图
荷兰Geldrop-Mierlo市政厅装修平面图
荷兰Geldrop-Mierlo市政厅装修剖面图
客服
消息
收藏
下载
最近


















