查看完整案例

收藏

下载
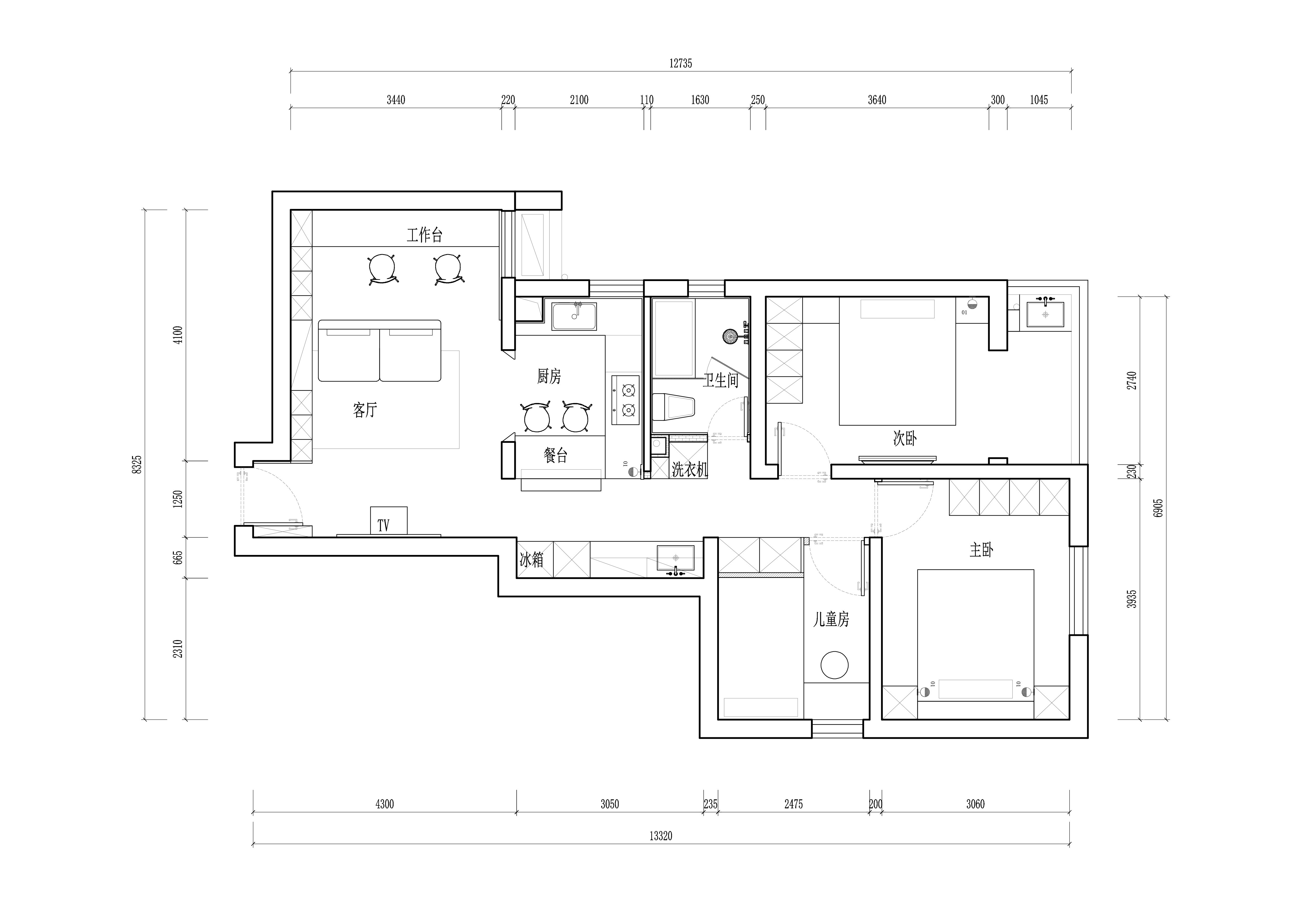
本案是一套非常有借鉴意义的“学区房”装修案例。屋主为了孩子的学习,选购了这套三室两厅的学区房,三代人共同居住,如何在有限的空间里、提升居住品质,并且给孩子营造良好学习氛围,是我们首先考虑的问题。
女屋主是医务工作者,男屋主从事设计行业,两人工作较为忙碌,希望家中有条不紊、清爽好打理。需要保留三间独立卧室以及一个灵活空间兼具书房功能;另外由于从医的工作性质,需要动静分离保证充足休息;考虑到孩子和老人的生活习惯,客厅需要有足够大的活动空间。
设计师利用原始房屋结构,将动静区域划分开来。动区改造基于提升空间利用率及动线舒适度,使客厅、厨房和餐区成为整体空间;静区为三间卧室,主卧(满足夫妻两人居住)次卧(外婆居住)以及一间儿童房。色调以清爽的原木色为主,搭配浅色系家具,点缀红砖增加空间活跃感,在足够多收纳的前提下,保证空间美感。
不足之处
客厅纵深较长,面宽不足,公区昏暗。
缺少餐厅位置,走道狭窄,难以容纳餐桌。
四口人,卫生间无干湿分离,使用较为局限。
户型改造:
公区前端设沙发和茶几,后方设计书房,长桌+小窗让阅读环境更加舒适;
打通厨房墙面,引入光源,公区更明亮,L型橱柜满足屋主需求;
利用厨房与走廊的部分空间布局餐桌,不仅使用方便,还可以打破长走廊的界限。走廊另一侧设计多功能储物空间及干区,增强空间利用率;
拆除卫生间外部墙体,放置洗衣机,打造干湿分离。次卧阳台洗手池设计不仅能清洗衣物,也可以满足基本洗漱需求。
玄关
ENTRANCE
进门玄关处,木质风充满自然温馨之美。墙面洞洞板收纳,方便随手挂书包、购物袋。
下方设计开放式鞋柜,收纳常穿拖鞋;可移动换鞋凳方便老人和小孩使用;上方弱电箱被巧妙隐藏,整洁又美观。
客厅
LIVING ROOM
摒弃传统客厅格局,将沙发居中而置,腾出一面办公空间、一面收纳空间。
利用沙发背后空位,靠墙打造悬浮式长条书桌,满足男屋主的办公需求。
纱帘设计于沙发与书桌之间,起到隔断空间的作用,也兼顾了办公、看电视两种场景对光线的需求。
豆腐块沙发可以灵活组合,满足多种使用情形。
沙发背后是一间开放式书房,可与客厅互通,也可以拉开隐藏起来的布帘,成为私密的阅读区。
原木+白的搭配,经典耐看,在阳光照耀下,散发出由内而外的柔和静。
电视采用吊装悬挂模式,隐藏明线,整洁又美观。
从客厅看玄关,整体多用几何结构诠释,材质变化无限放大”家”的尺度,灯光以及线条高低错落,散发着整齐划一的韵律美感。
全屋无主灯设计视觉上放大空间,给人干净简约的感觉。
舍弃笨重茶几,在沙发旁摆放可移动边几,空间既显大,通透感也很强。
书房
STUDY
木饰面包裹的书房很有质感。一侧柜体隐藏布帘,拉上便是私密的阅读空间。
办公椅自带滚轮,可升降,增加阅读舒适感。
亚克力材质的壁挂书架既美观又实用,给书房的白墙增添了一抹色彩。
自然光线不足时,可以打开造型可爱的蘑菇灯,增加采光的同时让家更有格调。
餐厅
DININGROOM
从书房看餐厨区,通透的空间,温润的木质,颇显质感。
在餐厅和过道上方打造屋檐结构,宛如深夜食堂窗口,就餐氛围感拉满。
走道另一侧设计西厨兼洗漱干区,大大释放中厨以及卫生间的使用压力。
餐桌结合备餐台,墙体通透的设计,增加了视觉开阔性,既是餐桌,又是休闲区,幸福感翻倍。
厨房
KITCHEN
厨房做开放式设计,整体呈U形结构,餐桌的融入也成为厨房的岛台,大大缩短空间流线。
卧室
BEDROOM
主卧空间相对狭长,所以将收纳做在床头和床尾,床头两侧高柜相连做成床靠背,同时也是置物台。
米色床单和棕色抱枕的搭配,简约又不单调。
结合床头衣柜设置阅读灯,增添了一份温暖与安宁,让睡觉更有仪式感。
暖色调的老人房清爽又简洁,白色通顶柜满足收纳需求。
床头灯为老人提供夜间所需光线,让睡眠环境舒适且治愈。
由于宝宝还小,主要与屋主居住,因此儿童房还未布局家具,
目前作为娱乐空间使用,彩旗和棉线灯打造的小帐篷是专属于小朋友的秘密空间。
卫生间
TOILET
浴缸与淋浴区相连,配色选择温柔的浅色系,干区外置,提高利用率。
项目地址:高教新村
项目面积:97㎡
设计施工:熹维设计
客服
消息
收藏
下载
最近






























