查看完整案例

收藏

下载
项目名称:捷克RUSTONKA办公楼
位置:捷克
设计公司:CMC Architects
三角形场地;三个侧面;三块体量,建筑师设计了三座精巧的几何形大楼。广场视野开阔,装点着绿色景观、喷泉与艺术品,可在此感受阴影、光线、晨雾与日落。办公大楼建在原Ruston公司旗下的布拉格股份厂区,现为当地广为人知的Rustonka区。三角形场地位于伏尔塔瓦河右岸,靠近布拉格市中心,附近有Invalidovna住宅区,地铁站和Olympik酒店。几栋简洁的大体量办公楼看似随意地放置在场地上,实际则经过了无数次面积与角度的精心推敲。建筑师不断思考着单个体量的分布与分配,协调建筑、场地间的关系。最终方案中,三栋同等体量的几何形大楼均匀地分布,中间留下公共空间。建筑设计的灵感源于场地原本的工业特征和独特的区位条件。大体量的七层办公楼装备了最先进的设备,打造为工作服务的“机器”。建筑采用黑色和棕色的砖砌外墙,外观工业感十足,细长的高窗装备着独特的百叶和外部遮阳构件。首层购物区包含咖啡店与餐厅,独特的入口顶棚连接着宽敞的大厅。
办公楼间的公共空间设计也同样重要,CMC ARCHITECTS与景观设计师Martin Barry共同合作,生成地形与铺装设计的总体概念。设计采用基本几何形,呈现出不同线条、元素和材料。场地设计顺应建筑,划分出水平和垂直方向的宽阔步道,斜坡和楼梯穿插其中,两座喷泉坐落在中心广场附近。绿化景观通过挡土墙与铺装区相分隔,草地中放置着不规则形状的雕塑长椅。粗放的绿色景观由设计团队和景观建筑师JanaPyšková共同打造,呼应了场地历史。经过讨论,设计团队和投资方决定在办公楼间的广场上放置雕塑家Jiří Příhoda的非凡艺术品”Vista Mars”,该作品曾获得了1997年的Jindřich Chalupecký奖。未来感十足的钢制雕塑是一个旋转的螺旋体,表皮为抛光不锈钢,沿着螺旋进入内部,大屏幕上的火星全景图在眼前逐渐展开。
捷克RUSTONKA办公楼外部实景图
捷克RUSTONKA办公楼外部实景图
捷克RUSTONKA办公楼外部实景图
捷克RUSTONKA办公楼外部实景图
捷克RUSTONKA办公楼外部实景图
捷克RUSTONKA办公楼外部实景图
捷克RUSTONKA办公楼外部实景图
捷克RUSTONKA办公楼外部实景图
捷克RUSTONKA办公楼外部实景图
捷克RUSTONKA办公楼外部实景图
捷克RUSTONKA办公楼外部实景图
捷克RUSTONKA办公楼外部实景图
捷克RUSTONKA办公楼外部实景图
捷克RUSTONKA办公楼外部实景图
捷克RUSTONKA办公楼外部实景图
捷克RUSTONKA办公楼外部实景图
捷克RUSTONKA办公楼外部实景图
捷克RUSTONKA办公楼外部实景图
捷克RUSTONKA办公楼外部实景图
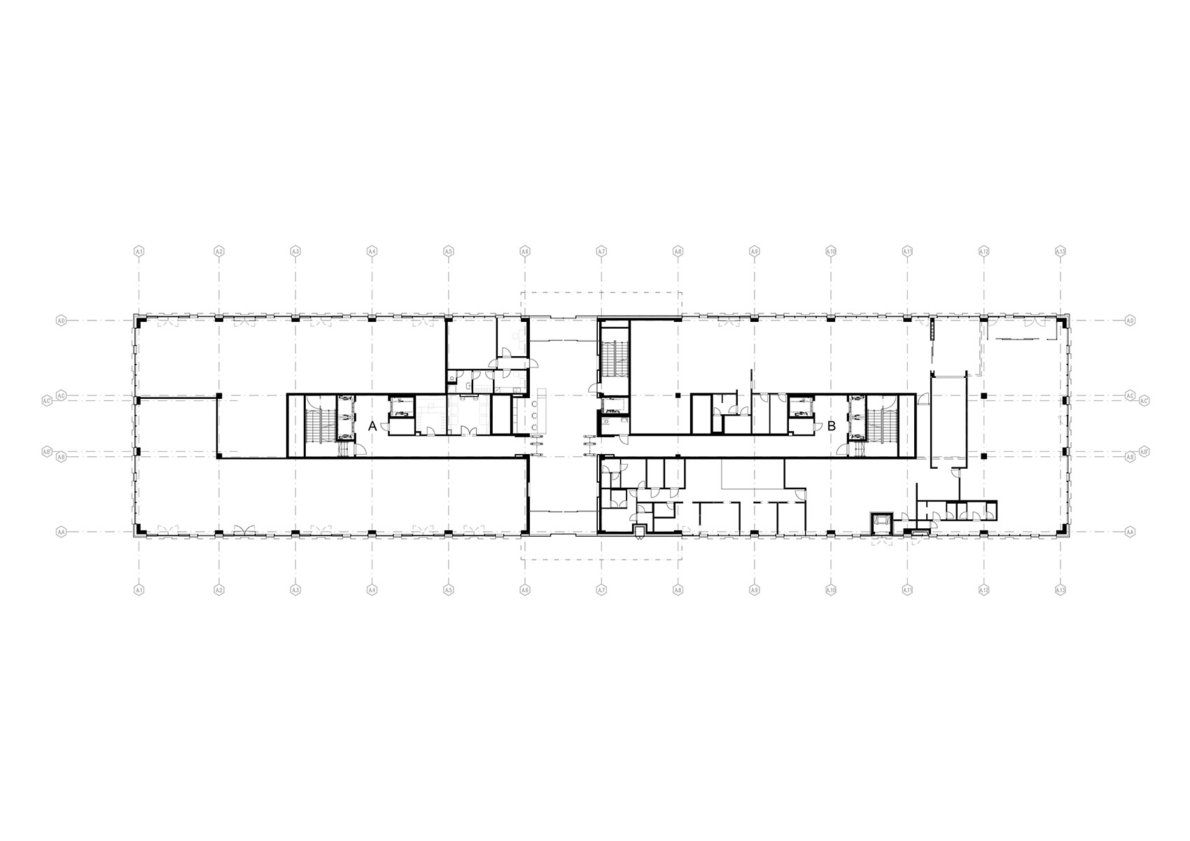
捷克RUSTONKA办公楼平面图
捷克RUSTONKA办公楼平面图
客服
消息
收藏
下载
最近
























