查看完整案例

收藏

下载

翻译
Architect:Fabienne Bulle architecte et associés
Location:Châtillon, France; | ;View Map
Project Year:2019
Category:Secondary Schools;Sports Centres
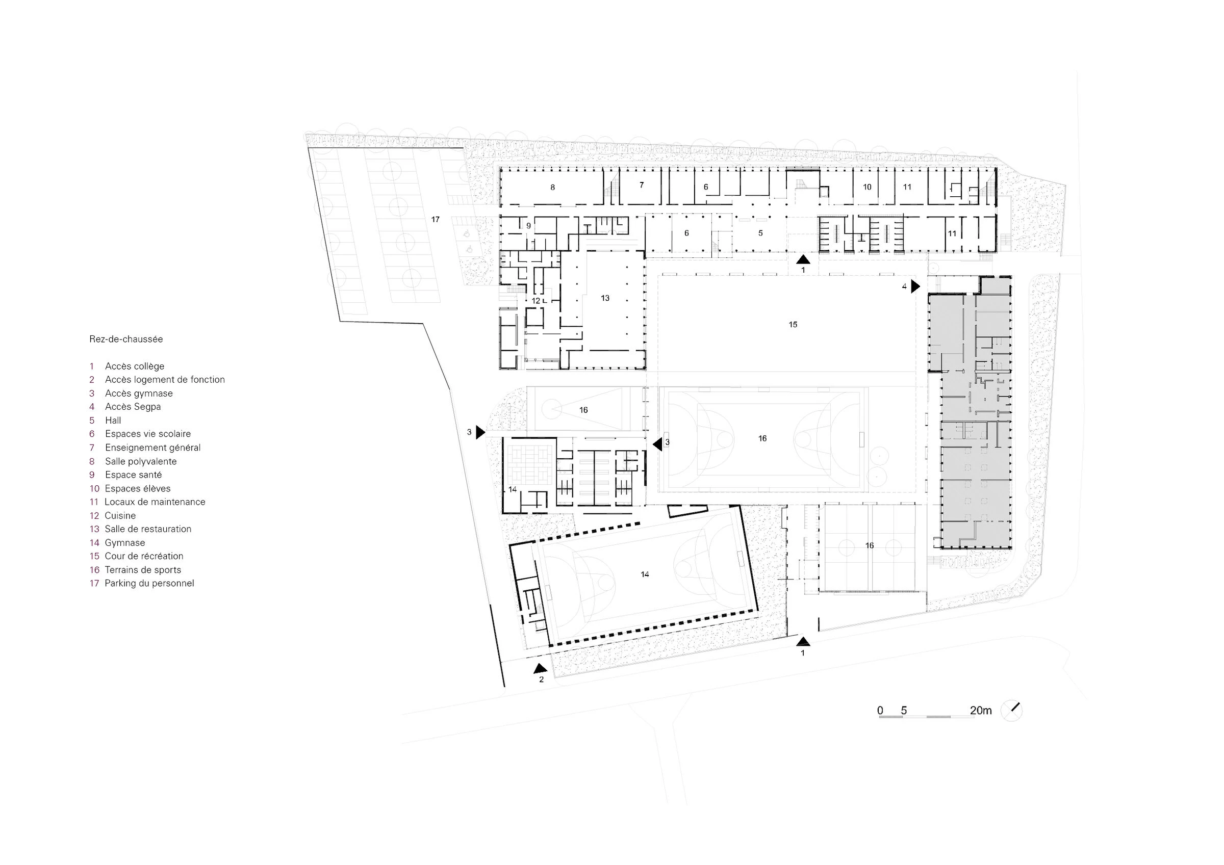
The school was representative f the architecture of 1970s, usual "rods" in the educational institutions of this time.
Fabienne Bulle architecte et associés has tried to create a new identity for it, in a rather classical site composition : predominant position of the secondary school at the back of the site, staged with the presence of two laterals buildings also revamped and by two new structures, a gymnastics room and a gymnasium. A new access is created, a succession of concrete porticos which punctuate the path of students...
▼项目更多图片
客服
消息
收藏
下载
最近














