查看完整案例

收藏

下载
本项目位于河流沿岸的一个杂乱的住宅区内,该河流沿城区内的一条主要道路流淌。项目的西边还有一座很大的建筑。业主的要求是使房屋呈开放的状态,但是要对外界封闭,并将车库建在房屋的内部。因此,设计者首先确定了车库所需的面积,然后明确场地的现状特征,最终制定了设计方案。
▼项目概览,Overall view © Norihito Yamauchi
▼周边环境,Surrounding context © Norihito Yamauchi
设计者对建筑进行了重新布局,以适应东西走向且狭长的地形。墙壁处的开窗被设计为最小以保护业主的隐私。庞大的建筑体量与平屋顶和棚屋对比,后者呈现出自由活泼之感,外墙喷涂的镀铝锌饰面也强调了这一特点。
▼建筑立面,Facade © Norihito Yamauchi
▼立面入口处,Entrance © Norihito Yamauchi
▼入口空间,Entrance space © Norihito Yamauchi
内置车库的设计不仅可以作为停车之用,还能为业主提供一个井井有条的放松之地。室内的装饰统一采用了黑色,柔和的光线透过磨砂玻璃洒在窗台上的小摆件上,光滑的地板上形成的漫反射营造出非比寻常的氛围。当入口处的推拉门打开时,这个空间将合并为一个可延伸的、戏剧性的大厅。
▼内置车库,The built-in garage © Norihito Yamauchi
▼车库也作为放松之地,The garage also serves as a place to relax © Norihito Yamauchi
▼黑色的内饰,Black interior © Norihito Yamauchi
二楼的起居室、餐厅和厨房空间利用过渡设计,连接了东西两侧的景色,顶部倾斜的天花板营造出动态的感觉。
▼起居空间,Living room © Norihito Yamauchi
▼起居与餐厅空间的过渡,Transition between living and dining spaces © Norihito Yamauchi
▼餐厅空间,Dining space © Norihito Yamauchi
▼餐厅空间细节,Details of the dining space © Norihito Yamauchi
▼厨房,Kitchen © Norihito Yamauchi
场地西侧大而长的建筑给街道带来的压迫感,但是在面向场地的方向形成了一个开放空间。为了充分利用这一现状条件,设计者在开放空间上设置了一个阳台和一个视线清晰的大开窗,能够从这里看到房间内部的情况。透过立面开窗能够看到城市景色,并在房间中形成高雅的氛围。
▼摆件,Ornaments © Norihito Yamauchi
与庞大的建筑相邻,设计者通过最大化形式的规划实现了建筑内部的丰富空间。
▼夜览建筑,Night view of the building © Norihito Yamauchi
▼夜览入口,Night view of the entrance © Norihito Yamauchi
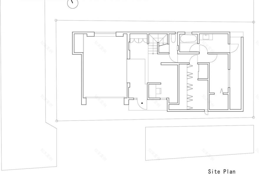
▼项目区位,site plan © FORM/Kouichi Kimura Architects
▼一层平面图,first floor plan © FORM/Kouichi Kimura Architects
▼二层平面图,second floor plan © FORM/Kouichi Kimura Architects
▼剖面图,section © FORM/Kouichi Kimura Architects
客服
消息
收藏
下载
最近

































