查看完整案例

收藏

下载
对于一座建筑来说,其中的水元素是一种既流动但却又充满着魅力的存在,它有着无定形的灵活性和动态变化,又可在不同容器的限制下呈现出稳定且静止的状态,恰如一张白纸,反映出形式背后的自然理念和建筑思维。
01
Pool house
line architects
摩尔多瓦·基希讷乌
位于摩尔多瓦的Pool house以几何形式和光影为设计核心,通过巧妙地布局使自然光渗入内部,诠释极简且永续的理念。住宅的沿街立面通过金属面板的叠加组合形成了具有节奏感的结构变化,将人们的视线从斑驳的外在形象引向室内。
生活区和庭院由通透的玻璃所区隔,在增加空间深度的同时放大了庭院及泳池的景观效果。为了强调几何形式的美感,line architects使用深色的金属材料来塑造结构的肌理,并通过统一的色调建立室内外的有机的序列及空间层次。
02
Blairgowrie House
Eastop Architects
澳大利亚·布莱尔高里
在莫宁顿半岛的海滨小镇内,Eastop Architects利用简洁的材料和当代手法设计了这座私人住宅,灵活的空间层次和细腻的肌理表达使空间得以融入于浓密的沿海植物景观之中,在密集的住宅区内为家庭成员提供私密的、僻静的空间居住体验。
入口通道处以一片矮墙阻隔了外部视线,如同裂缝一般的开口通过欲扬先抑的手法实现了空间的转换。主要的生活区与外侧的花园、泳池并列布局,定制化的家具摒弃了常见的品牌产品,借助更加大胆、简约的形式平衡功能的实用性与审美趣味。
△平面图
03
Câlin
Contekst
法国·普罗旺斯
Câlin是一座位于普罗旺斯葡萄园内的度假别墅,场地周围环绕着绵延的种植区,有着独特的宁静氛围。Contekst拆除了葡萄园与场地之间的原有围墙,通过增加立面的开口来建立内外的流动和互动关系。
除了翻新场地现有的建筑结构外,Contekst还增建了两个分别位于室外和门廊下的泳池,打造充满活力的露台区域。建筑师充分考虑到了不同季节的人群活动和景观效果,以柔和的色调与材料组合赋予了建筑独特的历史感与人文肌理。
△平面图
04
Camera House
Leckie Studio
加拿大·不列颠哥伦比亚省
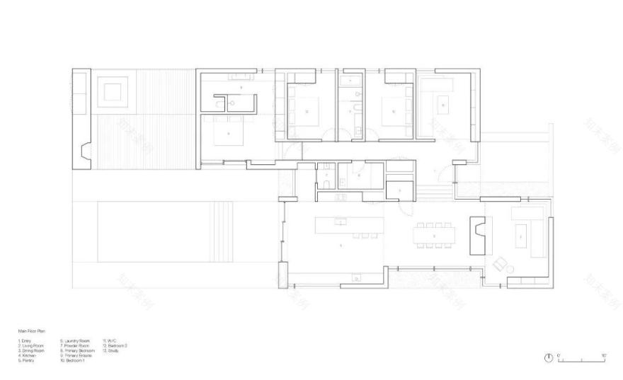
Camera House位于不列颠哥伦比亚省的山区内,建筑中最为瞩目的便是大面积的开口与天窗,正如其项目名所寓意的,Leckie Studio希望呈现一个与相机镜头拥有相同功能的空间,以此捕捉场地四周的森林与山脉的动态景观。
住宅的内部借由一条过渡性的走廊分为两个部分,私密区位于斜坡上方,公共空间则顺应下方地势较低的地块向外延伸,并通过玻璃滑动门与户外露台及泳池相接。Leckie Studio为室内选择了有别于外立面的明亮色调,以此突显主要生活区的活力。
△平面图
客服
消息
收藏
下载
最近

















































































