查看完整案例

收藏

下载
项目名称:美国运河街办公楼
位置:美国
设计公司:Heliotrope Architects
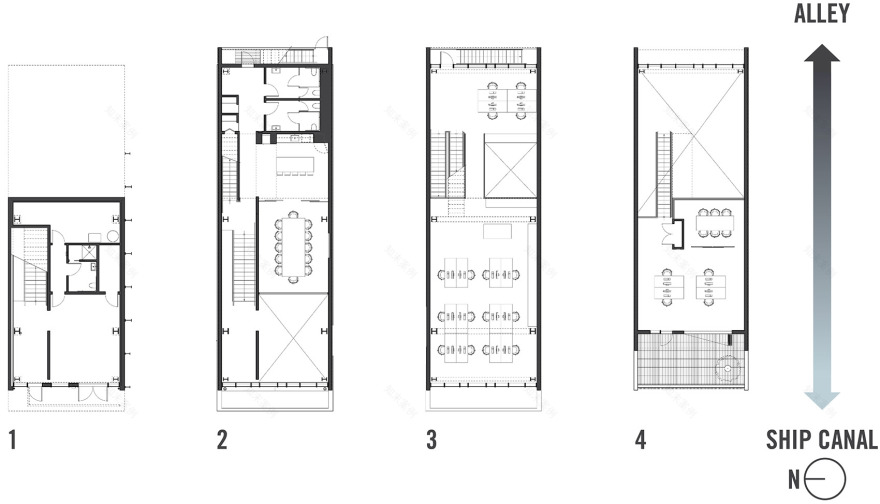
该项目坐落于西雅图弗里蒙特(Fremont)附近的一块宽30英尺,进深100英尺的狭长地块上,与运河沿岸的景观绿化带隔街相望。该狭长的地块原是商业化街区内部一处城市缝隙地带。项目前身是一栋破旧的五十年代住宅,现被改造为一座全新的,具有前瞻性的办公楼。项目总面积为5233平方英尺,容纳了两家创意公司,分别为平面设计公司Turnstyle与品牌创意公司Stoke。建筑底部为混凝土基座,上部为大型钢制框架。后者支撑建筑的金属表皮并暴露在建筑内部。主入口上方设置了悬挑的混凝土雨棚。建筑的前后立面主要为玻璃幕墙。建筑师巧妙地规避了当地土地使用法则的限制,在本只可以建造两层的场地上规划出四个楼层,最大化了建筑的使用面积。利用建筑前方与后巷10英尺的高差,建筑师将首层当作地下室来处理,之上为两个主要楼层,再之上则为符合当地法规的“夹层”,从而实现了该项目中四个楼层的排布。
每个楼层都与场地产生独特的关联。“地下”首层设置了主要出入口,通向对街的运河公园。一层与配套停车场所在的小巷相连,并设有公共会议室。在会议室里,人们可以通过一面无框防火玻璃幕墙看到西侧的运河景观。二层两端均为配有大型欧式木质窗框的玻璃幕墙,东西通透,不仅为室内引入了运河与后巷的景观,还满足了建筑的自然采光。“夹层”则由一个通高的大厅与下方两层连接,并设有露台。在露台上,人们可以尽赏南侧运河的美景。项目的室内设计旨在,通过建筑中央包含楼梯与天窗的通高空间来加强四个楼层之间的视觉与物理联系,并为内部空间提供充足的自然采光。在白天,建筑内的自然采光可以完全代替人工照明。室内设计遵守了严格的极简主义规则,由白色漆面石墙、混凝土地板、定制的梣木橱柜以及定制的黑钢楼梯和走廊组成。
美国运河街办公楼外部实景图
美国运河街办公楼外部实景图
美国运河街办公楼外部实景图
美国运河街办公楼内部实景图
美国运河街办公楼内部实景图
美国运河街办公楼内部实景图
美国运河街办公楼内部实景图
美国运河街办公楼内部实景图
美国运河街办公楼内部实景图
美国运河街办公楼内部实景图
美国运河街办公楼内部实景图
美国运河街办公楼剖面图
美国运河街办公楼平面图
客服
消息
收藏
下载
最近
















