查看完整案例

收藏

下载
项目名称:土耳其Vakko总部大楼和Power媒体中心
位置:土耳其
设计公司:REX
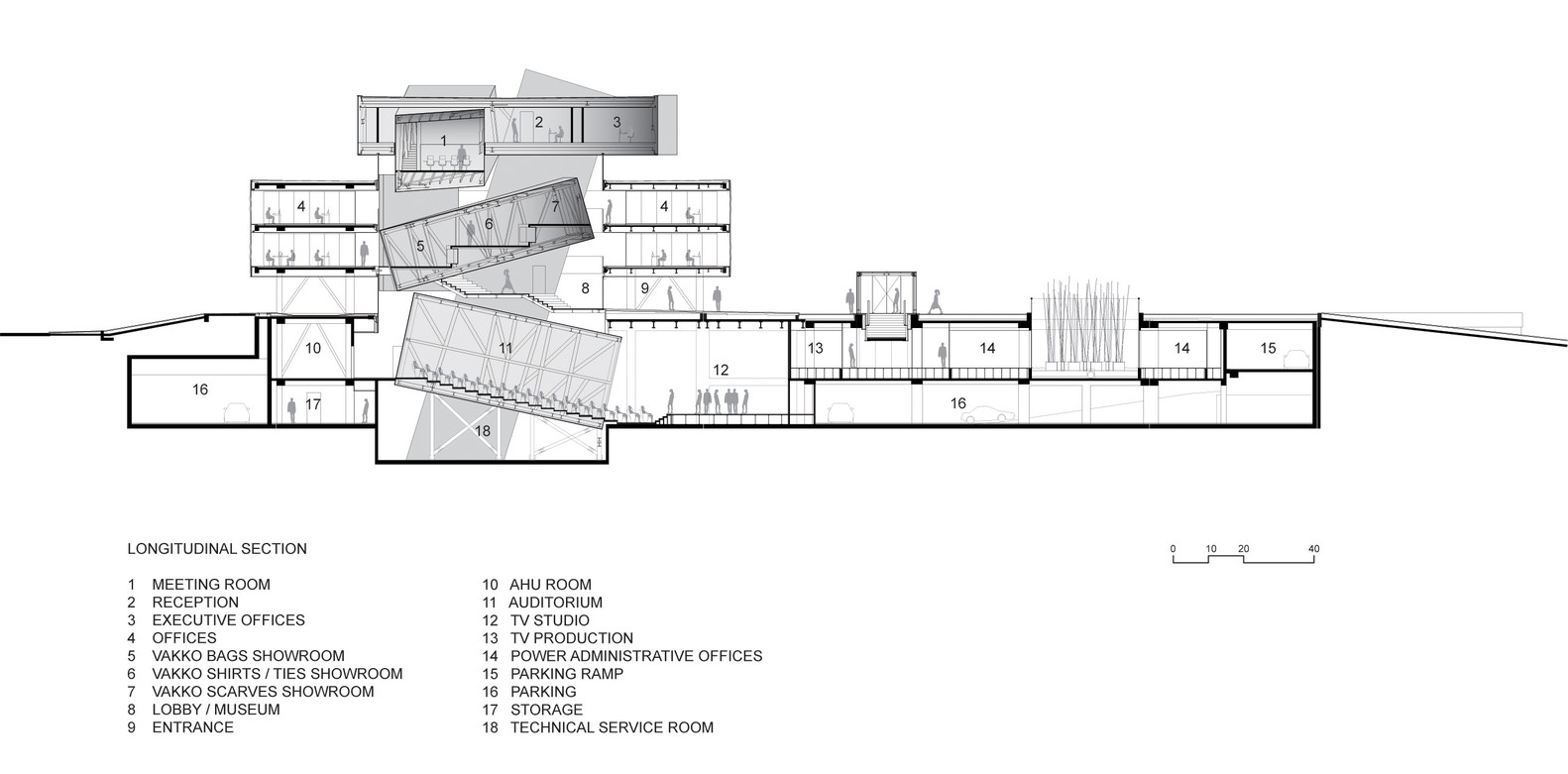
去年还在施工阶段时,我们就向大家展示过REX设计的这个有趣的项目。通过项目可以看到被弃置的原建筑结合全新的复杂钢结构之后,如何升级改造成了Vakko的新总部大楼。现在这个项目完工了,我们可以从Iwan Bann的摄影中探得最终成果,R同时EX也提供了一套完整的图纸和示意图。虽然原建筑的混凝土结构与新设的构件及繁杂的内核部分(也被称为“展示柜”)相融合了,建筑的外表呈现出的依然是一个整体。表面玻璃板上的’X‘构件打破了盒形建筑在外观上的单调,与顶部有着镜样饰面的体块形成了对比。镜样饰面的“展示柜”填充了建筑原先空置的中心区域。从下方的照片和立面图看来,“展示柜”把建筑体块变成了一座雕塑。同时得利于这些体块的排列,“展示柜”内置了不同的功能,例如观众厅,会议室和陈列室。REX再一次呈现了对项目而言新颖的结构方案,并且就像之前在达拉斯(Dallas)的Wyly剧院项目中一样使用了新型材料。作为土耳其时装商店的总部,建筑内设办公室、陈列室、会议室、观众厅,博物馆与食堂。
大楼同时为时装商店的姐妹媒体公司设立了影视工作室,广播制作设备和放映室。原先REX给Annenberg信息科学与科技中心的设计方案被雇主加州理工大学的高级行政部门临时否决了。两个月之后,土耳其杰出时装品牌商店Vakko的CEO和Power 媒体公司找上了REX,计划使用一座未建成的弃置酒店在年底之前设计建造它们的新总部。他们所提出的时间规划一般情况下可以说是极不现实。然而,那未建成的建筑与Annenberg中心环型部分(在该项目中被称为“羊”,对应另外一座“狼”)有刚好一样的平面尺寸,楼层层高和使用概念。
因为把设计给Annenberg中心的施工方案直接应用在了荒废酒店的混凝土构架上,这座街区办公建筑在Vakko/Power公司第一次与REX会晤后的第四天就动工了了。这个采用前方案的改造建筑空置了六周,利用这个时间为项目设计更具特色且贴合施工发难的部分。速度成为了这个设计最关键的要素。Annenberg中心的环形部分采用了脆弱的后张混凝土结构设计,需要在室内依靠稳健的钢构件做支撑。但由于土耳其有无数的致命地震,Vakko/Power公司挑选的原建筑作为这种情况下的副产品,在结构稳定方面夸张地过度设计了。这样一来设计的难题就反转了:Vakko/Power公司独特的室内设计绝对不能与构件结合,这样才能保证原有构架的结构完整性和防水性。
在“展示柜”特别的内部里,配备了观众厅、陈列室,会议室和行政办公室,同时还有所有的洗手间与垂直交通部分。与此同时,出于对声阻尼和光控的需求,Power媒体公司的电视与无线电广播工作室设立在了原构架地下停车场的上层区域。REX在项目开始后只有两周的时间向钢厂提交订单。于是“展示柜”的概念冒了出来:利用一般数量的钢配上普通常见的形状,设计依然能以精彩的方式诞生。项目进行到这,REX和工程师们一同设计了可以用无数种排列方式来组装的钢盒子,在这同时保留了“展示盒”在结构上的自给自足。最后,项目的周围环境,采用规范和使用需求决定了体块堆叠的方式。
土耳其Vakko总部大楼和Power媒体中心外部实景图
土耳其Vakko总部大楼和Power媒体中心外部实景图
土耳其Vakko总部大楼和Power媒体中心外部实景图
土耳其Vakko总部大楼和Power媒体中心外部实景图
土耳其Vakko总部大楼和Power媒体中心外部夜景实景图
土耳其Vakko总部大楼和Power媒体中心外部夜景实景图
土耳其Vakko总部大楼和Power媒体中心外部夜景实景图
土耳其Vakko总部大楼和Power媒体中心外部夜景实景图
土耳其Vakko总部大楼和Power媒体中心内部实景图
土耳其Vakko总部大楼和Power媒体中心内部实景图
土耳其Vakko总部大楼和Power媒体中心内部实景图
土耳其Vakko总部大楼和Power媒体中心内部实景图
土耳其Vakko总部大楼和Power媒体中心内部实景图
土耳其Vakko总部大楼和Power媒体中心内部实景图
土耳其Vakko总部大楼和Power媒体中心内部实景图
土耳其Vakko总部大楼和Power媒体中心内部实景图
土耳其Vakko总部大楼和Power媒体中心内部实景图
土耳其Vakko总部大楼和Power媒体中心内部实景图
土耳其Vakko总部大楼和Power媒体中心内部实景图
土耳其Vakko总部大楼和Power媒体中心内部实景图
土耳其Vakko总部大楼和Power媒体中心内部实景图
土耳其Vakko总部大楼和Power媒体中心内部实景图
土耳其Vakko总部大楼和Power媒体中心内部实景图
土耳其Vakko总部大楼和Power媒体中心内部实景图
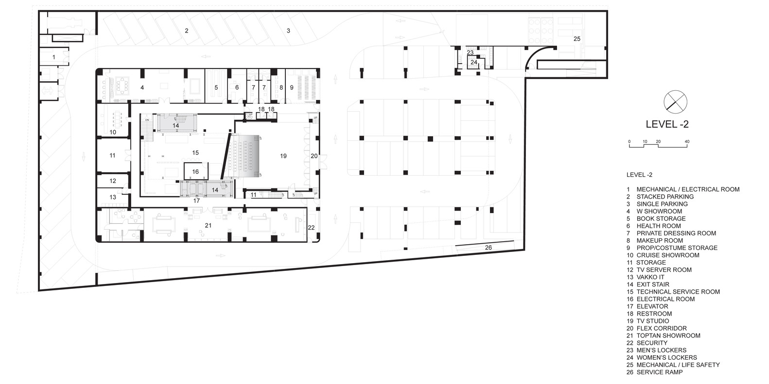
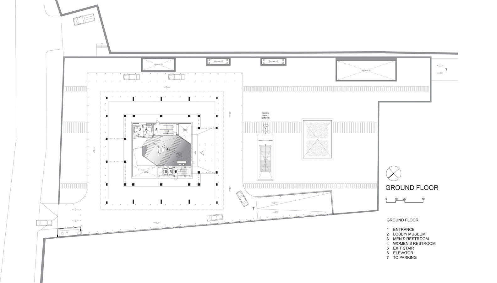
土耳其Vakko总部大楼和Power媒体中心平面图
土耳其Vakko总部大楼和Power媒体中心平面图
土耳其Vakko总部大楼和Power媒体中心平面图
土耳其Vakko总部大楼和Power媒体中心平面图
土耳其Vakko总部大楼和Power媒体中心平面图
土耳其Vakko总部大楼和Power媒体中心平面图
土耳其Vakko总部大楼和Power媒体中心平面图
土耳其Vakko总部大楼和Power媒体中心剖面图
土耳其Vakko总部大楼和Power媒体中心立面图
土耳其Vakko总部大楼和Power媒体中心立面图
土耳其Vakko总部大楼和Power媒体中心立面图
土耳其Vakko总部大楼和Power媒体中心立面图
土耳其Vakko总部大楼和Power媒体中心立面图
土耳其Vakko总部大楼和Power媒体中心立面图
客服
消息
收藏
下载
最近









































