查看完整案例

收藏

下载
项目名称:意大利色彩建筑学城
位置:意大利
设计公司:HOFLAB、HOFPRO
摄影师:Dario Diarena
这个新的大楼是Perugia省统一建筑机构,建筑安全培训中心与建筑基金会的总部,其位于在宏观尺度上为植物与购物结构、在微观尺度上呈现为分离式居所的一个十分混杂的半附带式城市环境之中,并在类型与外观两方面上充当着连接元素。项目旨在树立好的典范,其身份建立在环境可持续动机的基础上。每一个激发其灵感的原则,虽然彼此不同,但都朝向同样的目标,并以这种概念为中心。首要原则的目标是通过在人造区域内重建一处自然栖息地来恢复“绿色”;第二个原则的目标是通过利用高出地面的建筑来获取土地,为绿坡提供空间;第三个原则的目的是保证有一个舒适健康的室内气候,这点通过提供最大化曝光的花园系统来实现,这同时保证了较高的环境品质;第四个原则旨在推广资源的充分利用,要处理好这一点,首先要规划好类型特征与空间外形,其次是通过技术构件:金属遮阳网、小型风力桨、集热式太阳能以及光伏系统,它们彼此作用不同但是能够互相补充,使得能源的理性使用成为可能。
赋予了该项目灵感的意图与目标,表达了通过自身克服过度城市化的愿望,它们配合该建筑在生物气候上的高性能,主张建筑与环境之间的良好调和。就其分布而言,从外面看时建筑之间紧凑而复杂,其内部则被组织为六个楼层,有两个体块作为垂直沟通的连接。地下室可以从汽车坡道、住宅停车场或技术区域进入。半地下室为训练活动预留出空间。而被倾斜草坪覆盖着的G层则除了垂直连接单元以外都被留空,其中也包括主入口。一层为教育活动、阅览室以及会议厅、一间餐馆、档案及储存室、第二办公室还有会谈室提供空间,屋顶则是一个科技教育园。该建筑有意表现出其优秀的特别之处,在建筑的艺术表达上进行文学引用,从意大利最优秀的作品中进行提取与引用,并在室内反复出现,以一种生动的墙体装饰的形式呈现出来。
意大利色彩建筑学城外部实景图
意大利色彩建筑学城外部实景图
意大利色彩建筑学城外部实景图
意大利色彩建筑学城外部实景图
意大利色彩建筑学城外部实景图
意大利色彩建筑学城外部实景图
意大利色彩建筑学城外部实景图
意大利色彩建筑学城外部实景图
意大利色彩建筑学城外部实景图
意大利色彩建筑学城外部实景图
意大利色彩建筑学城外部实景图
意大利色彩建筑学城内部实景图
意大利色彩建筑学城内部实景图
意大利色彩建筑学城内部实景图
意大利色彩建筑学城内部实景图
意大利色彩建筑学城内部实景图
意大利色彩建筑学城内部实景图
意大利色彩建筑学城内部实景图
意大利色彩建筑学城内部实景图
意大利色彩建筑学城内部实景图
意大利色彩建筑学城平面图
意大利色彩建筑学城平面图
意大利色彩建筑学城平面图
意大利色彩建筑学城平面图
意大利色彩建筑学城平面图
意大利色彩建筑学城平面图
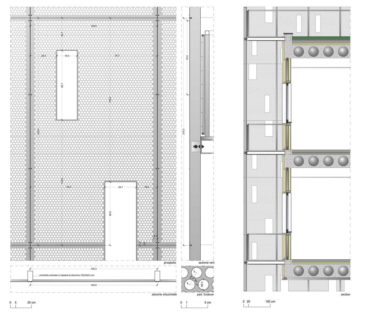
意大利色彩建筑学城剖面图
意大利色彩建筑学城剖面图
意大利色彩建筑学城剖面图
意大利色彩建筑学城剖面图
意大利色彩建筑学城剖面图
意大利色彩建筑学城剖面图
意大利色彩建筑学城剖面图
意大利色彩建筑学城剖面图
客服
消息
收藏
下载
最近





































