查看完整案例

收藏

下载

翻译
Architect:Neogenesis + Studi0261
Location:Surat, Gujarat, India; | ;View Map
Project Year:2023
Category:Universities
NURSING COLLEGE ASHAKTASHRAM, designed by Neogenesis+Studi0261, is located in the prevailing campus of the Asakta Ashram Trust in Surat. Intended as an extension to the existing building, the nursing college has been envisioned to serve as an active educational institute contributing to the growth of competent nursing professionals.
The layout evolved, bearing in mind various aspects, to ensure it meets the requirements of students and staff, while also providing a conducive environment for learning and collaboration.
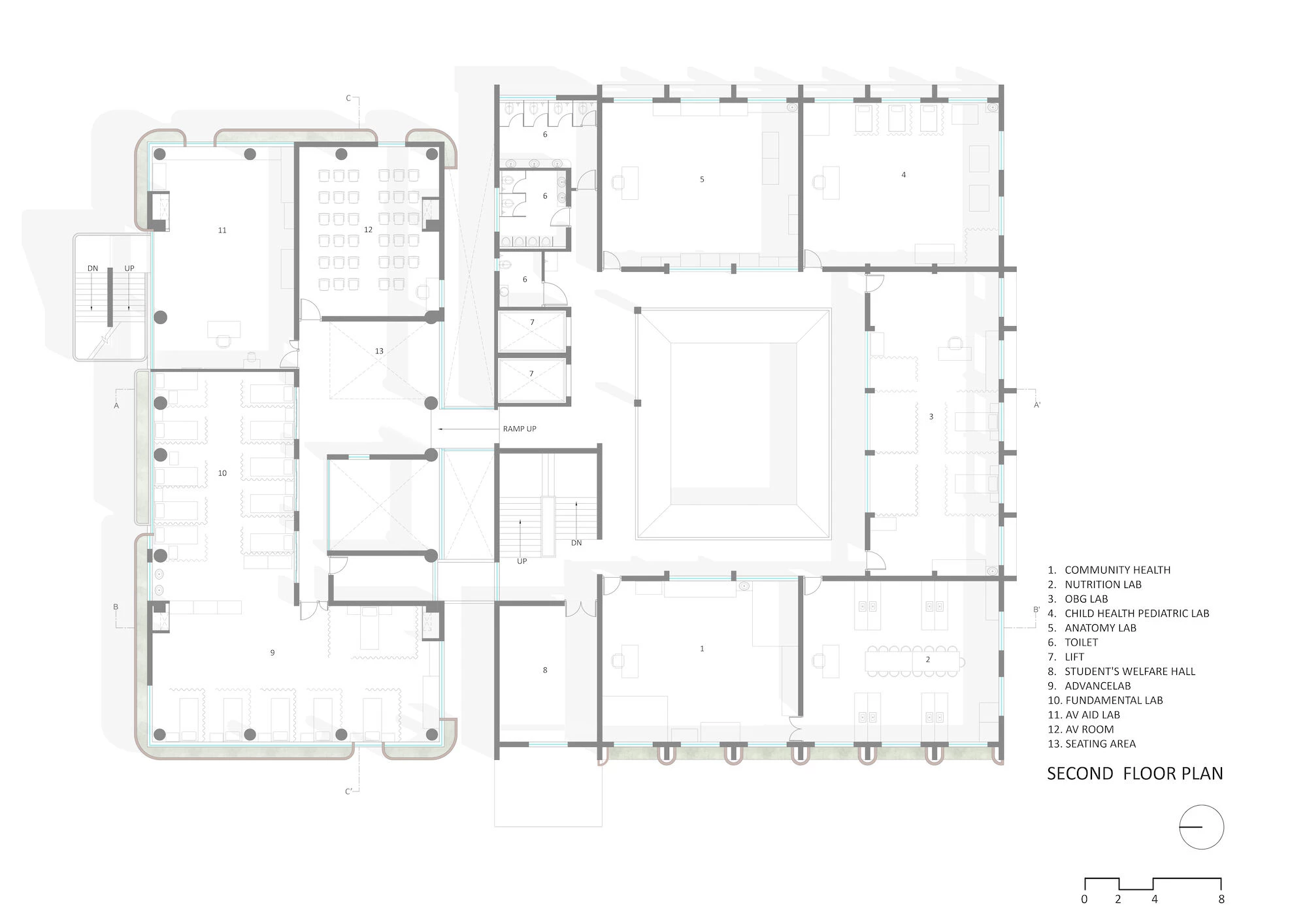
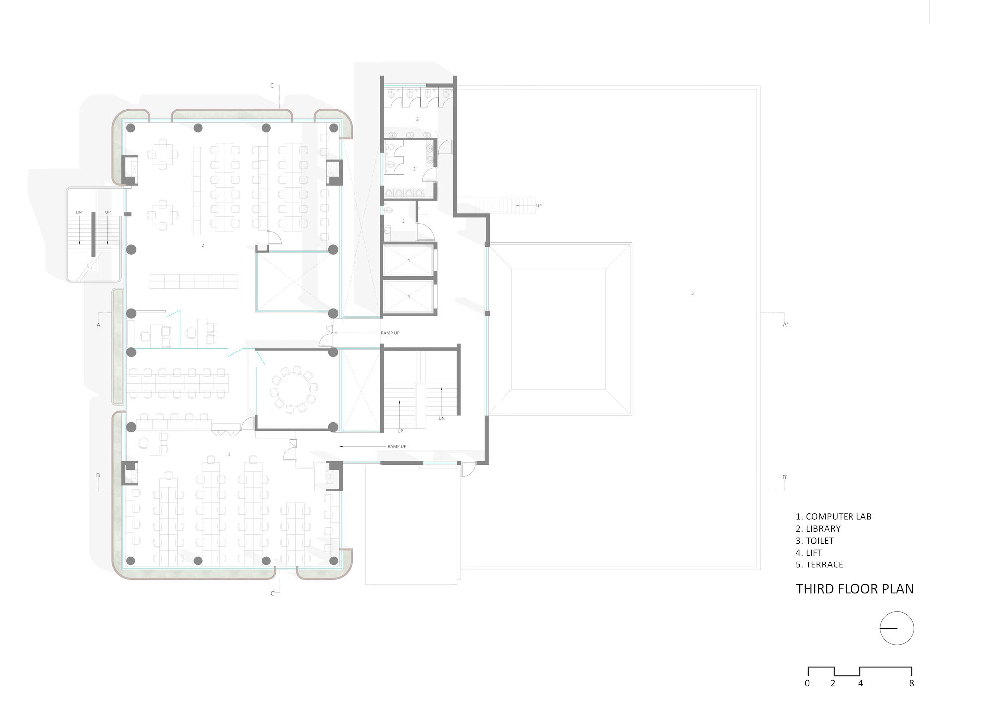
The ground floor houses an auditorium cum a multifunctional hall that meets the unique needs for different kinds of gatherings. It is accessible from both, inside and outside the main building and hence does not disturb the regular working of the college. Tiered seating arrangement has been considered for better visibility with adequate space for comfort and accessibility. The first floor hosts all the administrative and teaching staff with a double heighted reception area. The second floor has classrooms and advanced lab, with the passageway overlooking the first-floor reception area on one side and a double heighted landscape area on the other side. The library and the computer lab on the third floor have an open reading area with a skylight above. All the floors are connected to the old existing building through ramps and passages. These manifold connections ensure adequate circulation space to accommodate the flow of the students and staff throughout and in between the two buildings.
The material palette consists of exposed concrete, glass and brick jali on the exteriors. The interwoven brick lattice gives a contemporary appeal forming a screen, allowing light, view and air to pass through while providing privacy and security. Climatically, it works wonders; it reduces the heat gain from the west face of the building while the glazing on the north face has been kept exposed to grasp the mild sunlight while illuminating the interiors. Planter spaces have been added to break the monotony of the façade and generate a sense of lightness while creating an expression to make the building come alive as the green rug partly cases the built. The overall arrangement makes an attempt to enhance the experience, make a conducive environment and harmoniously blend with the existing building.
In crafting the interior material palette, the designers have curated a blend of sophistication and functionality. Cera grey flooring has been selected for the common areas in the newly built structure whereas the labs on the second-floor exhibits kota flooring. Accent materials such as teak wood and grey laminate infuse character and encapsulates the designers’ commitment to fostering an environment where the space resonates warmth. Careful attention has been paid to judicious use of materials for longevity and minimal maintenance.
The landscaped outdoors, planter spaces, interior finishes, artwork; all cohesively create a welcoming and an inspiring atmosphere. The Artwork on the common wall in between the buildings augments colour to a so called grey and mundane profession. To sum it up, the institute combines practical functionality with artistic expression, making it a versatile and timeless architectural piece.
Architects: NEOGENESIS+STUDI0261
Structural engineer: MKS Consultants
Contractor: Riva Contructions & Consultancy
HVAC Consultant: Sagar Refrigeration
Design and Execution: Ar. Juby Thomas, Ar. Nilufer Contractor, Ar. Manthan Yadav
Text Credits: Ar. Nilufer Contractor
Photographer: Ishita Sitwala / The Fishy Project
Site Area (m2/ ft2): 21,104 Sqft
Gross Built Area (m2/ ft2): 41,883 Sqft
Window Vendor: Shreeji Enterprise- Ashwin Bhai
Furniture: Jashraj Suthar
Flooring: Hari Bhai Yadav
Exposed Brick: Radha krishna Brick
Artwork: Yatin Bhandari (Local Vendor)
▼项目更多图片
客服
消息
收藏
下载
最近

































