查看完整案例

收藏

下载

翻译
Architect:Taller de Arquitectura de Bogotá
Location:Bogotá, Bogota, Colombia; | ;View Map
Category:Universities
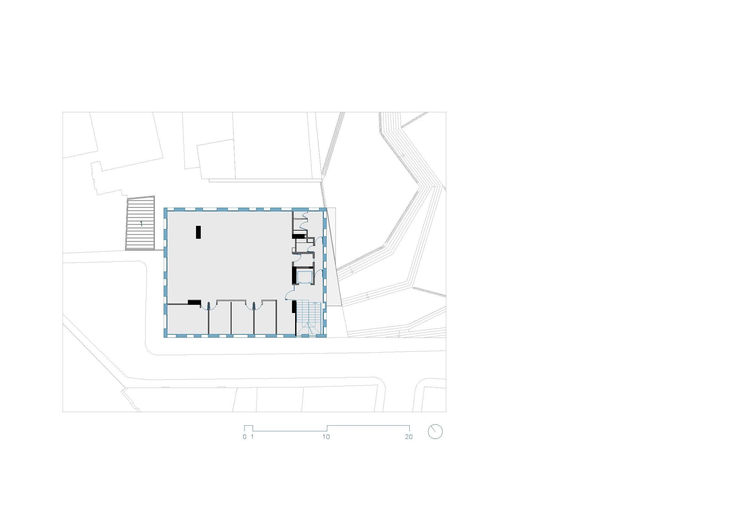
PUBLIC" SPACE AND INTEGRATED CARE CENTER
UNIVERSITY OF LOS ANDES
More than a building, this project is an urban planning construction operation; and, although it started initially as the development of an integrated attention building for the University, it soon became an operation of articulation of public space, urban layout and integration with the La Candelaria neighborhood. This was possible thanks to a joint operation of "public" space and three buildings (the Integrated Care Center - CAI, the entrance gate to the eastern sector and the coffee concession), where the main objective was that the public space would filter between the buildings weaving a new set.
The open collective space was formulated as an articulator of the existing urban layout, but by characterizing it as a "public" meeting space, and by taking advantage of the existing configuration of the buildings, the idea of a parament street was blurred, and a stepped plaza appeared that matches the different situations of access and urban layout of a place with a prominent sloping topography.
In this way, ramps, stairs and flat sub-spaces are arranged to promote formal and informal meetings and gatherings. This new cohesive space is the product of a design that evokes the old space in front of the architecture library within the University, but in this case, since it has no access controls, it becomes a space that, although it is private in ownership, is public in vocation (for this reason, in this text the word "public" is used in quotation marks).
Brick pavers are used as the predominant material, creating a dominant monochrome, which is extremely versatile and allows for the resolution of steps, inclined and flat areas. Thus, the entire unbuilt complex is consolidated with a landscaping operation, where the flow is always continuous through the Yarumos that produce a surplus and the gardens that appear between the cobblestone and the buildings. Likewise, the closed dividing wall of a neighboring building is enhanced and strengthened with a vertical garden, which consolidates the landscape of the complex.
With respect to the built complex, a base material is used to harmonize the diversity of scales and typologies (Access vs. CAI vs. Café). Corten steel - rusted metal - allows the development of diverse typologies of buildings, which through the materiality preserve a common thread that allows everything to be read as a whole. For the Integrated Care Center, an almost cubic prismatic volume was proposed, which is perforated on the façade, creating a rhythmic and variable full-empty relationship, by alternating earth-colored architectural concrete walls (trying to imitate the stepped wall or earthen walls), and floor-to-ceiling windows.
Of course the buildings and the "public" space are designed with parameters of sustainability and stability of the time.
▼项目更多图片
客服
消息
收藏
下载
最近




















