查看完整案例

收藏

下载
项目名称:上海江森自控亚太总部大楼
位置:上海
设计公司:Gensler
江森自控,致力于改善人们的生活、工作、学习和娱乐环境。从优化建筑的性能,到提升环境的安全性与舒适性,积极推动和建筑相关的重要成果。Gensler受邀为其设计位于上海的亚太地区新总部大楼。这座总建筑面积约4. 4万平方米的建筑位于长宁区虹桥临空经济园区,坐落在苏州河畔。大楼应用了江森自控先进的智慧建筑产品和技术,包括暖通空调、楼宇自控安防和消防、等整体解决方案,诠释了未来智能楼宇、城市和社区。江森自控和Gensler为该项目设定了高标准的可持续性目标,这是中国首座获得三项可持续认证的建筑,包括美国绿色建筑协会LEED(能源与环境设计先锋奖) 新建建筑铂金级认证、中国绿色建筑设计标识三星级认证和IFC-世界银行EDGE(卓越高能效设计)认证。与当地市场标准相比,这座建筑预计节能可达到44%, 节水42%和节约材料中的物化能源达到21%。实现健康设计也是项目的重要目标之一,设计专注于建筑健康设计的三个方面:采光和视野、户外空间的可达性和社交空间的打造。包含立面设计在内,以上三个方面均对该建筑的造型产生着重要影响。
项目坐落于苏州河畔,曾经污染的河道在政府治理下已经恢复了生机,加之重塑两岸的自然景观,这里已经成为了公众的休闲之所。Gensler的设计团队将建筑物的整个北翼抬起,规划了一条绿道,将项目地块与全新的公共河滨公园相连,从而将城市生活与自然联系起来。这种设计解决方案便于人们进入公园,为员工和公众提供延伸的室外环境,在上海这样高密集的城市,为人们提供极为珍贵的与自然的互动机会。以18米的结构跨度将建筑物的北翼抬高出地面6米,虽然一定程度的增加了项目的投资,但江森自控和Gensler均认为这一举措将对邻里产生积极影响。社区连通性,特别是与自然水系和景观的连通性,是未来的城市环境在寻求提高生活质量和维持人们移动性所必须考虑的一个方面。总部建筑的场地非常狭长,由于毗邻虹桥机场,高度也被限制在了24米之内。这向设计团队提出了一个艰巨的挑战:如何在线性的场地上创建出社区感,同时优化楼面效率。解决方案是建造两个长矩形建筑,以最大化采光和视野。狭长的楼板平面有助于引入自然采光。窗墙比被设定为47%的玻璃与53%的不透明的隔热钢板系统。这两个独立的建筑物以相反的方向弯曲,然后连接在一起,在中间形成一个大中庭,作为中央社区聚集空间。
开放动线环绕中庭,各层楼都通过楼梯相连,为跨社区连接、互动和身体活动提供平台。我们的研究表明,在不同的部门和业务线之间进行充分的对话,将提高生产力和鼓励创新。这也与江森自控不断创新的企业文化相契合。不管是在地面层还是在楼上,整个建筑内充分布局可用可达的室外空间,给予员工更多选择空间,比如专注工作区域、协作区域,或者单纯地换一个环境;每层楼都设有露台,人们可以在户外工作或休息。此外,一个大型的两层室外屋顶平台可以进行非正式会谈或正式的小组会议。在地面层,用餐区外的户外食堂庭院连接着毗邻苏州河的绿地。这个户外休闲区设有水景,与露台阳台在视觉上相连。分布的、可用和灵活的户外空间形成的网络,是提高生产力和幸福感的催化剂。我们在江森自控亚太总部大楼的设计中赋予了对未来建筑的愿景:重新融入城市肌理,强调社群交往,重新引入自然光线等。为实现这些理念,势必需要额外的资本投入,以及公共和私人利益相关者的进取的思维方式。作为建筑师和设计师,我们坚信,将通过设计的力量,对城市和社会的未来产生积极影响。
上海江森自控亚太总部大楼外部实景图
上海江森自控亚太总部大楼外部实景图
上海江森自控亚太总部大楼外部实景图
上海江森自控亚太总部大楼外部实景图
上海江森自控亚太总部大楼外部实景图
上海江森自控亚太总部大楼外部实景图
上海江森自控亚太总部大楼外部实景图
上海江森自控亚太总部大楼外部实景图
上海江森自控亚太总部大楼外部实景图
上海江森自控亚太总部大楼外部实景图
上海江森自控亚太总部大楼外部实景图
上海江森自控亚太总部大楼外部实景图
上海江森自控亚太总部大楼外部实景图
上海江森自控亚太总部大楼外部夜景实景图
上海江森自控亚太总部大楼外部夜景实景图
上海江森自控亚太总部大楼外部夜景实景图
上海江森自控亚太总部大楼外部夜景实景图
上海江森自控亚太总部大楼外部夜景实景图
上海江森自控亚太总部大楼外部夜景实景图
上海江森自控亚太总部大楼外部夜景实景图
上海江森自控亚太总部大楼外部夜景实景图
上海江森自控亚太总部大楼外部夜景实景图
上海江森自控亚太总部大楼外部夜景实景图
上海江森自控亚太总部大楼内部实景图
上海江森自控亚太总部大楼内部实景图
上海江森自控亚太总部大楼内部实景图
上海江森自控亚太总部大楼内部实景图
上海江森自控亚太总部大楼内部实景图
上海江森自控亚太总部大楼内部实景图
上海江森自控亚太总部大楼内部实景图
上海江森自控亚太总部大楼内部实景图
上海江森自控亚太总部大楼内部实景图
上海江森自控亚太总部大楼内部实景图
上海江森自控亚太总部大楼内部实景图
上海江森自控亚太总部大楼内部实景图
上海江森自控亚太总部大楼内部实景图
上海江森自控亚太总部大楼内部实景图
上海江森自控亚太总部大楼内部实景图
上海江森自控亚太总部大楼内部实景图
上海江森自控亚太总部大楼内部实景图
上海江森自控亚太总部大楼内部实景图
上海江森自控亚太总部大楼内部实景图
上海江森自控亚太总部大楼内部实景图
上海江森自控亚太总部大楼内部实景图
上海江森自控亚太总部大楼内部实景图
上海江森自控亚太总部大楼内部实景图
上海江森自控亚太总部大楼内部实景图
上海江森自控亚太总部大楼内部实景图
上海江森自控亚太总部大楼内部实景图
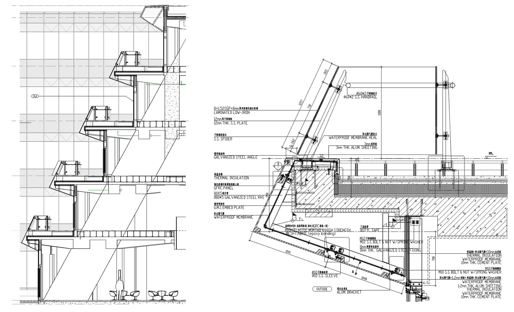
上海江森自控亚太总部大楼剖面图
客服
消息
收藏
下载
最近





















































