查看完整案例

收藏

下载
项目名称:伊朗VIRA办公楼
位置:伊朗
设计团队:萨哈德·莫哈德斯、哈米德·拉乌夫扎德、帕里萨·索尔塔尼、阿里·塔希贝吉、哈米德·巴赫蒂亚里、帕里萨·普亚法尔德、伊利亚·萨莱克、萨马内·卡其
VIRA办公楼一直位于尤瑟法巴德街,其中一个中心区德黑兰伊朗。该项目总面积为10,000平方米,包括:8层高层办公用房,地下一层由3个独立的商业单元和6个地下停车层组成。从规模上看,该项目在城市规模上非常重要。项目的设计始于客户提出的一个关键问题:我们如何在不知道楼层数的情况下选择立面设计方法,楼层数可以在5到10层之间变化?此外,市政立面委员会也必须批准立面设计。为了达到这些目的,我们决定设计一个从城市街区及其相关绿地的组合中衍生出来的基本模块,并随后在水平和垂直方向上对其进行倍增,以实现一个可以在客户要求的考虑下在不同结构中实施的组合。此外,在项目附近有各种规模的建筑,从材料的角度来看,这些建筑通常质地坚硬。因此,我们的第二个挑战是,一方面要从城市的角度来创造一个刚性的立面,另一方面要使外墙的透明度最大化,以利于内部。为了实现这一点,立面的第二层表皮被设计为预制垂直铝制百叶窗的组合,这些百叶窗连接到其后的窗帘上,以节省能源,同时满足内部空间的需求。此外,卢浮宫与阳台和绿地的结合,以及办公楼层的光影游戏,将为用户提供视觉愉悦的体验。
伊朗VIRA办公楼外部实景图
伊朗VIRA办公楼外部实景图
伊朗VIRA办公楼外部夜景实景图
伊朗VIRA办公楼内部实景图
伊朗VIRA办公楼内部实景图
伊朗VIRA办公楼内部实景图
伊朗VIRA办公楼内部实景图
伊朗VIRA办公楼立面图
伊朗VIRA办公楼立面图
伊朗VIRA办公楼剖面图
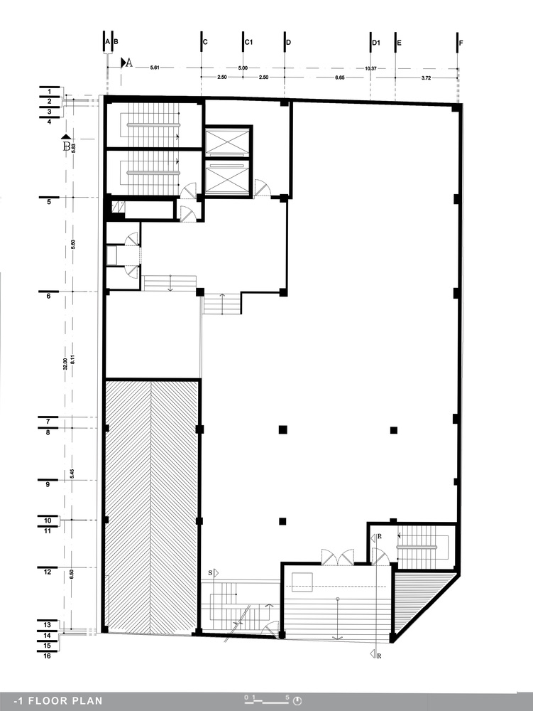
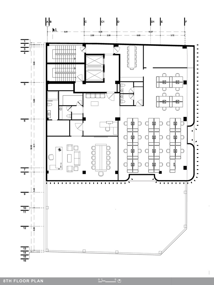
伊朗VIRA办公楼平面图
伊朗VIRA办公楼平面图
伊朗VIRA办公楼平面图
伊朗VIRA办公楼平面图
客服
消息
收藏
下载
最近

















