查看完整案例

收藏

下载
项目名称:泰国1.6办公建筑
位置:泰国
建筑师:ASWA
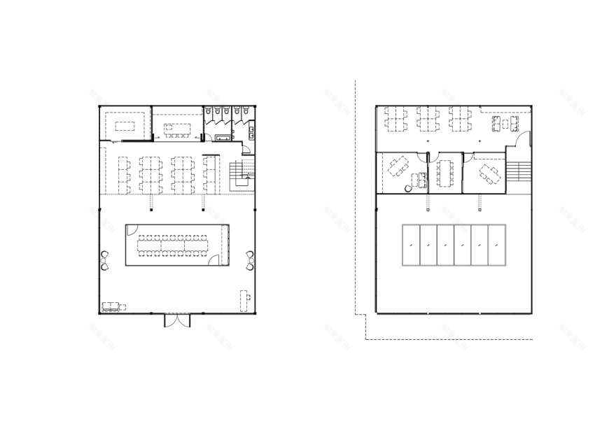
一个不透明的旧仓库由ASWA(建筑工作室-Ahoiic)转换为Prompong区的开发人员办公室的波纹玻璃幕墙ASWA的计划包括一个和一个1.6层开发夹层楼,新办公室带有波纹玻璃幕墙,可自然采光。外部和内部的模糊效果。半透明的波纹玻璃在夜间营造出发光的外观。波纹玻璃面板沿着立面延伸,白天充斥着自然光,夜晚充斥着发光光。该建筑总面积为450平方米。并按主入口顺序对节目进行划分,所有访客在打开波纹玻璃门的同时,一眼就能看到高座位的20座位会议室的长玻璃盒。主要工作空间位于二楼的后部,该楼可容纳18个座位,并在大楼后部设有储藏室。在夹层中有MD室,一个小会议室和可扩展的12个座位,内部装饰采用木地板,玻璃和石膏颜色以及自然采光的材料,营造出一种低调的心情,但由于波纹玻璃的模糊效果,使办公室前部大型停车场的私密性受到关注。同时,整日保持谦虚,而1.6办公厅旨在通过其发光的外墙来照亮其周围环境。
泰国1.6办公建筑外部实景图
泰国1.6办公建筑外部实景图
泰国1.6办公建筑外部实景图
泰国1.6办公建筑外部实景图
泰国1.6办公建筑外部实景图
泰国1.6办公建筑外部实景图
泰国1.6办公建筑外部实景图
泰国1.6办公建筑外部实景图
泰国1.6办公建筑外部实景图
泰国1.6办公建筑外部夜景实景图
泰国1.6办公建筑外部夜景实景图
泰国1.6办公建筑内部实景图
泰国1.6办公建筑内部实景图
泰国1.6办公建筑内部实景图
泰国1.6办公建筑内部实景图
泰国1.6办公建筑内部实景图
泰国1.6办公建筑内部实景图
泰国1.6办公建筑内部实景图
泰国1.6办公建筑内部实景图
泰国1.6办公建筑内部实景图
泰国1.6办公建筑内部实景图
泰国1.6办公建筑内部实景图
泰国1.6办公建筑内部实景图
泰国1.6办公建筑内部实景图
泰国1.6办公建筑内部实景图
泰国1.6办公建筑平面图
客服
消息
收藏
下载
最近





























