查看完整案例

收藏

下载
项目名称:北京读库顺义办公楼
位置:北京
设计公司:北京天地都市建筑设计有限公司
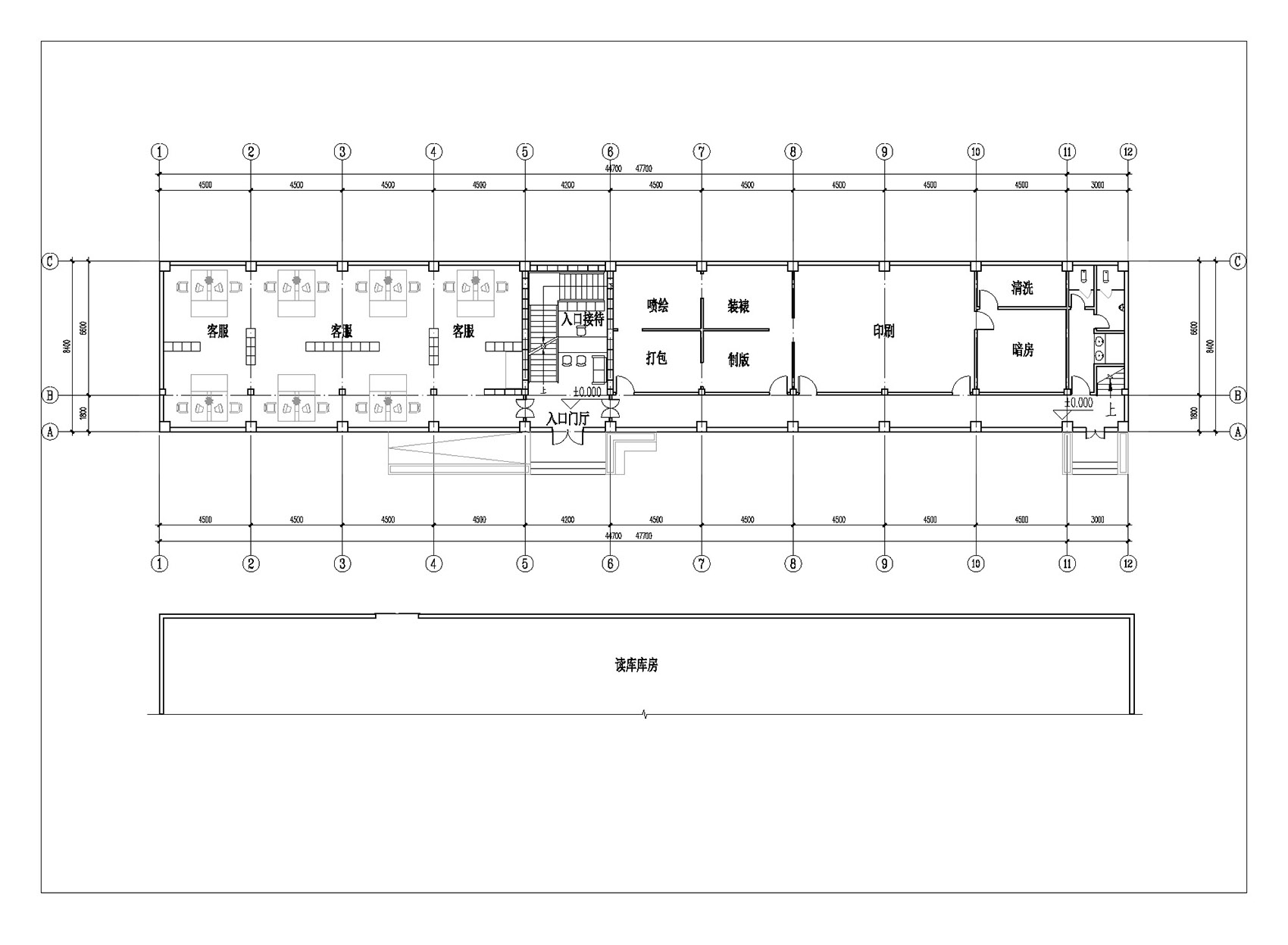
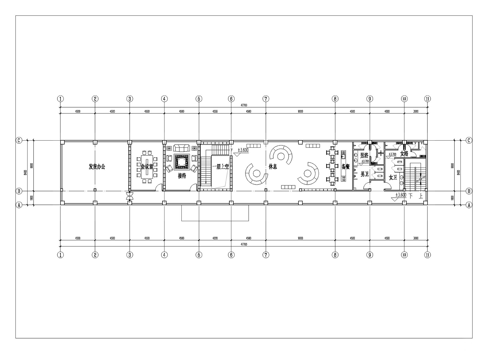
读库库房附属办公楼位于北京市顺义区合百意工业园内,在一排排钢构工业厂房之间,一栋二层办公楼,紧邻园区东侧围墙而建。办公楼形体简洁,呈南北走向条楼,地处工业园区内,立面风格偏重于工业风格。设计之初,面对现场48米开间9米进深、不足500平方米的用地,我们借用读库“阅读仓库”之意,以“粮仓”立意,按照最简单直接的功能主义原则进行了空间设计。“粮仓”呈单廊式布局,由客服、物流、画廊(印制装裱的工作间)、会议、餐厅、宿舍等主要功能空间组成,除了需要刚性分割的空间,其他空间均由书架来分割,一来可以利用辅助空间来做展示,二来可以为未来功能空间转换保留余地。入口通高中庭兼顾接待和展示,展架由入口门厅向内部其他空间蔓延,中庭上空的九宫格南向高侧窗天光,给整个室内带来了一些异样的空间感受。屋顶空间原本是为了员工平时打羽毛球之类的户外活动而准备,虽然为此进行了专门的细节设计,但平价金属防护网呈现出柔软而不整齐的半透明感,而由于手工操作工艺形成的粗粝、凸凹不平的外墙粉刷面,为整栋建筑增加了一种介于工业和乡村之间的质感。考虑北方的保温节能,立面设计以韵律感为主的竖条窗。一层的外窗,出于安全性的考虑,进行了进一步缩减,采用了T型窗。东立面因为紧邻园区围墙,二层的安全性要求更胜于一层,所以二层东立面开窗进一步缩减,采用连续点窗。让一栋建筑成为它本身该有的样子,正如包豪斯所确立的现代设计基本观点:“设计的目的是人而非产品”和“设计必须遵循客观、自然法则”,这也正是本案设计的根本逻辑。
北京读库顺义办公楼外部实景图
北京读库顺义办公楼外部实景图
北京读库顺义办公楼外部实景图
北京读库顺义办公楼外部实景图
北京读库顺义办公楼外部实景图
北京读库顺义办公楼外部实景图
北京读库顺义办公楼外部实景图
北京读库顺义办公楼外部实景图
北京读库顺义办公楼外部实景图
北京读库顺义办公楼外部实景图
北京读库顺义办公楼外部夜景实景图
北京读库顺义办公楼内部实景图
北京读库顺义办公楼内部实景图
北京读库顺义办公楼内部实景图
北京读库顺义办公楼内部实景图
北京读库顺义办公楼内部实景图
北京读库顺义办公楼内部实景图
北京读库顺义办公楼内部实景图
北京读库顺义办公楼局部实景图
北京读库顺义办公楼平面图
北京读库顺义办公楼平面图
北京读库顺义办公楼立面图
北京读库顺义办公楼立面图
北京读库顺义办公楼示意图
客服
消息
收藏
下载
最近



























