查看完整案例

收藏

下载
Residential Design·completed2022·80.2501349㎡
Designer:Liuchang
Beijing,China
项目背景
屋主是两位非常年轻有审美的平面设计师,身为设计师业主更能以比一般人高的眼光选择自己家的室内设计师,所以找到了我,我们前期聊的非常好,还没有见面就把合作定了下来,非常感谢屋主的信任。
而且这两位屋主也是我接触过最有审美的屋主之一,家里各种软装配饰都是从各个渠道淘来的,把整个房子布置的既丰富又很有艺术感,处处是巧思和有趣的细节,最后给我的感觉是和有审美的业主合作可以得到 1+1 大于 2 的效果。
户型优化
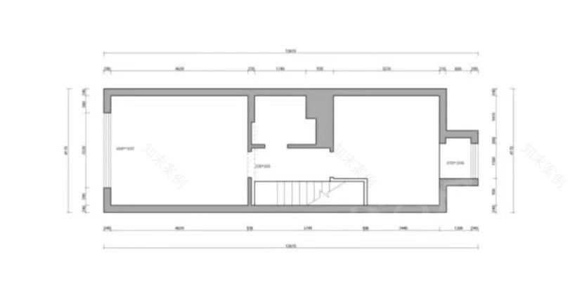
改造前 pre-remodeling
户型是一个两层的 loft,原始户型一层进门右边是厨房,左边是一个通往二层的楼梯。二层楼梯上来后是一个过道,通往主卧和客卧。
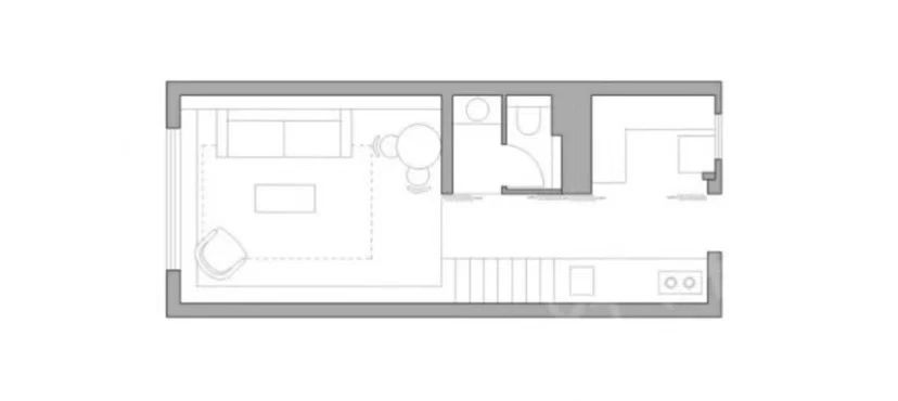
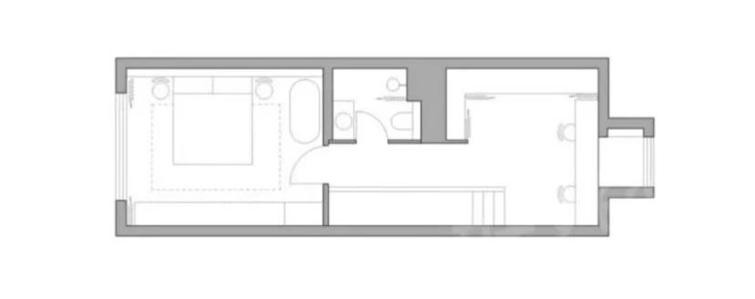
改造后 after remodeling
改造后平面优化了以下几个地方:
1.改变了楼梯的位置,改成通过走廊从客厅上二层;
2.在楼梯下布置了橱柜,原来的厨房作为入户衣帽间;
3.一层卫生间改成一个干区一个马桶间;
4.上楼后空间作为衣帽间和工作间,通过工作间进入主卧;
5.主卧床尾做了一面收纳衣柜增加储物;
6.主卧床侧面摆放了一个浴缸。
玄关 front door
进门左侧是定制橱柜,本橱柜和墙地面都定制成了一个颜色,形成整体感。右侧做了一面帘子,一方面平时遮挡衣帽间和卫生间的门洞,另一方面橘红色的帘子也有种剧场的感觉,通过走廊进入一个艺术感般的空间。客厅 fireplace
围绕客厅做了固定在墙上的隔板,在沙发后面做了两层壁龛,设计时希望可以在里面摆放很多好看的小物件,当然现在业主入住后被布置的很好,围绕客厅的隔板下面被放满了书,这点在设计的时候是没有想到的,在靠墙的地面作为摆放书的地方还是挺有趣的。
整个客厅空间的硬装非常简洁,没有任何多余造型,墙面都做了带肌理感的艺术漆,地面全部做了地坪漆,营造出整体感。
家具上避免比较常见的家具款式,尽量选了一些造型比较独特少见的款式,业主不希望自己家是千篇一律的,呈现出自己喜欢的方向。
沙发的款式是有点侘寂的 Palais Royal 沙发,因为原版尺寸比较大,定制的时候改造这款家具的尺寸,并且做了白色泰迪绒质感的面料,才有最终这款沙发简洁圆润的效果。
棋盘格地毯的元素也是近期流行的方向,当然所有软装的地方都是可以随着喜好不断调整的,尤其地毯这大面积能瞬间改变家里风格又不占地的软装。
沙发后的壁龛不仅仅展示摆件,内嵌的灯带也是客厅很重要的一个氛围照明。
在这个客厅内顶部没有任何顶灯,基本是靠各种高度的灯带,台灯落地灯来营造整体的灯光氛围。
壁龛细节。极简的结构感加上艺术漆带来的纹理感,每个摆件都十分有趣。
茶几细节。
其实茶几是一把造型奇特的中古椅,购于买手店“一个亿复古仓”。
Phantom Chair,90 年代 Verner Panton 设计,家具延续了 Panton 在造型上一贯夸张的设计风格,雕塑感极强,并且有多种用途,通过不同的摆放可以作为安乐椅,休闲椅,茶几和长凳使用。
沙发旁边摆放了业主 DIY 的装饰画和金属质感的台灯。
金属质感的镜面圆桌和粗犷的墙面质感形成有趣的对比。
餐桌背后的橘色色块是一个壁龛,现在被填满了植物,呈现出一个丰富有层次的角落。而橘色也是整个房子里各个地方都出现的颜色,整个空间在暖灰色的基础上有鲜艳的跳色去呈现碰撞和对比。
因为一直选不到好看的餐桌,所以照着 HAY 茶几的样式定制了一个放大版的餐桌,镜面不锈钢的材质很美,会产生各种光线的折射,好像消失在空间里。白色的中古椅是日本设计师佐藤大设计的 Softerthan steel 系列,从不同的角度看过去会有不同的曲线变化。餐桌上的异形镜既能通过空间的反射带来层次感,镜子背后的灯带也能给餐桌区域带来亮度。
在客厅能看到进门的走廊和楼梯下的开放厨房。调整楼梯位置后,从客厅看过去,视野会更有延伸感,让空间更有层次。
隔板下被书塞的满满当当。
角落的中古椅是一把很少见的设计师椅,来自买手店 MUE。
纸球的钓鱼灯既是很好的装饰也是空间里一个很重要的照明。
透明材质的小边几同时也是一个落地灯,来自 zarahome。
黑色的潘通椅非常经典,兼顾了美感与舒适性。作为 1000Chairs 封面椅,它是世界上第一把注塑成型的悬臂椅。由设计大师 Verner Panton 设计,无论在哪个年代都是很经典的存在,购自买手店 cabana。
角落的装饰画,是业主为自己画的自画像。
整个空间即使没有一个顶灯,只靠灯带和落地灯同样能带来充足且氛围感十足的照明。
小米空调本身就是空调里颜值最高的一款,为了让空调在空间里更融合,选择了一款跟墙漆颜色最接近的自喷漆,把空调喷成了和墙面一样的颜色,跟空间风格融为一体。
通往二层的楼梯。前两节台阶用了地坪漆,和电视下面的隔板连接在一起,上面的台阶直接铺木地板,营造出材质碰撞的层次感。极简的黑色把手是现场焊接的钢板制成。楼梯上色彩丰富的蜡烛和摆件是业主个人的收藏。
素色的墙面和地面衬托了摆件的多彩。
卫生间 restrooms
洗手间干区的门洞整体做成了拱形,颜色也刷成了贯穿全屋的脏橘色。
干区门口有趣的小细节,一个陶制的小手
来自:urban outftters
拱形结构的干区也让平淡的空间有了趣味性。洗手盆上方挂了一个和空间呼应的拱形镜子。
推开洗手间门,是隐藏的一个非常好玩的小角落,摆满了业主收藏的小玩具,感觉能在里面玩一天。
不仔细观察可能看不到,洗手间于区门洞的正对面的装饰画内,画面正是从这里望过去的角度,十分有趣。
厨房 bathroom
楼梯下的橱柜。
链接 loft 空间一二层的楼梯。Stairs linking the first and second floors of a loft space.
上楼后看到的是业主的工作室。整个工作区颜色大胆的用了脏橘色为主的墙面,充满戏剧性和氛围感,工作桌和扶手也都做成了和墙面一样的颜色。
工作桌角落。地面摆放了很多屋主自己设计的海报和装饰画,即使是随意堆放在角落也很好看。墙面的灯箱是屋主自己设计的,上面写了屋主的名字,房子内处处是屋主的元素,这才是自己的家。
顶上的消防管也同样刷了和墙漆一样的脏橘色,原本难看的消防管也成了风格的一部分。
管道上坐着一个小机器人也太好玩了。
书桌侧面的帘子作为衣帽间和储物间使用。帘子选了和墙面最接近的天鹅绒材质的拉帘。
工作区和衣帽间的走廊往里走就是主卧和主卫的门。
走廊的扶手上内嵌了灯带,通过光线的反射能把顶面照亮,从而给空间带来照明。
打开主卧侧面的隐形门是主卫空间。
主卫 main bathroom
主卫整体墙地面都用了微水泥材质,浴室柜的柜门和台面也同样刷了微水泥,打造出无缝一体的整体感。
卧室 bedrooms
主卧空间。
整体的色调和客厅一致,墙顶面同样以带有肌理感的艺术漆为主。
床头坐了一块内凹的壁龛,内藏灯带同时也能摆放一些装饰品。
主卧的床体是柜子厂家设计定制的,颜色和房间墙面一致。
主卧的床尾做了整面的衣柜,衣柜设计成了最简洁的平板无把手的样式,和墙面一样干净,减少了柜子带来的笨重感。
柜子最上面留了 5cm 的空隙,里面放了一个反光灯带,打开灯带通过顶面的反射也能给空间带来氛围感的光源。
床头的凹龛内设计了从下往上打的灯带,躺在床头既不会刺眼也能呈现出柔和的光源。
床头宜家几十块的落地灯也非常好看。
床头舍去了传统的床头柜,以极具线条感的单椅作为床头的边几。床头插座也刷成了和墙面一样的颜色,减少插座带来的突兀感。
床侧面靠放了一个独立的浴缸。
业主对于浴缸放卧室的心态还是很好的,觉得在北京冬天干燥的环境下,浴缸可以算是一个很好的加湿器呢。
放浴缸的区域墙顶地面都刷成了脏橘色,用色块衬托了这块空间,也呼应了空间内的其他区域。
浴缸细节。
脏橘色的浴缸区域和外面走廊颜色形成呼应。
衣柜另一侧做了一个梳妆台,同样是色块的效果。
豆腐块一样的暖气片应该是市面上能买到最好看的一款了。
项目信息
设计工作室:NOTHING DESIGN
设计师:刘畅
项目位置:中国 北京
项目面积:80.2501349㎡
项目类型:私宅空间
完成时间:2022 年
材料:艺术漆/不锈钢/微水泥/木地板
客服
消息
收藏
下载
最近































































