查看完整案例

收藏

下载
01 叶设计
家承担了远航与庇护之间的独特角色,此间住宅整体色调把控充分体现了相对理性克制的底色,黑色代表刚毅的意志,白色体现柔和的情感。
入户开敞,各个空间铺展开来,不同性格属性的家具界定场所。
双向沙发拉伸了空间维度,摆设于地毯之上,提亮并着重强调客厅空间的核心角色。
刚毅存在于柔和的界面内,让空间的静与动逐渐中和中和、平缓,以至波澜不惊。
素雅的器物与光线相互交叠,美于时光中温存,营造远离繁嚣、随性自由的静谧慢调生活。
一天中最美妙的时光就是和家人共进三餐的时刻。
灯光里藏着一家人美好的回忆,觥筹交错间,映照着生活的暖意,构成你对家的无限眷恋。
中西厨兼而有之,适应了家人之间不同的饮食习惯。
至夜榻枕安眠,抛却烦扰与纷乱,最能抚慰为生活奔忙的疲惫之躯。
在主卧,设计师以居者为中心,将休闲、梳妆、储物等多种功能纳入空间中,休憩之地的舒适度与开阔感被拉到最大,包容着无限的生活灵感。
木质坚实温润,意蕴深悠,营造出的温柔氛围,给予居者一种归属感。
主卧的卫浴间中,设计师大胆地采用了一体式的设计,令空间显得更为连贯开阔。
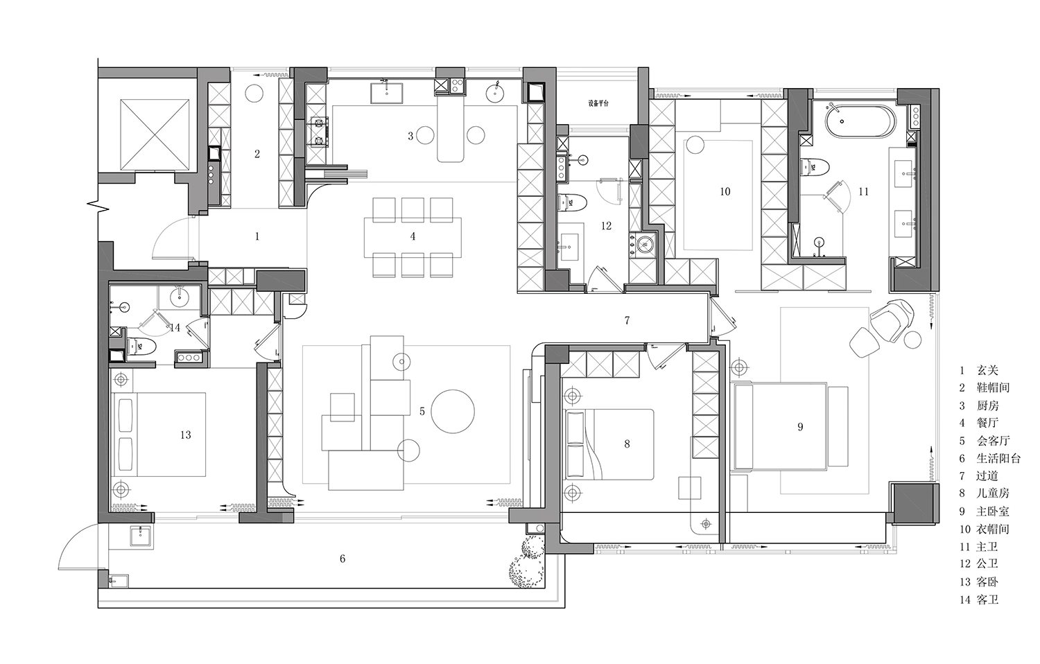
平面图
项目地址:台州江南墅
设计公司:叶设计
总设计师:叶祥宝
项目摄影:单行线空间摄影
客服
消息
收藏
下载
最近



























