查看完整案例

收藏

下载
项目名称:乌克兰Nadvorie综合体
位置:乌克兰
设计公司:萨多夫斯基建筑事务所
纳德沃利工作室完成Nadvorie综合体的最后阶段,这是一个致力于当代文化的空间。在该方案中,Pekarska街和大学公园的一个新的人行入口已经建成。这座多功能建筑包含各种空间,被配置为一个创意中心,包括独立和共享的工作室,一个住宅工作室结构,一个活跃的底层,包括商业区、工作室和整个Nadvorie综合体的行政设施。重建的历史悠久的市民之家矗立在特尔纳瓦市的景色之中。它位于该市的文化遗产保护区内。凭借其原本对称的街道立面和U形平面图,它经历了几次重建。可追溯到中世纪的地下楼层是逐步扩建的。底层的文艺复兴拱顶记录了建筑的逐渐演变。20世纪初,该建筑被其他上层建筑扩建,其中央通道被改造成一个带有开放式楼梯的入口大厅。20世纪下半叶,部分街道和庭院侧翼被拆除,后来部分重建。
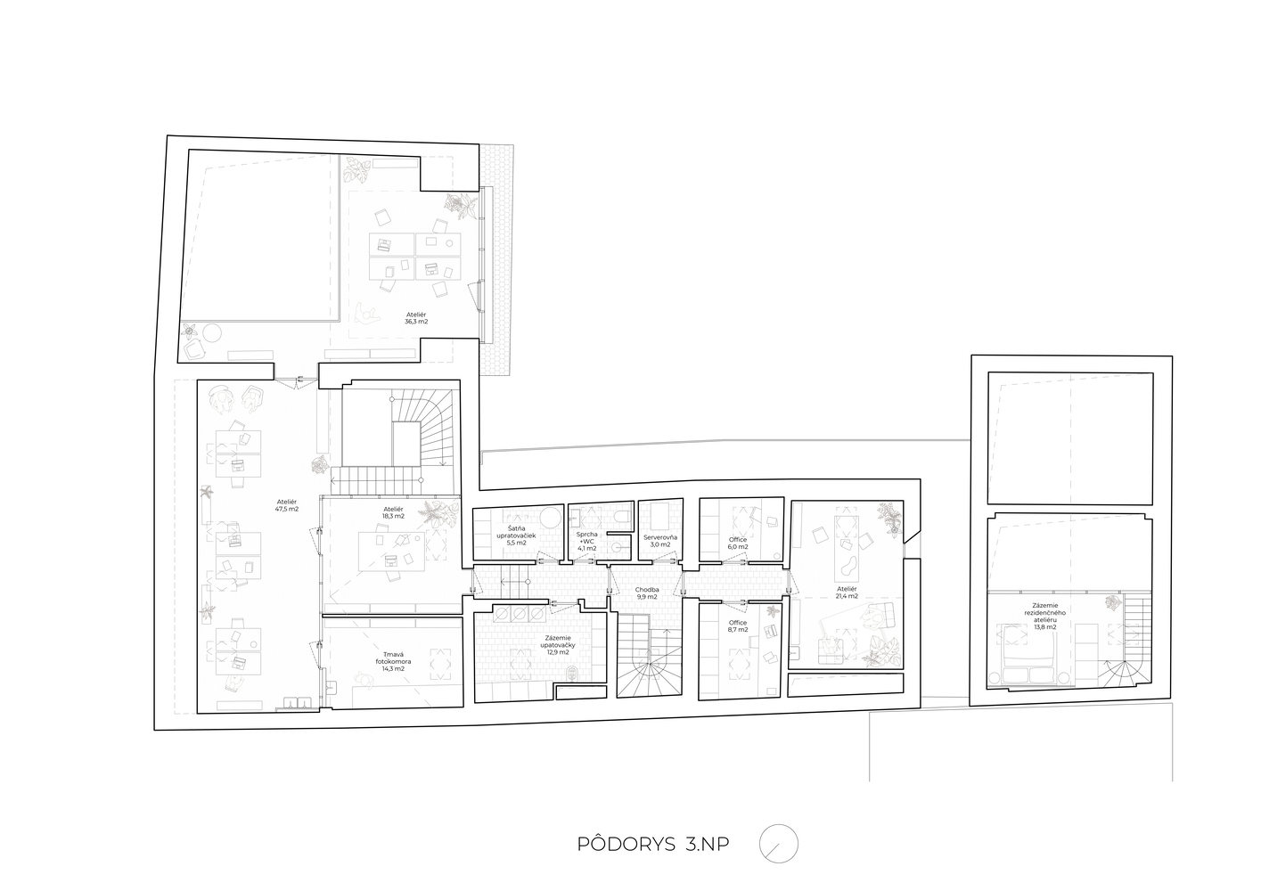
这种分割在立面和布局中都很明显,每个附加物看起来都是独特的独立实体。街道翼根据其20世纪的设计进行了翻新,采用了对称的立面,保留了一楼较新的功能分区,包括通道、入口和店面,并展示了该建筑前几次迭代的宝贵片段。原始通道通过展示历史保险杠和添加透明填充物得到增强,开辟了通过创意中心入口大厅到庭院的视野。通道原始拱顶的指示性重建记录了建筑生命的各个阶段。新建立的连接也反映在布局中,其中两部分是统一的。除了可出租的空间外,创意中心的弹出式空间位于活跃的底层。它开向通道,有一扇宽大的窗户,是从一楼到庭院的原始历史景观的释义。一项新的干预措施是将阁楼用作共享工作室。为此,在原有开放式楼梯的基础上增加了一个新的钢制楼梯。
在街道侧翼的新部分,一个带夹层的两层空间被设计成摄影棚。面对庭院的老虎窗空间的凹陷地板是共享工作室的延伸。除了一个独立的小工作室外,阁楼工作室还配备了一个暗室。这座建筑的关键空间是创意中心的公共休息室,位于一楼街道侧翼的中间。这个多功能空间配备了灵活的家具,并允许多种使用场景。带有图书馆的入口区域提供了通往庭院侧翼新阳台的通道,这是通往各个工作室的主要通道。庭院由翻新的侧翼勾勒出轮廓,以最后保存的文艺复兴时期拱顶的历史结构结束。这个拱顶暴露在通往邻近建筑的通道上方,这是整个建筑群的房子的背面。一楼在视觉上是开放的,容纳了工作室和可出租的空间。在上层,坐落着独立的工作室。一个新的体量和历史建筑的原始足迹形成了一个独特的组成部分。在这种情况下,正面的连续阳台被用作共享交流空间,在视觉上分隔了各个体量。
扩建提供了额外的工作室和工作室,它们在布局上与现有建筑直接相连。新的横向庭院专用于艺术居住项目。提供一系列设施,如住宿、大型工作室等。视觉连接和控制在新结构中得到了强调。房子的原型形式是通过几个缩进楼层形成的,楼层上方的空间自然向屋顶开放。这使得底层工作室可以跨越三层,并向庭院本身开放。工作室包括一个相邻的工作室,在展览期间可以很容易地从视觉上分离出来。它配备了一台起重机,甚至可以提升和移动超大型物体,为内部大型项目提供了可能性。楼上是工作室的设施,可以通过阳台进入。从视觉上看,这个开放的两层空间与工作室相连。在相邻的夹层上,可以通过内部楼梯进入的是所谓的休息区。可持续性是重建的主题之一。
该项目对新建的庭院翼采用了实验性方法,在历史中心和新类型应用的复杂背景下探索预制稻草-木块的替代材料解决方案。其结果是一种混合结构,既适用于传统的砖石结构,也适用于轻型钢架结构,其中提到的预制秸秆块还有助于支撑结构。除了低碳足迹之外,所使用的材料还具有出色的透气能力,这也体现在内部使用粘土石膏和外部通风立面上。还可以从视觉上区分新建筑的增加。他们的设计语言遵循了建筑群的其他延伸部分纳德沃利。选择使用砖外墙覆层是指Trnava的传统建筑材料。能源管理解决方案得到了直接解决和强调。尽管重建建筑的历史遗产特征为节能系统提供了有限的可能性,但仍采用了一种全年供应建筑而无需额外能源生产的系统。该系统由地热热泵组成。七口深度为120米的地下井可以在地下积累能量,然后在冬季用于加热,在夏季用于冷却。
乌克兰Nadvorie综合体外部实景图
乌克兰Nadvorie综合体外部实景图
乌克兰Nadvorie综合体外部实景图
乌克兰Nadvorie综合体外部实景图
乌克兰Nadvorie综合体外部实景图
乌克兰Nadvorie综合体外部实景图
乌克兰Nadvorie综合体内部实景图
乌克兰Nadvorie综合体内部实景图
乌克兰Nadvorie综合体内部实景图
乌克兰Nadvorie综合体内部实景图
乌克兰Nadvorie综合体内部实景图
乌克兰Nadvorie综合体内部实景图
乌克兰Nadvorie综合体内部实景图
乌克兰Nadvorie综合体内部实景图
乌克兰Nadvorie综合体内部实景图
乌克兰Nadvorie综合体平面图
乌克兰Nadvorie综合体平面图
乌克兰Nadvorie综合体平面图
乌克兰Nadvorie综合体平面图
乌克兰Nadvorie综合体剖面图
客服
消息
收藏
下载
最近























