查看完整案例

收藏

下载
Lang靓是位于墨尔本South Yarra的一栋新建双层住宅,反映了业主对“具有建筑风格和灵感的增强健康之家”的愿景。
作为探索“一种不同的思维方式”的结果,该设计故意避免了走廊和走廊,而是在一个相对较小的内城规模的街区上最大限度地发挥开放空间、自然光和绿化的潜力。
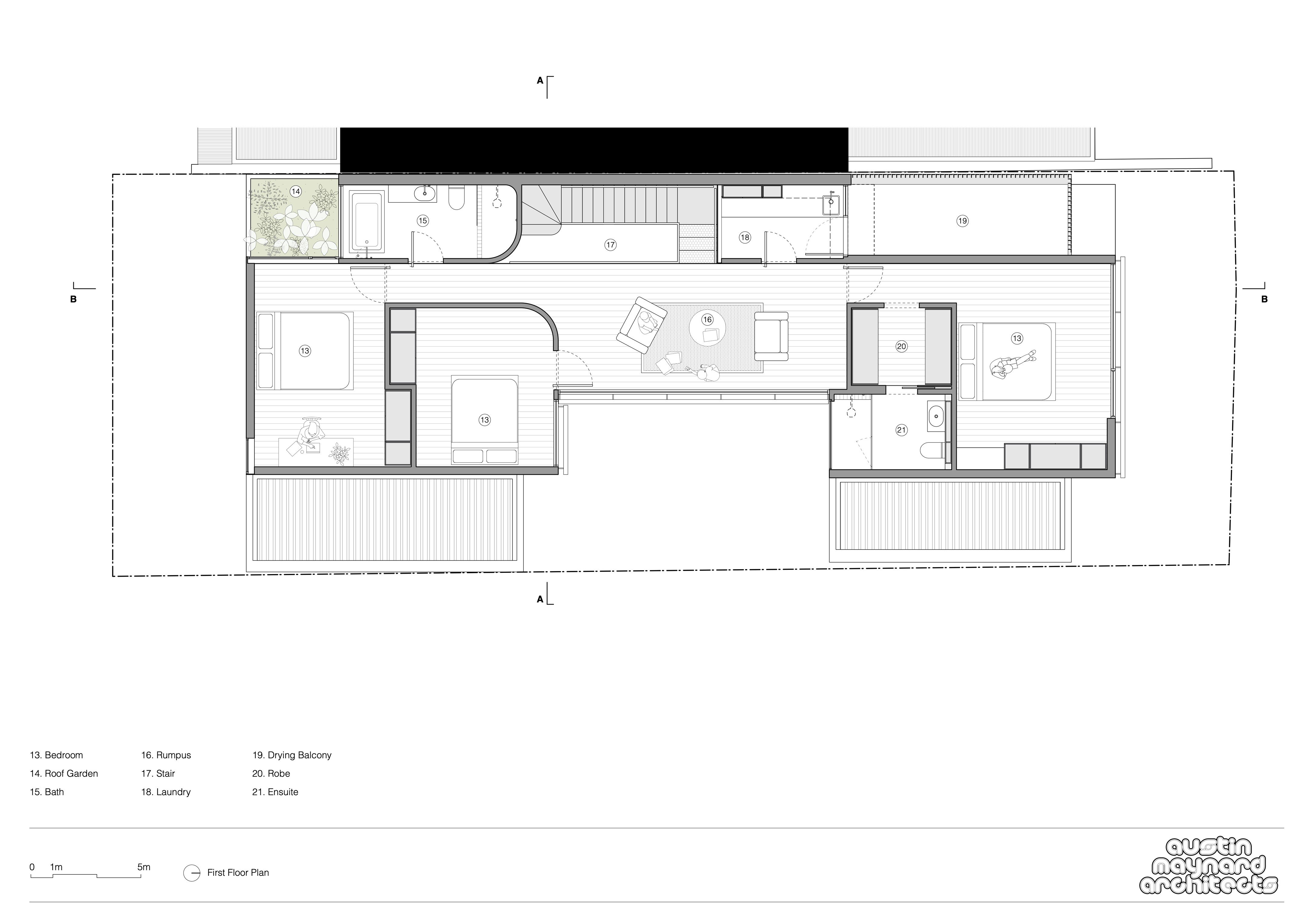
围绕三个具有大开口的不同花园区域布置,内部和外部空间之间的联系交织在一起; 为居民(一个四口之家)提供“轻松的平静”,让他们可以追求自己喜欢的事情——阅读、烹饪、社交和在后院踢球。
Lang 注重创造力、效率和独特的存储解决方案,提倡整洁的生活和“永远的家”的适应性。 除了马质包层和凹槽玻璃正面之外,内部空间宽敞明亮,厨房、餐厅和客厅扩大了整个长度,而宽度则包含了一个内部庭院花园。 高耸且具有雕塑感的弯曲木“树干”包含上下浴室,而入口处设有下拉式墨菲床、隐藏式储物柜和隐私窗帘,可作为客房。
平面与结构图:
设计师:Austin Maynard Architects
坐落:Melbourne / Australia / 2024
语言:English
客服
消息
收藏
下载
最近



























































