查看完整案例

收藏

下载

附件

翻译
Architect:Pichler & Traupmann Architekten ZT GmbH
Location:1030 Vienna, Austria; | ;View Map
Project Year:2020
Category:Universities;Cultural Centres
Stories By:Pichler & Traupmann Architekten ZT GmbH;LAMM
The new building for the Future Art Lab will complete the development of this special campus, which is reminiscent of Anglo-American models and is unique for Vienna. On account of this, and due also to it location at a prominent position, this building has a special importance, which makes it possible to especially accentuate the canon of the buildings on the campus at this point.
On the other hand to exert a particular dominance here would be inappropriate. A moderate height, integration with the neighbouring buildings in terms of volume, and spatial and functional references to the central open area, the “campus” in the literal sense of the term, appeared important. The building is seen as a pavilion which makes a gesture of opening towards the middle of the university and which can also respond to urban references.
The result is a free-standing, embedded building which can very much be understood as an apparatus, an appliance for playing, composing and experimenting with and on film and music.
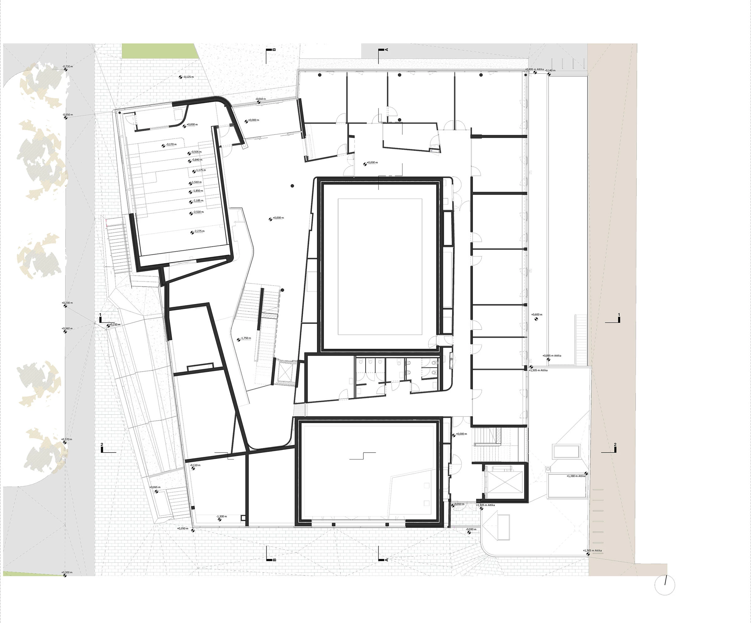
The internal organisation is based on the requirements in terms of function and building acoustics, and the aim is to give each institute the greatest degree of compactness combined with maximum exposure to daylight.For reasons of acoustics the Institute for Electro-acoustic Music and Composition with the large halls (the Klangtheater (sound theatre), and the recording hall) which form its nucleus is placed at basement level, along with a generously sized foyer zone. Through a sunken courtyard its teaching spaces receive sufficient natural east light. The institute’s administration rooms are also east-facing and are located on the ground floor as is the main foyer.
In terms of floor area the Film Academy is the largest institute with the greatest number of rooms that must be lit naturally. It takes up the entire 1st floor, which, in accordance with the building regulations, is also the largest in area. To generate more facade area for daylight a wing is folded inwards, creating a large terrace as a side effect. The Art House cinema is placed so that the public can access it directly at ground floor level. The lower level of the cinema is directly connected with an intermediate level inserted in the void of the basement. At this point a direct pedestrian connection to the neighbouring Building G is possible
The recessed 2nd floor, the roof level, is reserved for the Institute for Keyboard Instruments, which in terms of floor area is the smallest but which has a relatively high proportion of areas that must receive daylight. It, too, is grouped around its nucleus, the concert hall. In terms of ceiling height the concert hall exploits the roof volume allowed by the building regulations, and it is naturally lit.
1. SCHÜCO ALUKÖNIGSTAHL GmbH (alu steel profiles, metal facade | windows | doors)
2. Bauunternehmung GRANIT Gesellschaft m.b.H. (contractor)
3. Fuchs Glas Technik GmbH St. Valentin (glass walls)
4. Kone AG Vienna (elevators)
5. Braun Lockenhaus GmbH (furnishing)
6. Neudörfler Office Systems GmbH (furnishing)
7. Montana Furniture Austria (furnishing)
8. Lamm s.r.l. San Secondo Parmense (seating cinema)
9. LEHA Sonnenschutz & Vorhangschienen nach Maß (sun protection)
10. kvadrat Vienna (textiles)
The fitting out of the Film Academy’s new screening room at the MDW University in Vienna has been successfully completed. The room is equipped with fully upholstered L213 armchairs (some of which can be removed) arranged in eight straight, tiered rows.The Future Art Lab, built in 2020 by Bundesimmobiliengesellschaft (BIG) to a design by the Pichler & Traupmann architectural firm, is a new multifunctional building at the mdw – University of Music and Performing Arts, which completes the campus of the historic university in Vienna dedicated to music and performing arts. It is home to four faculties, the largest of which is the Film Academy (mdw’s film school), where students learn to compose and experiment with soundtracks for audiovisual material: it occupies the entire first floor of the complex, which is the biggest in terms of size and floor space.
At the heart of the Future Art Lab, which officially opened on 7 June 2021, is the Art House Cinema: a screening room for arthouse films, accessible directly from the ground floor of the building so the general public can attend showings. It was fitted out by LAMM in collaboration with local partner Auditorium Seats.
This project involved the supply and installation of L213 armchairs complete with inclined sides and full Kvadrat Field 2 fabric upholstery designed by Alfredo Häberli. All the chairs, which have a seat and backrest that tilt in tandem, are arranged in straight, tiered rows.
The 30 armchairs in the front three rows are equipped with a tip-up writing tablet with anti-panic movement. A dozen of these are also fitted with a double electrical socket, easily accessible and located in the lower front part of the side. In the middle of the room, there are 15 removable armchairs in groups of 2 and 3: these are easy to remove and put away in storage rooms when not in use.
This installation adds to LAMM’s rich portfolio of work for the conference sector, which auditoriums, conference rooms, cinemas, theatres and multi-purpose venues includes.
▼项目更多图片
客服
消息
收藏
下载
最近




















































