查看完整案例

收藏

下载
项目名称:前纽伦堡货运站改造的Kohlektiv新区
位置:伦敦
设计公司:安德烈亚斯·费尔斯特尔建筑事务所
前纽伦堡货运站的区域目前正在进行根本性的改造。在未来几年,它将发展成为一个大型办公和零售区。Kohlektiv将发展成为新区的中心。过去,前货运站的总部就设在这座大楼里。该建筑代表了现有建筑的进一步发展,并将作为前货运站的历史参考点。与规划的新建筑一起,一个有利的(建筑)混合物被创造出来,它具有一种身份形成的效果。现有建筑的特点是其建造时期的典型建筑风格。这一点在门面上也能看出来。一座钢筋混凝土框架建筑,由楼梯加固,用混凝土和熟料砖填充。各种装饰元素和精心设计的楼梯补充否则非常合理的建筑。设计目标是保持建筑的特色。与此同时,适当的介入,如清理建筑物顶部的立面,旨在赋予现有建筑新的外观。一楼以前是一个仓库,门面被封闭了。通过开放立面和移除一楼的破坏性元素,创造了一个大厅般的大型无柱空间,使建筑更加开放,并与周围环境和火车站前的区域建立了更强的联系。
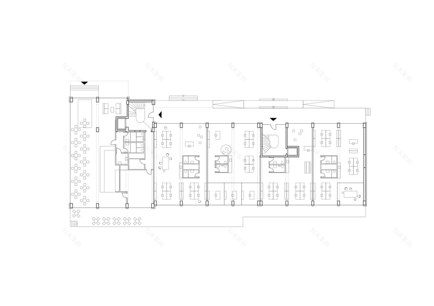
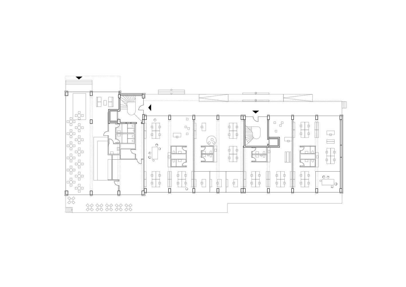
改造后,该建筑为各种用户提供了现代化和高度灵活的办公空间。上面几层被掏空,只剩下外壳。每层分为三个使用区域,可以灵活组合形成各种大小的出租单元。每个单元都在一个中心点配备了必要的建筑服务基础设施。各种设计的卫生间和小厨房可以停靠在核心上,并辅以“服务室”,如会议室或存储区。这个中心区域为各种各样的办公室布局留下了完全自由的立面:从蜂窝办公室到多空间。该建筑的混凝土柱和肋状天花板的承重结构在内部仍然可见。这些工业组件与色彩设计丰富的墙壁和纺织地板覆盖物相得益彰;现有立面的“结构和填充”设计原则也因此在室内设计中找到了它的对应物。典型的建筑起源时期的配色方案,由混凝土制成的工业组件,以及精心设计的内部配件创造了当代的个人工作空间。
前纽伦堡货运站改造的Kohlektiv新区外部实景图
前纽伦堡货运站改造的Kohlektiv新区外部实景图
前纽伦堡货运站改造的Kohlektiv新区外部实景图
前纽伦堡货运站改造的Kohlektiv新区内部实景图
前纽伦堡货运站改造的Kohlektiv新区内部实景图
前纽伦堡货运站改造的Kohlektiv新区内部实景图
前纽伦堡货运站改造的Kohlektiv新区内部实景图
前纽伦堡货运站改造的Kohlektiv新区内部实景图
前纽伦堡货运站改造的Kohlektiv新区平面图
前纽伦堡货运站改造的Kohlektiv新区平面图
前纽伦堡货运站改造的Kohlektiv新区平面图
前纽伦堡货运站改造的Kohlektiv新区剖面图
客服
消息
收藏
下载
最近















