查看完整案例

收藏

下载
项目名称:杭州湖滨银泰in77五期建筑
位置:杭州
设计公司:浙江大学建筑设计研究院
杭州湖滨银泰in77五期位于湖滨商圈核心区域,紧邻西湖。项目用地面积5007平方米,总建筑面积约2.65万平方米。地块东临延安路,西临东坡路,南至解放路,北至邮电路,是杭州繁华的商圈——湖滨商圈的重要组成部分。作为前四期的延续,湖滨银泰五期定位打造“具有特色的核心级商业”,是杭州湖畔文旅商业中心项目。项目致力于打造成杭州城市新窗口,文化旅游新名片,品质湖畔新生活。作为湖滨商圈的重要组成部分,本项目是商圈南端的重要节点,主要服务对象是杭州市民及西湖观光游客。湖滨商圈已形成地上步行为主,地下互联互通的友好步行环境,市民和游客可以在这里休闲、体验、购物。在寸土寸金的杭州湖滨商圈,由于用地紧张,且受到西湖景区限高控制,设计师需要对项目用地条件进行全方位分析,从而充分挖掘地块的商业价值。
设计通过多方案对比分析确定商业层数和空间高度,利用屋顶打造西湖观景平台,构建高品质的实体店购物体验。项目位于西湖沿线一级景观控制区,地块西、南侧贴临L型保留建筑为三层(局部四层)坡屋顶建筑,一层有连续贯通的骑楼。作为直接面向西湖的建筑,在建成的十多年中已与周边环境融为一体,形成了独具特征的城市意象。其立面根据柱廊等距划分,秩序严谨。立面材料以砂岩和青砖为主,与湖滨名品街、仁和饭店等东坡路两侧的建筑在形式、材料上协调一致。项目设计既要在功能上满足新旧二者相互融合的可能性,又要在形象上取得二者的协调。同时在商业价值化的前提下,积极保护该区域的环境风貌,协调项目与周围既有建筑的关系。
新建建筑立面在形式和节奏上与周边既有环境取得协调的同时,又保持独特性,实现新旧建筑的“和而不同”。通过处理新建部分与L型保留建筑之间衔接与过渡关系,保留建筑通过改造提升,终实现新老建筑的整体贯通和一体化的商业运营。周边商业配套成熟,商业氛围浓厚,人流量大,设计通过分析外部人流引导方向,合理确定商业主次入口,从而形成具有活力的内部商业动线。地下商业与南、北地下通道形成贯通,使得地上、地下商业与湖滨周边地块形成一个有机整体。从室内商业流线的高效组织到城市人流的化导入,从地下空间的集约开发再到建筑体量的挖掘等等,实现商业价值的化。
依托周边资源禀赋,设计团队打造对公众开放同时具有积极社会效益的西湖观景平台,形成西湖景区为数不多的屋面观景点,人们可以在屋顶上休憩、驻足。项目可以为西湖观光游客提供休闲停留、高品质体验的商业环境,包括餐饮、文化娱乐、时尚购物、生活休闲等全方位特色体验。建筑提供的空间是多维度、灵活可变的,人与场地、建筑、空间的关系是互动的。主要出入口均设置缓坡与室外广场、道路连接,公共通行的室内走道均为无障碍通道,室内设置无障碍电梯及无障碍专用厕所供残障人士使用,充分营造步行友好、无障碍通行的商业环境。
由于湖滨商圈已趋于成熟,且有地铁站点作为主要人流的疏解,共享停车成为该区域停车规划的总体思路,项目地下三层设置一处90辆的AGV全自动机器人共享停车库,充分体现绿色出行和绿色共享的理念。项目建成投入使用以来,运行情况良好,展现了显著的社会效益、经济效益和环境效益。在设计建造过程中,设计团队精心设计、尽心配合,做好设计、选材、施工各个环节的把控,为顺利完成项目建设提供全面的技术支撑,为湖滨商圈呈现出一个高性价比、品质优良的文旅商业中心。项目的创作充分考量了建筑与历史、建筑与环境、建筑与运营的关系,在商业价值与建筑自主性表达之间进行反复地平衡与协调。平衡的结果是实现多方共同价值的方式,这是一种机智的策略,是在建筑的理想目标与现实状态间寻求某种巧妙平衡。
杭州湖滨银泰in77五期建筑外部实景图
杭州湖滨银泰in77五期建筑外部实景图
杭州湖滨银泰in77五期建筑外部实景图
杭州湖滨银泰in77五期建筑外部实景图
杭州湖滨银泰in77五期建筑外部实景图
杭州湖滨银泰in77五期建筑外部实景图
杭州湖滨银泰in77五期建筑外部实景图
杭州湖滨银泰in77五期建筑外部实景图
杭州湖滨银泰in77五期建筑外部实景图
杭州湖滨银泰in77五期建筑外部实景图
杭州湖滨银泰in77五期建筑外部实景图
杭州湖滨银泰in77五期建筑内部实景图
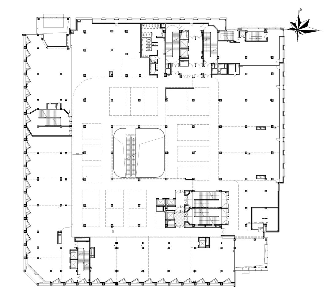
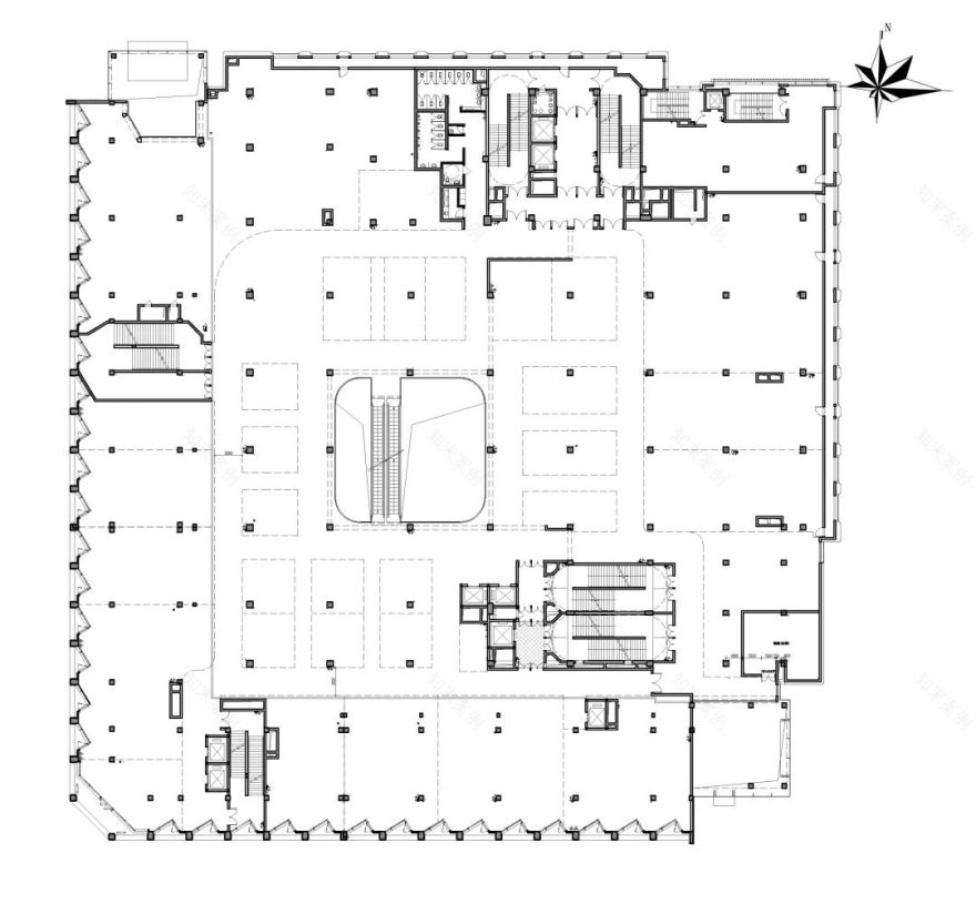
杭州湖滨银泰in77五期建筑平面图
杭州湖滨银泰in77五期建筑平面图
杭州湖滨银泰in77五期建筑平面图
杭州湖滨银泰in77五期建筑平面图
杭州湖滨银泰in77五期建筑平面图
杭州湖滨银泰in77五期建筑立面图
杭州湖滨银泰in77五期建筑立面图
客服
消息
收藏
下载
最近






















