查看完整案例

收藏

下载
项目名称:深圳阿维塔新能源汽车体验中心
位置:深圳
设计公司: Office AIO
摄影师:Wen Studio
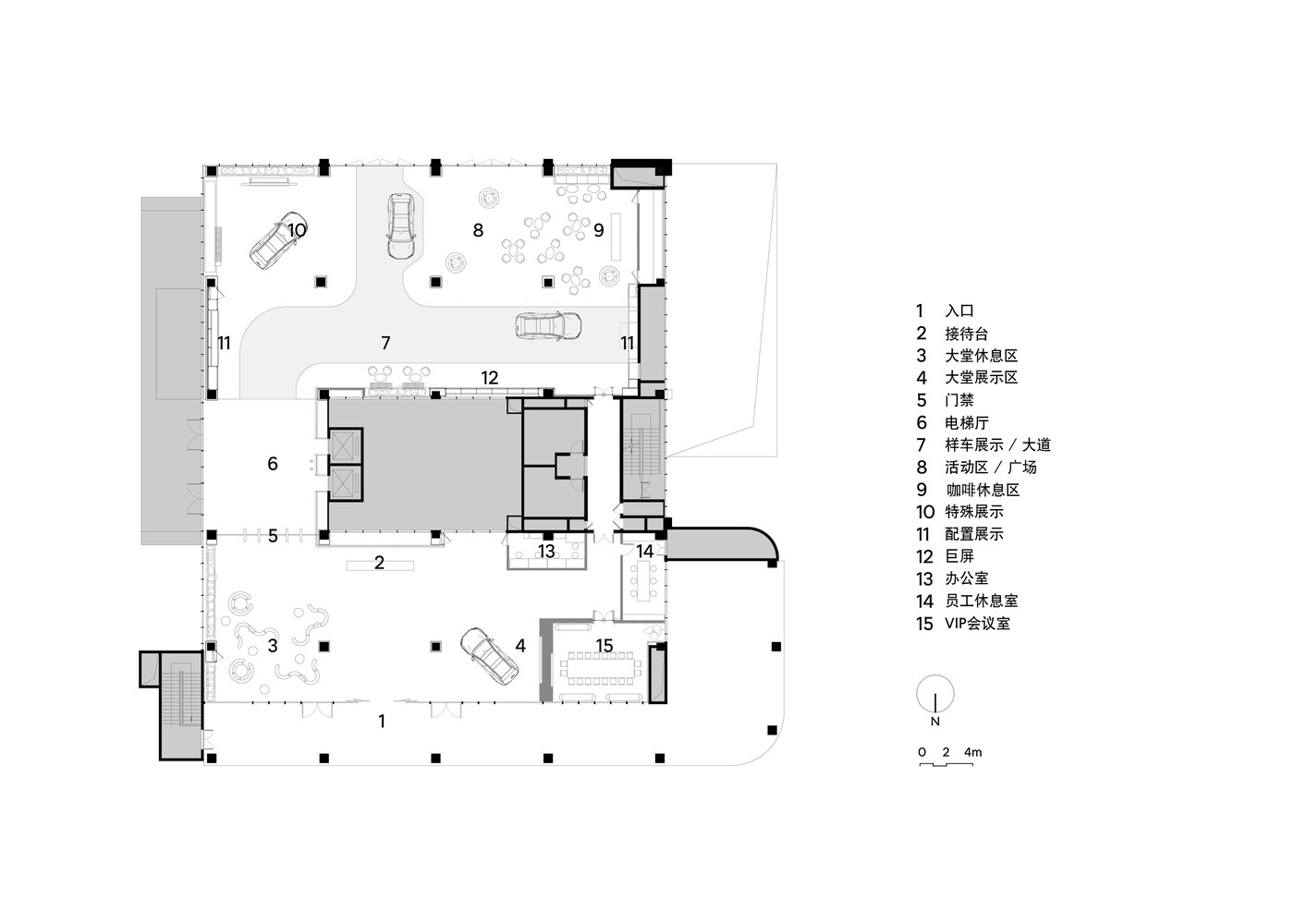
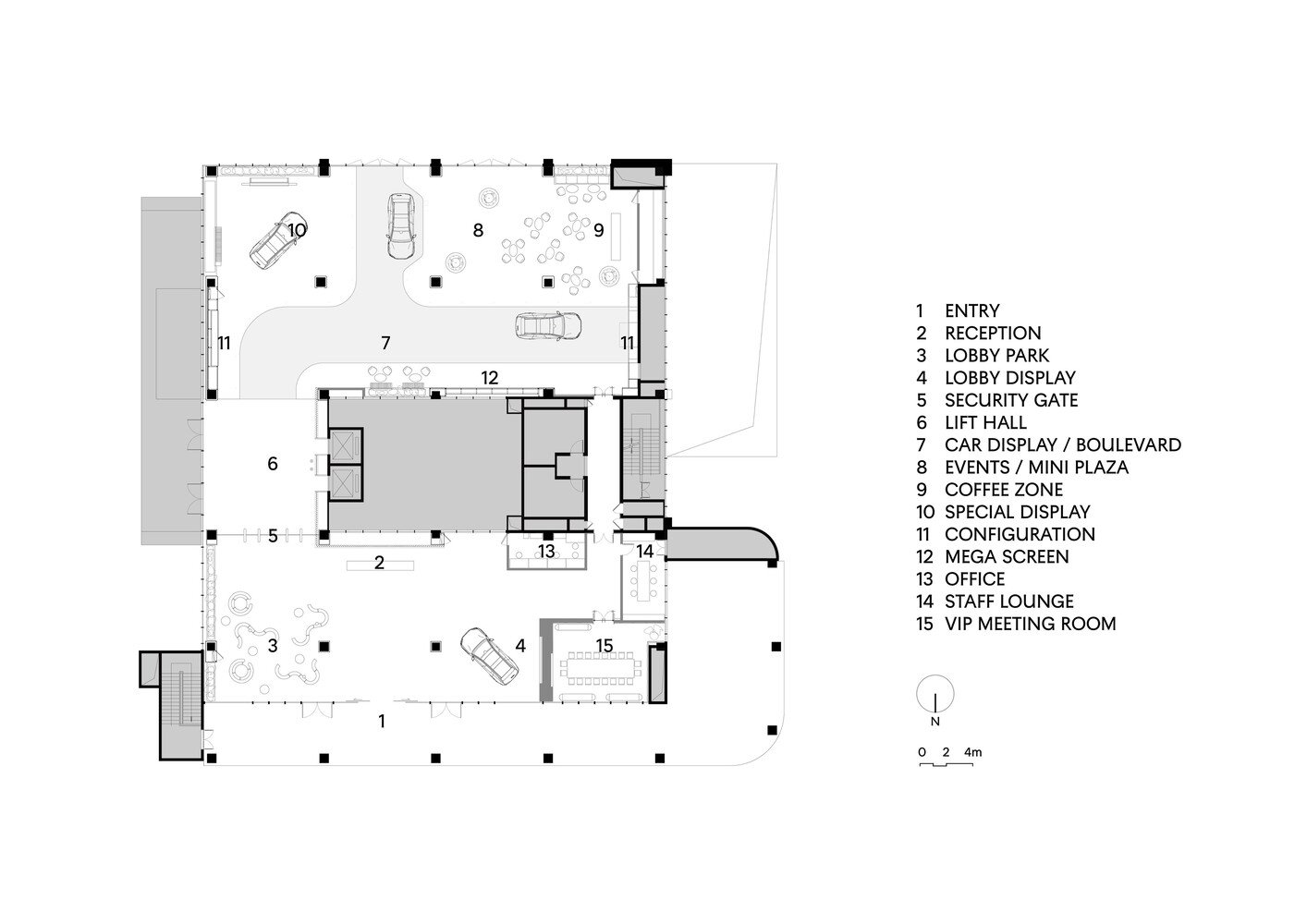
新生代汽车品牌阿维塔计划在中国各大城市布局100多个体验点,包括占地200-400平米的体验中心以及商场中庭的快闪店。团队邀请了Office AIO构想全方位销售体验,从空间设计出发,打造阿维塔的零售路径,并以此奠定阿维塔的品牌特质。阿维塔的电动汽车结合轿跑的优雅与SUV的运动性能,兼顾城市路况与自然环境,更好地满足当前世界环保趋势下的需求。Office AIO的总体理念以品牌社区为导向,强调用户体验感,弱化销售交易性。其目的在于带领访客畅想拥有一台阿维塔的未来,去探索、社交、生活。体验中心将成为阿维塔车友们的聚集地。比如,在开启公路旅行前,他们可以在此集合,为即将奔赴的冒险而兴奋,为亲朋好友的相伴而欣喜。为实现这一理念,Office AIO团队在体验中心内还原了“街道上”、“楼宇旁”、“公园中”、“咖啡店前”,这四个都市汽车微场景,让阿维塔驶入人们熟悉的日常环境,而非置于展台上只能远观。设计并未拘泥于汽车作为商品的属性,提出了着眼未来的先进观念,即不断进化并与自然相融的城市生活。
Office AIO团队削弱了诸多科幻作品中满溢的技术沉浸感,仅将科技元素体现于无形的细节中,令整体空间在历史传承的城市肌理中迭代,并反思自然给予繁华都市的馈赠。设计不止于外观,这些“大道”也是具体门店的设计参考轴。由此,设计师可高效地沿伸出不同场地的布局,从而快速地实施落地。停在大道上的车辆既完成了场景展示,又成为迎接访客的第一接触点。由大道围合的微型“广场“里方便人们进一步体验阿维塔的细节。在这里,人们可以参与丰富多彩的社区联谊。定制的金属质感板凳内嵌入了舒适的软凳,以响应各类活动对座位布局的要求。以此为设计基础,可以使其他区块得以灵活落位。微型广场旁的咖啡角让客户与销售舒适地驻足交流,同行者也可在此放松休憩。工作坊设于大道与广场的交汇口,人们可以翻开或滑出装有核心零件的工具柜,详细了解客制化的配置。
阿维塔轿跑SUV于城市中穿行,在自然中畅游。城市与自然的完美融合是阿维塔用户体验的标配。曲线与乡野风的配色奠定了空间内自然的基调;模块化的木制吊顶悬于迷你广场之上,波纹石灰墙壁和绿植散着公园的气息。地面的曲线与柱体的圆角与汽车的机械硬核形成对比,让空间更加和缓自然。店内的城市大道铺设着仿街道纹样的地砖。当体验中心为用户举办特别活动时,沿大道点亮的变色LED灯带会瞬间让整个空间变成欢乐的聚会现场。光映在金属色泽的面板上,呈现出干练简约的现代感。Office AIO的“大道入店”策略层次丰富,社区体验的立足点让阿维塔与众不同。此外,设计具有极高的落地性,短短一年间就有超过100家体验中心在全国各地揭幕。阿维塔从展台驶入日常的都市场景,承载对未来的温柔想象,心怀对多样化居住环境的敬意与尊重,奔向超越出行的智慧生活。
深圳阿维塔新能源汽车体验中心外部实景图
深圳阿维塔新能源汽车体验中心外部实景图
深圳阿维塔新能源汽车体验中心外部实景图
深圳阿维塔新能源汽车体验中心外部实景图
深圳阿维塔新能源汽车体验中心外部实景图
深圳阿维塔新能源汽车体验中心外部实景图
深圳阿维塔新能源汽车体验中心内部实景图
深圳阿维塔新能源汽车体验中心内部实景图
深圳阿维塔新能源汽车体验中心内部实景图
深圳阿维塔新能源汽车体验中心内部实景图
深圳阿维塔新能源汽车体验中心内部实景图
深圳阿维塔新能源汽车体验中心内部实景图
深圳阿维塔新能源汽车体验中心内部实景图
深圳阿维塔新能源汽车体验中心内部实景图
深圳阿维塔新能源汽车体验中心内部实景图
深圳阿维塔新能源汽车体验中心平面图
深圳阿维塔新能源汽车体验中心平面图
深圳阿维塔新能源汽车体验中心平面图
深圳阿维塔新能源汽车体验中心平面图
深圳阿维塔新能源汽车体验中心平面图
深圳阿维塔新能源汽车体验中心平面图
深圳阿维塔新能源汽车体验中心平面图
深圳阿维塔新能源汽车体验中心平面图
深圳阿维塔新能源汽车体验中心平面图
客服
消息
收藏
下载
最近



























