查看完整案例

收藏

下载
F L Y ¢ D E S I G N
# 小欢喜 #
对生活的热爱诉诸于小家之中,一家三口的家居需求、兴趣爱好都融入进来,养花喂鱼、发呆打盹,舒适安然的家居氛围,在生命中寻求属于自我的小欢喜。几乎未动硬装的精改,在层高受限的前提下,发掘空间亮点并以色彩、布局加以调度,焕活家居生命力,沉沦于普通日子中的微小时刻。
客厅 / The Living Room
餐厅看向客厅 / View From The Dining Room To The Living Room
餐厅看向客厅 / View From The Dining Room To The Living Room
考虑到整体空间的尺度和居者喜好,以暖灰色为主调,局部加以亮色点缀,洁净温润的家里有着不同层次下的视觉着重点,错落的美感共而响应空间情绪。阳台收入客厅增加公区光感,搭配以浅淡轻巧的家具,敞亮闲适的空气感自然中和了层高偏低带来的压抑感。舒适恬淡的客餐厅让人专注享受家居的曼妙时光。
客厅 / The Living Room
餐厅看向客厅 / View From The Dining Room To The Living Room
客厅 / The Living Room
不做过多的造型而依托软装营造家居氛围,以屏风、装饰画点亮空间,移动便携给生活形式带来的可变性,对于家有小宝贝的成长变化需求,有着应对的灵活性,设计在时空上的延展性在漫漫生活中知晓。
客厅 / The Living Room
客厅 / The Living Room
餐厅 / Dining Room
以简洁明要的功能布局,实木板材+圆润少边角的家具为主,守护儿童成长安全。餐桌椅皆采用圆弧元素,一幅挂画、一盏吊灯,克制的配饰下反而使餐厅的浪漫情调与清爽感并存。
餐厅 / Dining Room
餐厅 / Dining Room
餐厅 / Dining Room
餐厅 / Dining Room
借以颜色填补空间硬件的不足,一抹红色吊柜打破玄关处采光不佳的沉闷感,颜色的点缀碰撞增添空间趣味性。有序排列的壁挂杂志架,营造文艺浪漫的入户第一印象。
餐厅 / Dining Room
餐厅 / Dining Room
餐厅 / Dining Room
主卧 / Master Bedroom
延续公共空间色调,释放着静谧放松的休闲氛围,是睡眠空间,也是发呆放空的私人领域。不做华丽的堆砌转而以纯粹的功能美学塑造,纯粹的结构与比例散发着安稳怡然的家居气息。
主卧 / Master Bedroom
书房 / Study
儿童房 / Children's Room
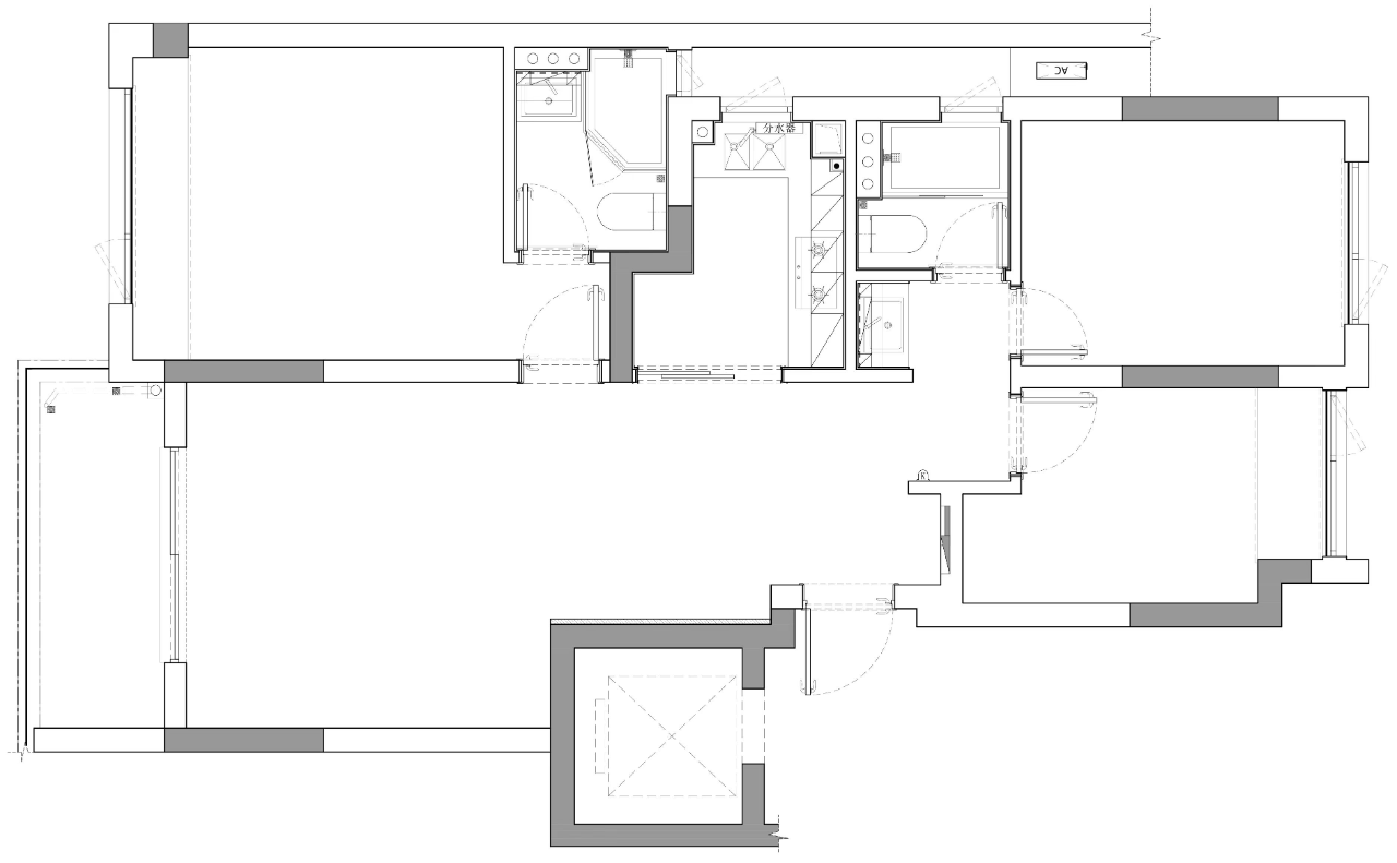
原始图
平面图
精装改造前后对比
软装配饰
设计机构 / 菲拉设计
项目地址 / 浙江杭州 · 新希望美的长粼府
户型 / 三室两厅
面积 / 92.2501349㎡
项目类型 / 精装改造
客服
消息
收藏
下载
最近































