查看完整案例

收藏

下载
F L Y ¢ D E S I G N
# 漫生活 #
慢慢亦漫漫,漫漫亦灿灿,专注时空下的细腻时刻,情感与故事伴随着宏观尺度定理缓缓而行。日出见万物,月升感清夜,观空间谱词,听时间作曲,两人、一猫的漫生活自此拉开序幕。
客厅 / The Living Room
客厅 / The Living Room
客厅 / The Living Room
客餐厅 / The Living Room And Dining Room
光与物的糅合交汇,以有致的序列重新排布,客餐厅一体化设计,公共空间的使用流畅度、人物动线与机体观感得以安排妥当。阳台纳入客厅扩容公区面积,自然光以最大限度与室内接触,明媚轻松的空间氛围在此升腾。
客餐厅 / The Living Room And Dining Room
客厅 / The Living Room
客厅 / The Living Room
客厅 / The Living Room
奶油色基调的家构建清浅的氛围,重色家居调和空间调性,纯粹的形体内有着丰富的故事语言。了解功能于自身的需求,以可变性、延展性的家居模式应对漫漫生活的需求多样性。
客厅 / The Living Room
客厅 / The Living Room
餐厅 / Dining Room
重塑功能区布局,以均衡各个空间下的机体感受,餐厅由靠近玄关处移至与客厅并排一体,承揽入户开阔感与就餐仪式感。餐桌椅以恰当的比例、极具观赏感的造型呈现,虽是实用之需亦是公共空间下的魅力一隅。
餐厅 / Dining Room
餐厅 / Dining Room
餐厅 / Dining Room
餐厅 / Dining Room
利用简单的元素借助于形态的叠加赋予空间艺术化场景,利落的结构下佐以柔和的线条完善立面造型,由玄关至厨房丰富收纳空间,经得住时间的考验,带有生活气息的家仍然可以保有舒适清爽的的空气感。
厨房 / Kitchen
衣帽间 / Cloakroom
衣帽间 / Cloakroom
奶油中古调捕捉记忆与情感的诗意残余,温润柔和的家居空间中在慢述着过去与未来的情感故事;释放睡眠空间体积,以基础的功能配置精简呈现,衣物收纳所需移至步入式衣帽间,将空间与动线重新梳理,见功能强化下的家居松弛感。
主卧 / Master Bedroom
主卧 / Master Bedroom
书房 / Study
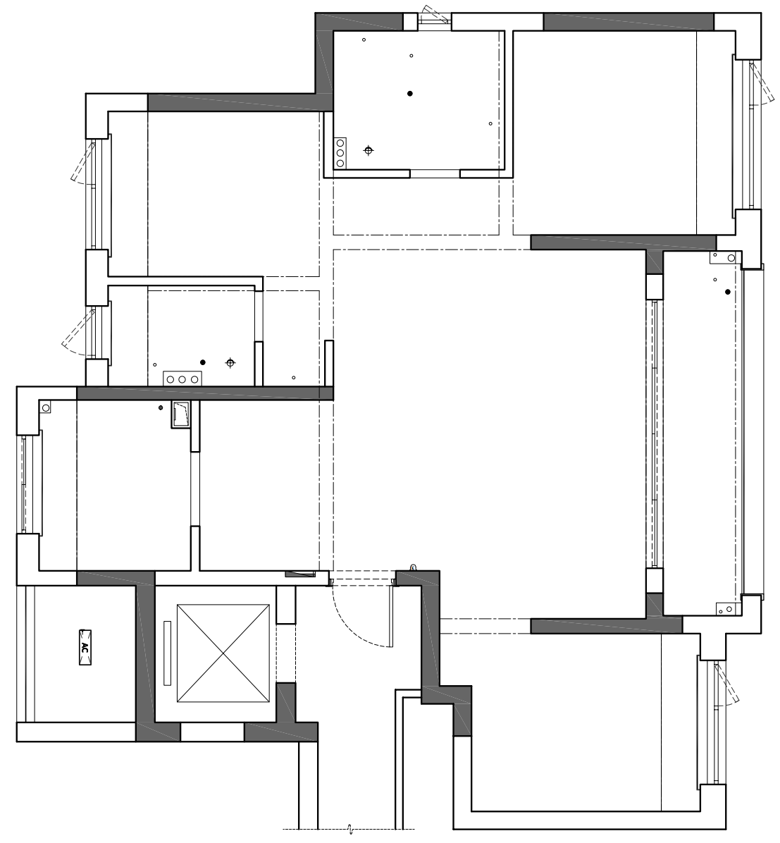
原始图
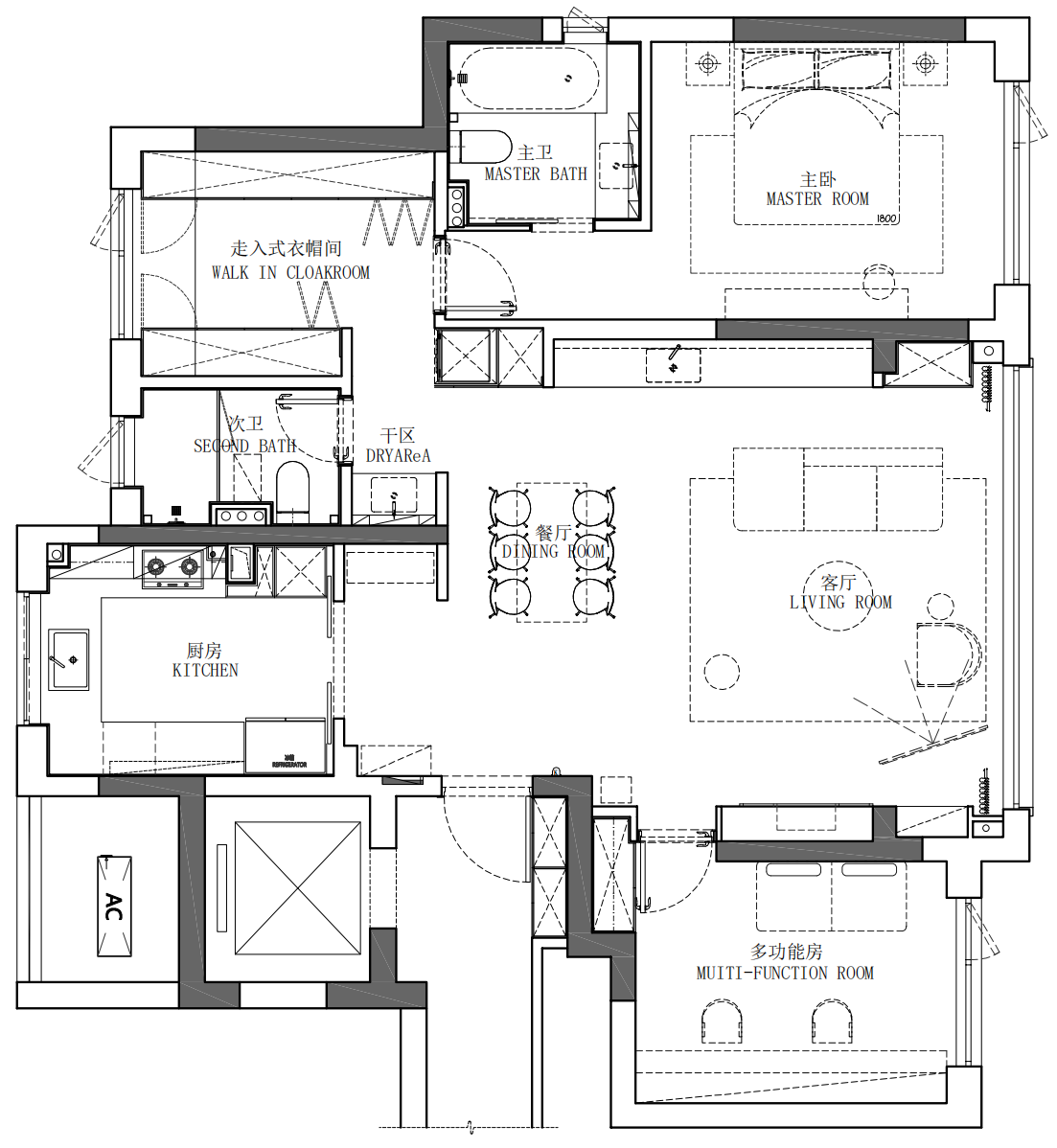
平面图
设计机构 / 菲拉设计
项目地址 / 浙江杭州· 联发溪语宸庐
户型 / 三室两厅
面积 / 100.2501349㎡
项目类型 / 硬装设计,软装宅配
客服
消息
收藏
下载
最近


























