查看完整案例

收藏

下载
项目名称:屋檐下的咖啡店
位置:上海
建筑师: 置换建筑师
一个角落为这个城市提供一个角落,在上海在美国,每一寸土地都很宝贵,但很大一部分空间没有得到充分利用,而另一部分则被抬高到过高的价格。主办公楼的两层上海青年干部管理学院是青年团体青年成员的学习场所。它为年轻人提供定期展览、展示和学习机会。在没有大规模参观或学习会议的时期,它对公众开放,提供了一个学习和居住的空间。在我对农村生活的记忆中,忙碌了一天后,我会见到长辈。屋檐下,男长辈习惯性地抽着黄烟,话不多,静静地享受着这一刻的休息,女长辈则摘着菜叶,聊着日常生活,仿佛在总结一天的忙碌。在广中路的一侧,靠近街道的地方,建筑天篷的形状像一个“屋檐”,在屋檐下,创造了一个半户外的缓冲空间,观察路上熙熙攘攘的车辆,希望为这个城市的流浪者提供一个短暂的休息空间。在改造过程中,室内空间的设计考虑到了未来的使用场景。
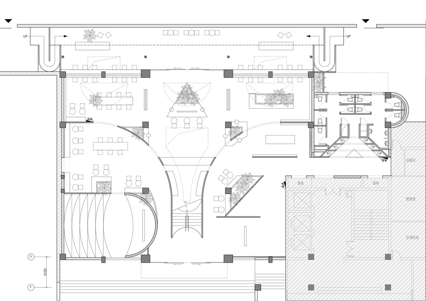
第一层侧重于向公众开放的场景,重点是景观、咖啡、书籍和展览。二楼规划以讲座和展示为主。一楼和二楼之间有更多的垂直连接。之前翻修过的钢结构楼梯已经被拆除,取而代之的是坚固的双层混凝土楼梯。开阔的空间允许大型绿色植物的生长。半室外天篷采用钢木结构,钢构件主要用于结构连接,而木结构传达情感感受。屋檐下的地面铺上鹅卵石,避免过度凝固。趋向于更原始的状态。整个建筑的外观以20世纪80年代和90年代的典型马赛克装饰材料为特色。这种马赛克砖的应用在内部继续,马赛克的长宽比力求类似于二三十年前的视觉感知。马赛克的颜色与众不同,以绿色生长为指导原则,大量绿色植物融入整个空间。“延续”在最初的空间建设中,它更多的是一个人或一个团队所设想的场景。令人期待的是,社会内部不同角色的人会在这样的空间里创造有趣的故事,不断丰富这个空间,延续“设计”的过程!
上海屋檐下的咖啡店外部实景图
上海屋檐下的咖啡店外部实景图
上海屋檐下的咖啡店内部实景图
上海屋檐下的咖啡店内部实景图
上海屋檐下的咖啡店内部实景图
上海屋檐下的咖啡店内部实景图
上海屋檐下的咖啡店内部实景图
上海屋檐下的咖啡店内部实景图
上海屋檐下的咖啡店内部实景图
上海屋檐下的咖啡店内部实景图
上海屋檐下的咖啡店内部实景图
上海屋檐下的咖啡店内部实景图
上海屋檐下的咖啡店内部实景图
上海屋檐下的咖啡店内部实景图
上海屋檐下的咖啡店内部实景图
上海屋檐下的咖啡店平面图
上海屋檐下的咖啡店平面图
上海屋檐下的咖啡店剖面图
上海屋檐下的咖啡店立面图
上海屋檐下的咖啡店立面图
上海屋檐下的咖啡店立面图
上海屋檐下的咖啡店立面图
上海屋檐下的咖啡店立面图
客服
消息
收藏
下载
最近


























