查看完整案例

收藏

下载
项目名称:德国KornversuchSpeicher多功能用途建筑
位置:德国
设计公司:AFF建筑中心
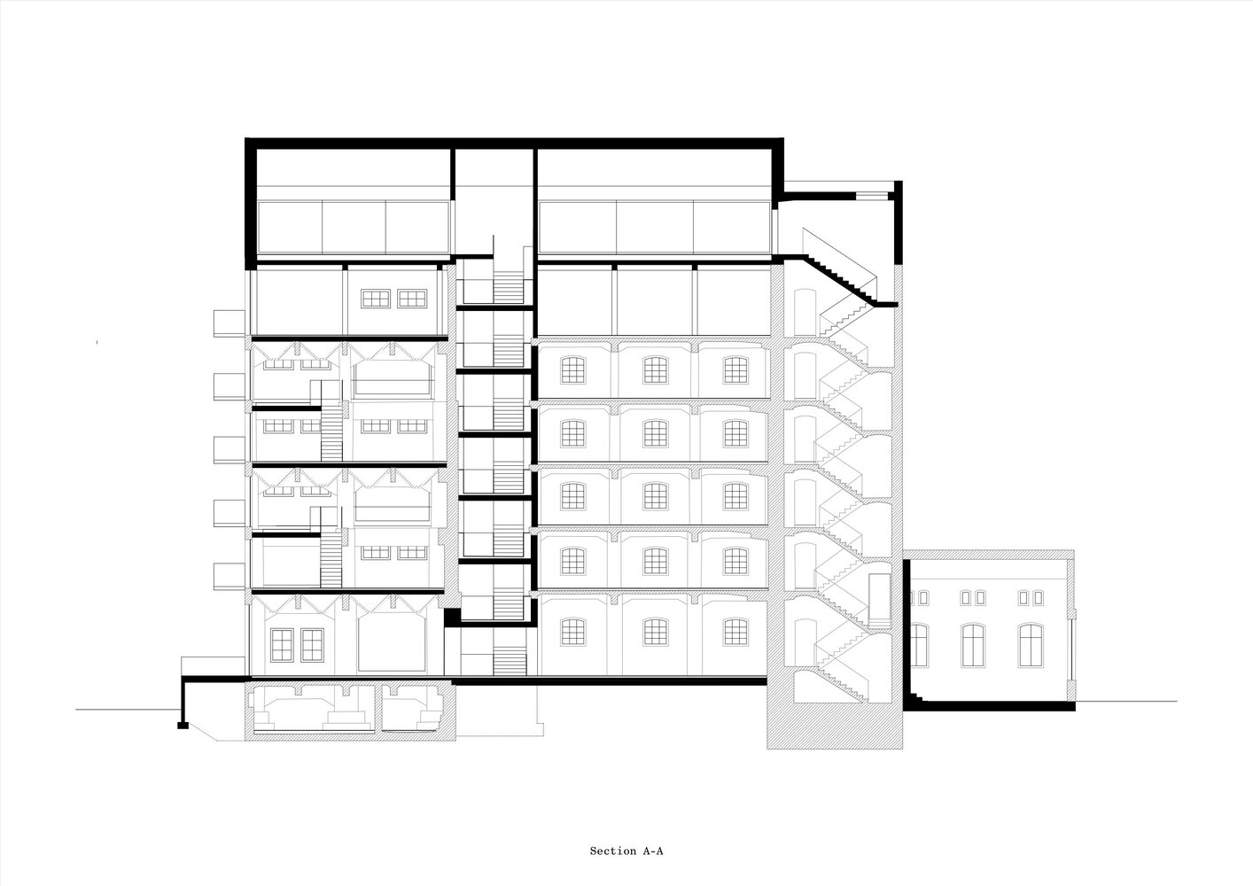
该历史粮仓建于1897/1898年,位于前“Lehrter”货运站,是1897年的第一个仓库柏林为了应对19世纪后期不断增长的人口而进行的谷物储存试验泰国(Thailand)世纪。1916年,为了比较评估筒仓和散装储存以及测试现代机器技术,扩建了仓库。安装了一个新的钢筋混凝土框架,扩建部分有特殊的特里谢储物天花板。改造的定义是部分拆除现有的混凝土支撑结构和一些引人注目的结构干预,以及其屋顶扩展。通过一系列创造空间的干预措施,这是精心开发的与列入名单的建筑相协调,有可能转换为当代使用的建筑。
德国KornversuchSpeicher多功能用途建筑外部实景图
德国KornversuchSpeicher多功能用途建筑外部实景图
德国KornversuchSpeicher多功能用途建筑外部实景图
德国KornversuchSpeicher多功能用途建筑外部实景图
德国KornversuchSpeicher多功能用途建筑内部实景图
德国KornversuchSpeicher多功能用途建筑内部实景图
德国KornversuchSpeicher多功能用途建筑内部实景图
德国KornversuchSpeicher多功能用途建筑内部实景图
德国KornversuchSpeicher多功能用途建筑内部实景图
德国KornversuchSpeicher多功能用途建筑内部实景图
德国KornversuchSpeicher多功能用途建筑内部实景图
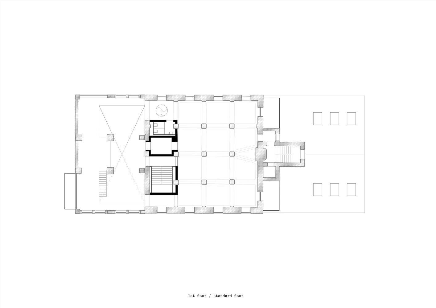
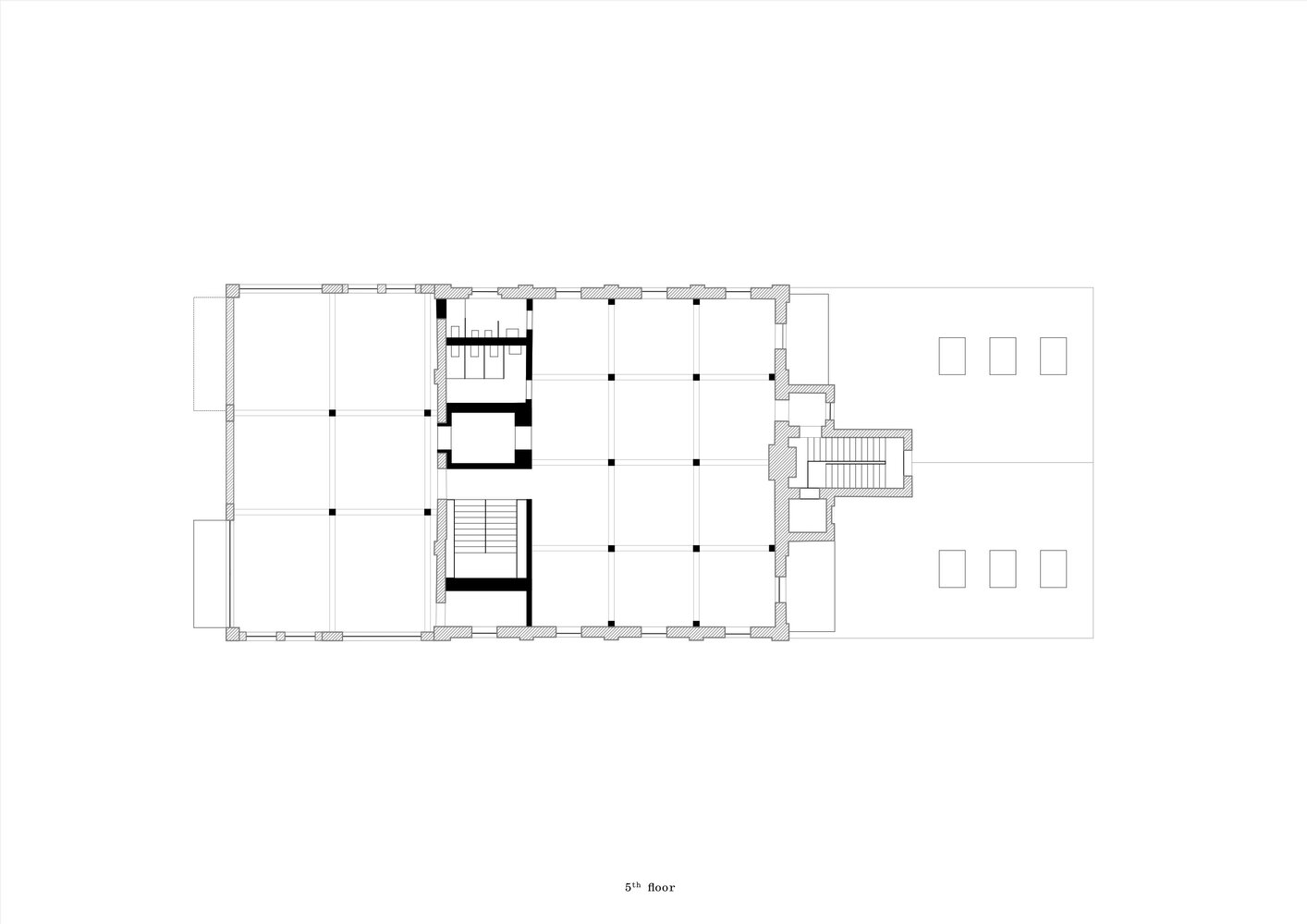
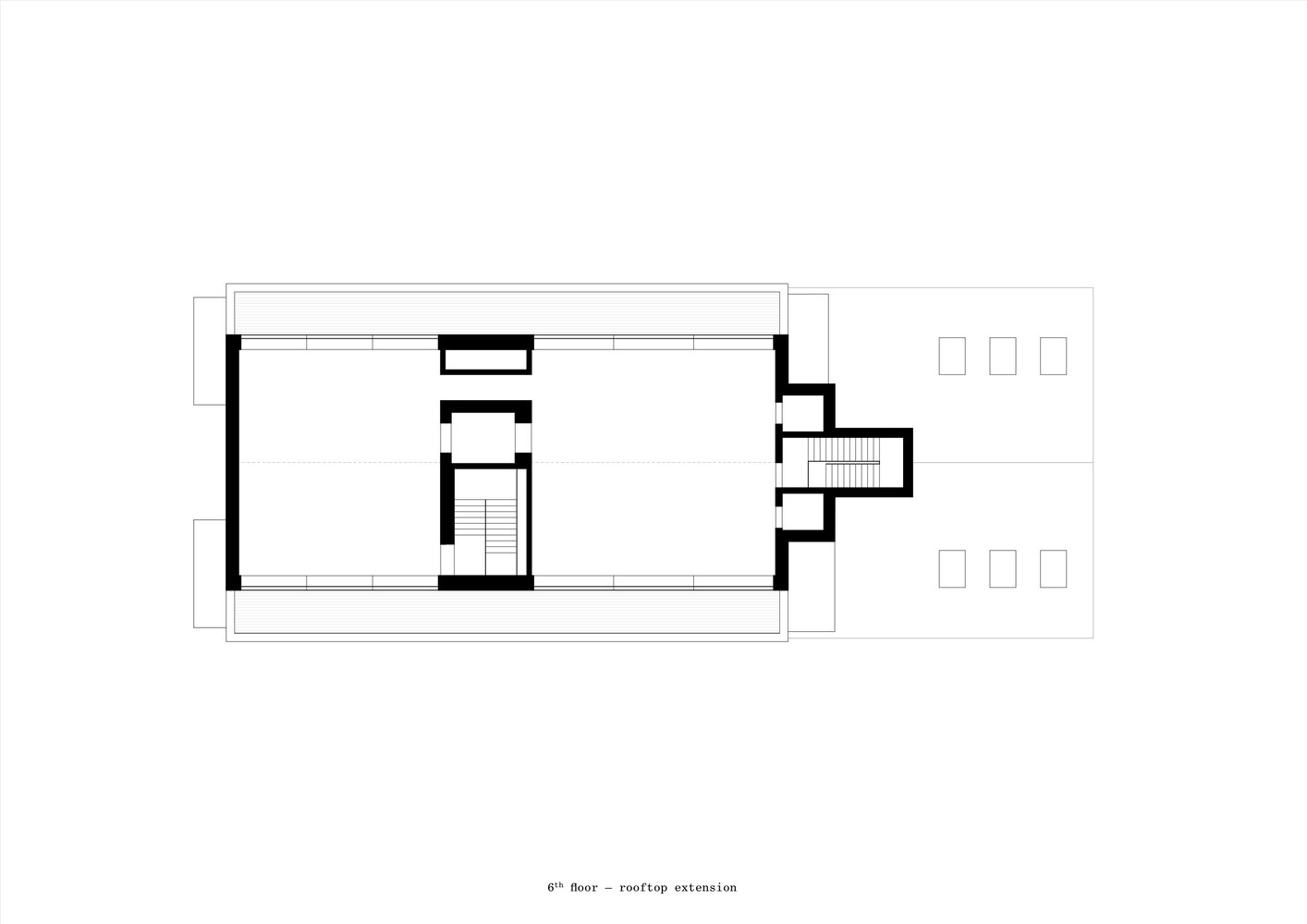
德国KornversuchSpeicher多功能用途建筑平面图
德国KornversuchSpeicher多功能用途建筑平面图
德国KornversuchSpeicher多功能用途建筑平面图
德国KornversuchSpeicher多功能用途建筑平面图
德国KornversuchSpeicher多功能用途建筑平面图
德国KornversuchSpeicher多功能用途建筑平面图
德国KornversuchSpeicher多功能用途建筑剖面图
德国KornversuchSpeicher多功能用途建筑剖面图
德国KornversuchSpeicher多功能用途建筑剖面图
德国KornversuchSpeicher多功能用途建筑剖面图
德国KornversuchSpeicher多功能用途建筑立面图
德国KornversuchSpeicher多功能用途建筑立面图
德国KornversuchSpeicher多功能用途建筑立面图
德国KornversuchSpeicher多功能用途建筑立面图
客服
消息
收藏
下载
最近




























