查看完整案例

收藏

下载
项目名称:东京日比谷FORT TOWER建筑
位置:东京
设计公司:株式会社日建设计
本项目用地原是江户时代幕府将军居住的江户城的外护城河,沿着弯曲得恰到好处的护城河而建的现有不规则街区,存在着交叉路口不正规、缺乏行人空间和绿化不足等问题。随着本项目的区道更换,街区也进行了重组,打造出绿意盎然的广场和舒适的步行空间,办公、SOHO、商铺等功能被集中规划于高层综合设施内重新焕发生机和活力。护城河曾是大名屋敷(诸侯的宅第)和町人地(平民的住所)之间的分界线,现在仍作为区界线从城市尺度上清晰可见。我们着眼于二者体量上的差异,通过采用彩色PC(预制混凝土)板组合,打造出兼具二者特色、可呈现出丰富“表情”的外观。低层部分配置了贯通室内的通道以便于人员往来,除连接广场和人行道外,还在地下与相邻建筑连接,使其成为连接该地域内各个街区的枢纽。作为整个设施的公共空间,我们在可以俯瞰周边景色的11层设置了拥有屋顶花园和会议室等功能的空中大厅。
在响应新的工作方式的同时,本项目还可在发生大地震或其他灾害时收容回家困难者,并为周边地区自身难以确保停车场的中小型建筑提供集中停车场等,为该地区的价值提升和可持续发展做出贡献。曾经的外护城河,现已成为100m以上超高层建筑林立的千代田区与高50m左右中小型建筑密集的港区之间的行政区界。基于这两种差异巨大的城市尺度,我们将结构分为上下两大部分,建筑高度配合千代田区一侧的建筑,低层部分的高度配合港区一侧的建筑。平面上,将五个体量根据护城河的地形呈雁行重叠分布,形成好似多座建筑集中在一起的群像外观。在外装方面,采用了与该地区城市景观相协调的米色PC板,并对七种不同形状的外观进行了组合。我们在最高的高层部分南面的外框处设置了一个2.8m的大型PC屋檐,通过遮挡直射光线大幅度降低了空调负荷。本建筑虽然有多种外装,但通过采用水平的彩色PC板,在营造出统一感的同时,形成了可根据不同视角呈现出多种表情的外立面。
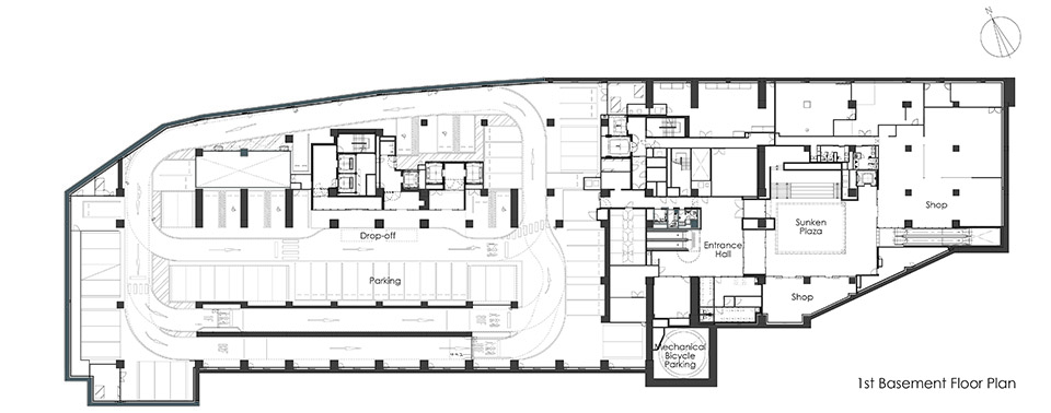
在大约7700㎡的用地内,每个区域都被赋予了独特的景观。西广场被打造成位于建筑正前方的绿色广场和底层架空空间,以充实步行空间;东广场则被打造成以大山樱为中心的休闲聚能广场,与下沉广场和绿地一起被定位为地域中心的大型公共空间。作为对外护城河遗址的记忆载体,石墙是该地区一大特色。我们在外构设计中采用了犬岛产锈石制成的石墙,以传承这段历史。施工中挖掘出的“真正的外护城河石墙”也被安装在了外构中。我们在低层部分设计了一条顶棚高12m、连接地块东西两侧广场的贯通通道“Galleria”。Galleria与原地块上的道路处于同一位置,在保留其作为设施主动线的步行功能的同时,也可作为公共空间面向当地社区开放。对于支撑140m超高层建筑的台基部分,我们力求将其打造成与至今仍作为皇居保留下来的城墙采石场和城郭石墙一般坚固有力的空间。
Galleria的室内采用与外装一样的7.2×1.8m大尺寸彩色PC板,形成街区一直延续到建筑内部的一体化空间。地板采用砖纹瓷砖,天花板采用热浸镀锌钢百叶,诸多细节都使用了可感受材料自身魅力的建材,具有自然的纹理和质感。天花板百叶表面略带光泽,柔和倒映出地面上来往的行人和广场上的绿植,宛如外护城河的水面映射在天花板上。我们在11层设计了一个空中大厅,将外观分为上下两大部分。约60m高的大厅位于南侧,可将东京美景尽收眼底。11层正处于大楼的中间位置,从低中高层的办公室均可轻松前往,空中大厅还配置了会议设施、商铺和屋顶花园,为整个大楼提供了一个具有附加值的空中公共空间。楼层中央部分是一个降板约400mm的休息室,采用了以外护城河水面为主题的地毯,还拥有与屋顶花园连成一片的室内绿化,该空间不仅可以用作办公等候区,还可作为商务会议或办公族休息充电的空间。
根据地块形状,核心筒采用东西向拉长布置的设计,与办公室呈线性布局。因此,每个办公室都能确保良好的视野,且平面规整便于分区使用。我们根据需求设计了两种标准层,低层办公区主要用于业主总公司办公,为了尽可能确保宽敞的工作空间,柱子采用内部框架,进深达到24m;中高层办公区主要面向租户,因此采用了易于使用的外部框架,进深21.5m。在公共区域,东西向拉长的走廊有足够的宽度,除为男女厕所分别设计出入口外,考虑到无性别人士的需求,还配置了多功能厕所,并增加可以储存应急物资的休息区等,力求满足今后新的工作方式的需求。
东京日比谷FORT TOWER建筑外部实景图
东京日比谷FORT TOWER建筑外部实景图
东京日比谷FORT TOWER建筑外部实景图
东京日比谷FORT TOWER建筑外部实景图
东京日比谷FORT TOWER建筑外部实景图
东京日比谷FORT TOWER建筑外部实景图
东京日比谷FORT TOWER建筑外部实景图
东京日比谷FORT TOWER建筑外部实景图
东京日比谷FORT TOWER建筑外部实景图
东京日比谷FORT TOWER建筑外部实景图
东京日比谷FORT TOWER建筑外部实景图
东京日比谷FORT TOWER建筑外部实景图
东京日比谷FORT TOWER建筑外部实景图
东京日比谷FORT TOWER建筑外部实景图
东京日比谷FORT TOWER建筑内部实景图
东京日比谷FORT TOWER建筑内部实景图
东京日比谷FORT TOWER建筑内部实景图
东京日比谷FORT TOWER建筑内部实景图
东京日比谷FORT TOWER建筑内部实景图
东京日比谷FORT TOWER建筑内部实景图
东京日比谷FORT TOWER建筑平面图
东京日比谷FORT TOWER建筑平面图
东京日比谷FORT TOWER建筑平面图
东京日比谷FORT TOWER建筑平面图
东京日比谷FORT TOWER建筑平面图
东京日比谷FORT TOWER建筑平面图
东京日比谷FORT TOWER建筑剖面图
东京日比谷FORT TOWER建筑剖面图
客服
消息
收藏
下载
最近































