查看完整案例

收藏

下载
项目名称:泰国城市生鲜店和餐厅
位置:泰国
设计公司:空间建筑
City Fresh坐落在Pridi Banomyong街区,是一个普通的排屋,现已改造成一个欢迎水果爱好者的空间。会场在某种程度上是一个目的地,有共同兴趣的群体可以在这里聚集、交流和分享。第一层的空间是为简短的小型会议准备的。有临时座位,有各种各样的水果和新鲜的自制沙拉可供选择。水果之家将不同的低调透明材料融合在一个结构中,为空间增加自然光,并构建带来舒适视觉纹理的层。正面的透明玻璃面板可互换地在建筑和其邻近区域之间建立联系和连贯性。第一层的开放空间同时有助于连接和吸引从第一层到上层的流通。建筑的第二层表皮区分了公共空间和私人空间。该元素将透明与随机空隙结合在一起,形成视觉框架,创造不同的体验和重要的视角。穿过立面的自然光通过制造可见性和绿色阴影层来软化现代本质。
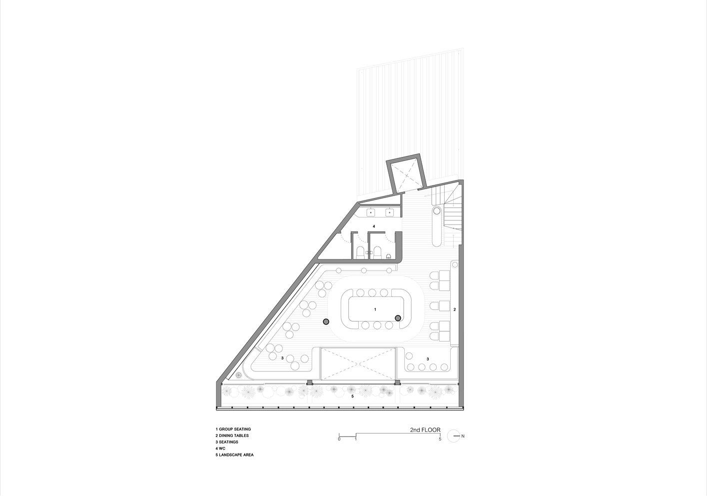
内墙饰面延续了外部的纹理视觉元素和语言。中性的材料让新鲜水果的颜色闪闪发光,引人注目。二楼的空间有各种类型的桌子和座位,以满足不同的活动需求。区域内相连的公共空间鼓励人们之间的互动。一大群熟悉的朋友可以共享位于会议或工作中心的公共桌子。其他小团体或个人也可以享受整个水平周围的空间。第三层有一个带活动厨房的烹饪工作室,人们可以认识新面孔和交朋友。由专业和知名厨师准备的烹饪课程对那些希望通过将蔬菜或水果融入菜肴来创造健康烹饪生活方式的人开放。学生们还可以从一楼的商店挑选新鲜的材料来制作特别的菜单。灵活的烹饪区连接到私人用餐空间,可以连接和转换,以适应团体活动。位于中间的幸运树不仅成为整个区域和建筑的焦点,还为在顶层工作的员工创造了阴凉和舒适的环境。
泰国城市生鲜店和餐厅外部实景图
泰国城市生鲜店和餐厅外部实景图
泰国城市生鲜店和餐厅外部实景图
泰国城市生鲜店和餐厅外部实景图
泰国城市生鲜店和餐厅外部实景图
泰国城市生鲜店和餐厅外部实景图
泰国城市生鲜店和餐厅外部实景图
泰国城市生鲜店和餐厅外部实景图
泰国城市生鲜店和餐厅内部实景图
泰国城市生鲜店和餐厅内部实景图
泰国城市生鲜店和餐厅内部实景图
泰国城市生鲜店和餐厅内部实景图
泰国城市生鲜店和餐厅内部实景图
泰国城市生鲜店和餐厅内部实景图
泰国城市生鲜店和餐厅内部实景图
泰国城市生鲜店和餐厅平面图
泰国城市生鲜店和餐厅平面图
泰国城市生鲜店和餐厅平面图
泰国城市生鲜店和餐厅平面图
泰国城市生鲜店和餐厅剖面图
泰国城市生鲜店和餐厅立面图
客服
消息
收藏
下载
最近
























