查看完整案例

收藏

下载
项目名称:印度尼西亚MAWU咖啡馆
位置:印度尼西亚
建筑师: 反建筑
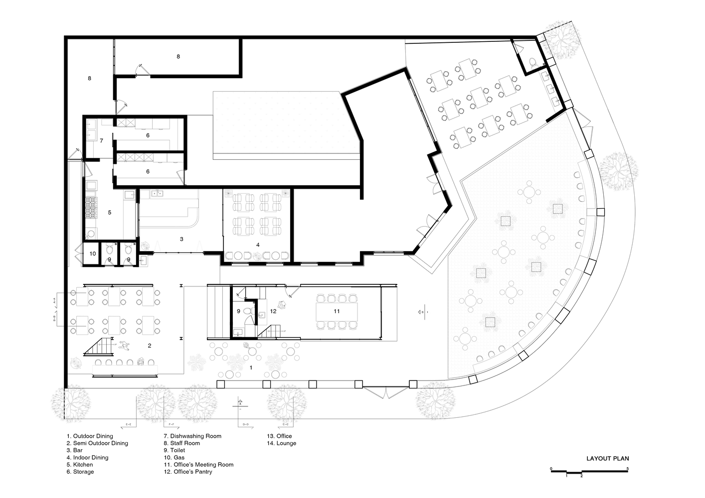
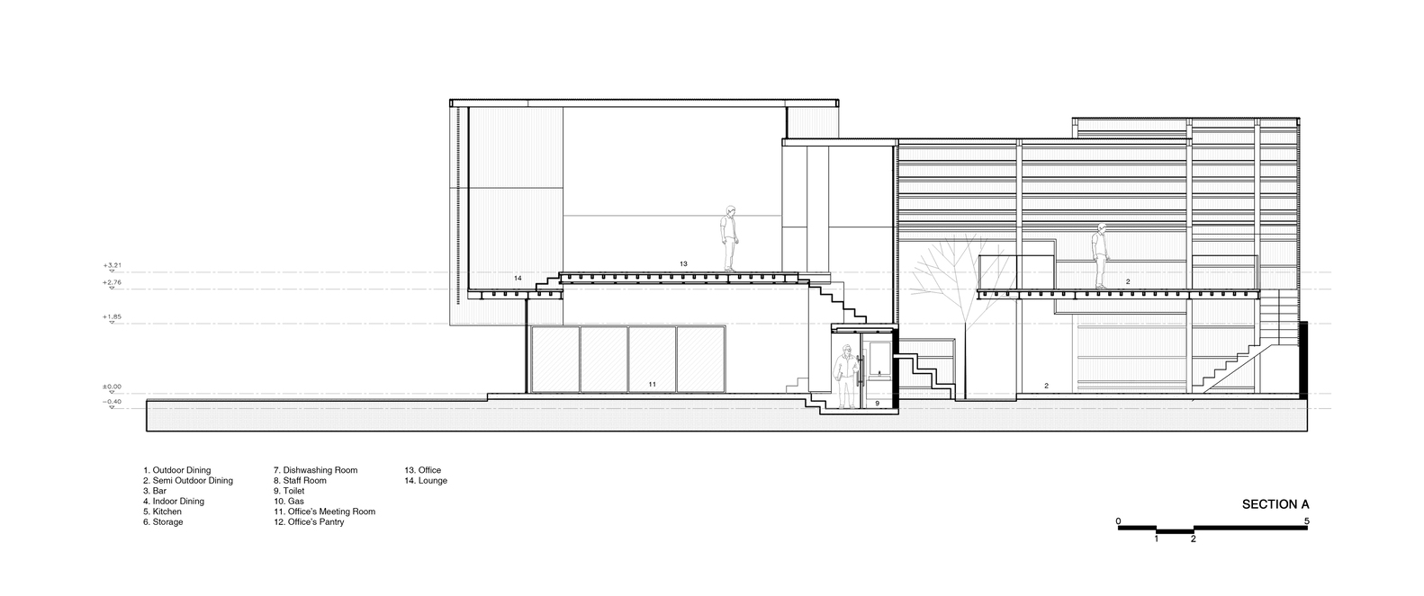
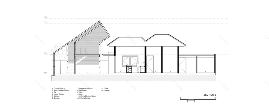
Mawu Café是一家小型咖啡馆和私人办公室,位于泗水,印度尼西亚。所有白色金属包层,结构介绍自己作为一个引人注目的新增加的密集和熙熙攘攘的Ketabang社区。该项目试图引入咖啡馆建筑作为一个新的结构,补充和对比相邻的现有建筑。当代设计语言的使用和不可预测的形式探索让位于两个结构之间大胆而有趣的成分。大多数材料和细节都暴露在外,作为咖啡馆的结构和建筑元素,而重叠平面的构成和对现有建筑轮廓的回应则作为咖啡馆内部和外部的建筑表达。这些专长提供了充足的光线,不同的光线照射在房间的每个平面和侧面,墙壁之间的缝隙允许空气和游客自由进出空间。作为一个小的公共空间,视觉上的联系通过一个开放的平面呈现在每一层的墙上。新旧建筑之间的关系因它们之间交织的项目而被放大。现有的建筑拥有酒吧、厨房和室内用餐区;而新的结构容纳了办公室和半户外用餐区。
印度尼西亚MAWU咖啡馆外部实景图
印度尼西亚MAWU咖啡馆外部实景图
印度尼西亚MAWU咖啡馆外部实景图
印度尼西亚MAWU咖啡馆内部实景图
印度尼西亚MAWU咖啡馆内部实景图
印度尼西亚MAWU咖啡馆内部实景图
印度尼西亚MAWU咖啡馆内部实景图
印度尼西亚MAWU咖啡馆内部实景图
印度尼西亚MAWU咖啡馆内部实景图
印度尼西亚MAWU咖啡馆平面图
印度尼西亚MAWU咖啡馆平面图
印度尼西亚MAWU咖啡馆平面图
印度尼西亚MAWU咖啡馆剖面图
印度尼西亚MAWU咖啡馆剖面图
印度尼西亚MAWU咖啡馆剖面图
印度尼西亚MAWU咖啡馆剖面图
印度尼西亚MAWU咖啡馆剖面图
印度尼西亚MAWU咖啡馆剖面图
印度尼西亚MAWU咖啡馆立面图
印度尼西亚MAWU咖啡馆立面图
客服
消息
收藏
下载
最近























