查看完整案例

收藏

下载
项目名称:萍乡天空里商业综合体
位置:萍乡
设计公司:深圳大学-本原设计研究中心
摄影师:ACF域图视觉工作室, Mconcept 感光映画
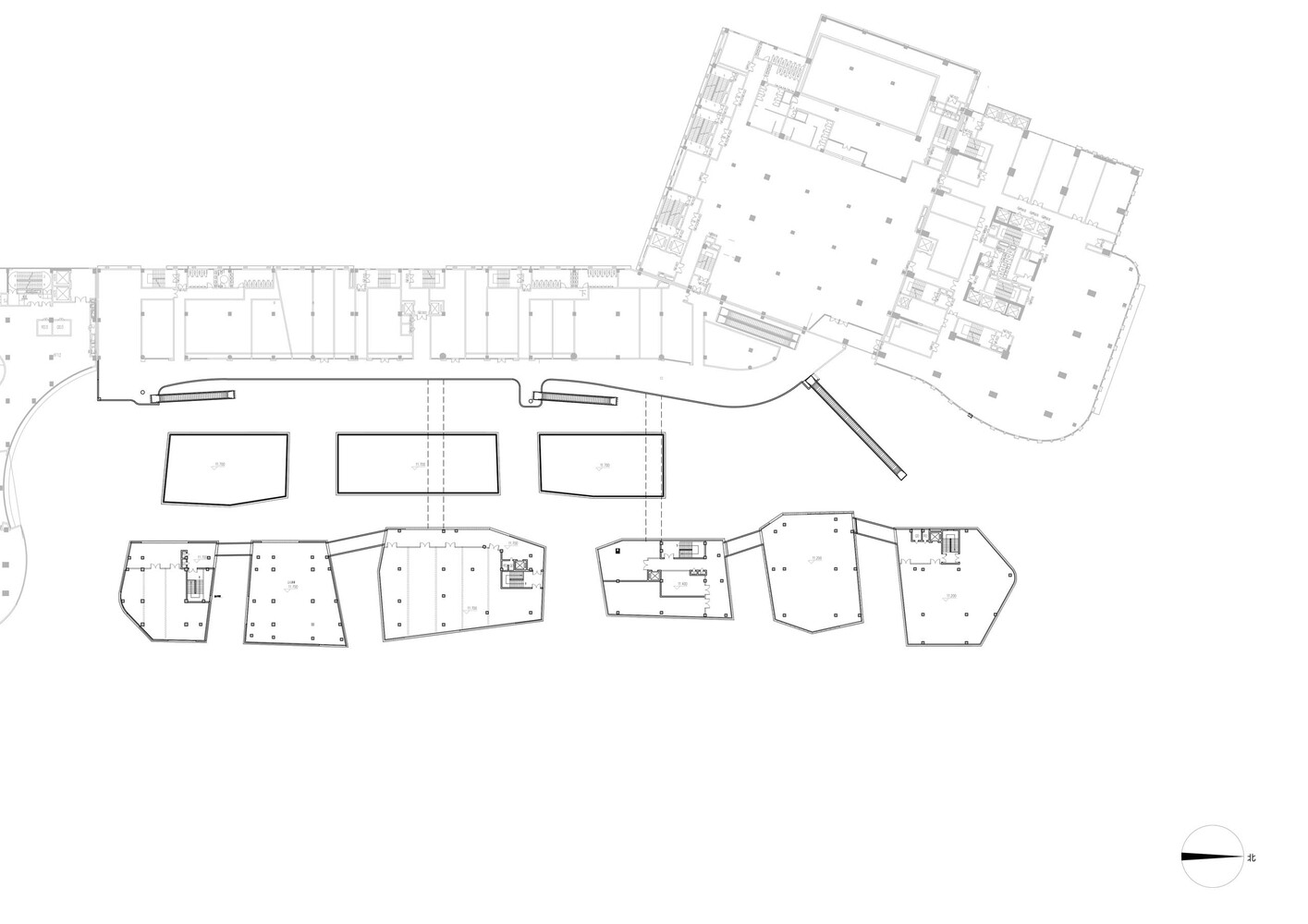
项目是江西萍乡的新城市地标“凤凰天成”商业综合体的重要组成部分,起名“天空里”,定位为现代商业村落,通过街巷、广场、连廊、露台、庭院及角落花园等一系列空间载体与商业活动,建立起一个充满活力的渗透型商业街区。设计团队将现代城市及城市更新所需的可持续商业群落融合购物中心、文化遗产、创意时尚及都市生活,创造出连续的开放街区,建立多元的商业文化环境。项目“天空里”的“里”意味“街巷”,以此为出发点,设计概念结合萍乡古村落与古镇的独特文化及空间类型,将以人为本的“村落”概念贯穿始终,保留古老街巷的尺度与记忆,再融入低矮的独栋建筑,用村落的街巷及散落建筑来凝聚人的生活,营造一片开放的城市空间。
相较大型商业综合体的封闭格局,村落的小尺度独栋店铺及纵横交织的街巷,可有力支撑现代商业街区的灵活性经营策略。街巷由9栋独立建筑定义出来,建筑形态各异,犹如萍水河旁的巨石,加上丰富变化的外立面,突显萍乡城市中心活力,续写未来更多可能。建筑首层略微回收,让出更多街巷面积,集结小微社区生活服务型商业;二至三层引入各类文化生活品牌,以餐饮、健身、娱乐和教育培训等目的地型消费为主。单体之间连廊贯通,内街3栋建筑与商场平台相连,外街6栋建筑之间以连廊连接,两端与商场连接,构成人流的闭环。整体组合成多尺度、多层次、多业态的商业村落形态,以宜人的街巷公共空间尺度提供了舒适、活跃的商业体验,犹如走进一片天空里。
萍乡天空里商业综合体外部实景图
萍乡天空里商业综合体外部实景图
萍乡天空里商业综合体外部实景图
萍乡天空里商业综合体外部实景图
萍乡天空里商业综合体外部实景图
萍乡天空里商业综合体外部实景图
萍乡天空里商业综合体外部实景图
萍乡天空里商业综合体外部实景图
萍乡天空里商业综合体外部实景图
萍乡天空里商业综合体外部实景图
萍乡天空里商业综合体外部实景图
萍乡天空里商业综合体外部实景图
萍乡天空里商业综合体平面图
萍乡天空里商业综合体平面图
萍乡天空里商业综合体平面图
萍乡天空里商业综合体立面图
客服
消息
收藏
下载
最近



















