查看完整案例

收藏

下载
项目名称:美国核桃街1123号混合建筑
位置:美国
设计公司:MQ建筑
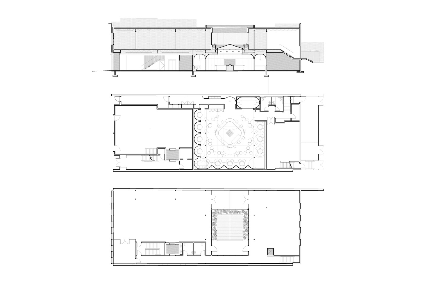
该委员会包括两个独立的委员会。第一个是在48英尺宽、150英尺深的“派对”地块上开发一栋两层楼的混合用途建筑。第二个挑战包括设计一种新的接待类型:一个大麻休息室,用于大麻的娱乐消费。该项目面临巨砾这是一个建于1880年左右的地标区,大部分地段宽25英尺,有砖墙。第二次世界大战后,许多这样的建筑用金属和预制外墙板进行了现代化改造。我们发现了19世纪80年代最典型的形式元素:两堵砖墙;上面一层有突出的屋顶檐口和4'x8 '垂直比例的窗户;一楼有大型店面展示窗、凹进的入口、展示窗隔板和暴露的铸铁柱。我们抽象了这些元素来设计立面,应用了当代的材料,参考了本世纪中期的模块化和预制板系统。因此,上层解决了铝白色板条箱面板安装在支架上的灰泥饰面,创造了一个模式,大4'x8 '可操作的窗户和折叠在顶部创造了檐口;一楼有12英尺高的玻璃面板、铝框架、铝包层和圆形白色钢柱。由于街道层需要三个不同用途的独立入口,我们在立面的两侧设计了两个对称的凹进入口。
酒店的入口在东边,办公空间的入口在西边,中间是零售店面。由于marihuana酒店需要一个没有窗户的空间,我们把它放在了底层的后面。为了给这个空间带来自然光,我们设计了一个16×16英尺的大天窗,通过一个金色的铝制板条箱让光线充满整个空间,从而阻碍了内外之间的直接视觉接触。天窗成为一个开放的露台,二楼有一个露台,有助于组织办公空间。在剖面图中,天窗和天井作为一个倒置的阶梯金字塔共同工作,将自然光均匀地引入整个深层平面。一些植物位于天窗的周边。办公空间的门厅顶上有一个白色的穿孔金属楼梯,从天花板上悬挂下来,带有从原建筑中回收的背光回收木踏板。第二层,作为一个办公室出租整体构思,是一个开放的计划,服务酒吧分配浴室,一个小厨房,和垂直流通。通过长窗墙和铝制板条箱立面,办公室利用了壮观的铁公寓景观。
美国核桃街1123号混合建筑外部实景图
美国核桃街1123号混合建筑外部实景图
美国核桃街1123号混合建筑外部实景图
美国核桃街1123号混合建筑内部实景图
美国核桃街1123号混合建筑内部实景图
美国核桃街1123号混合建筑平面图
客服
消息
收藏
下载
最近









